Description
D’une superficie habitable de 993 pieds carrés, ce ravissant chalet de 25 pieds 10 pouces de largeur sur 30 pieds 6 pouces de profondeur sera idéal en bordure d’un lac paisible.
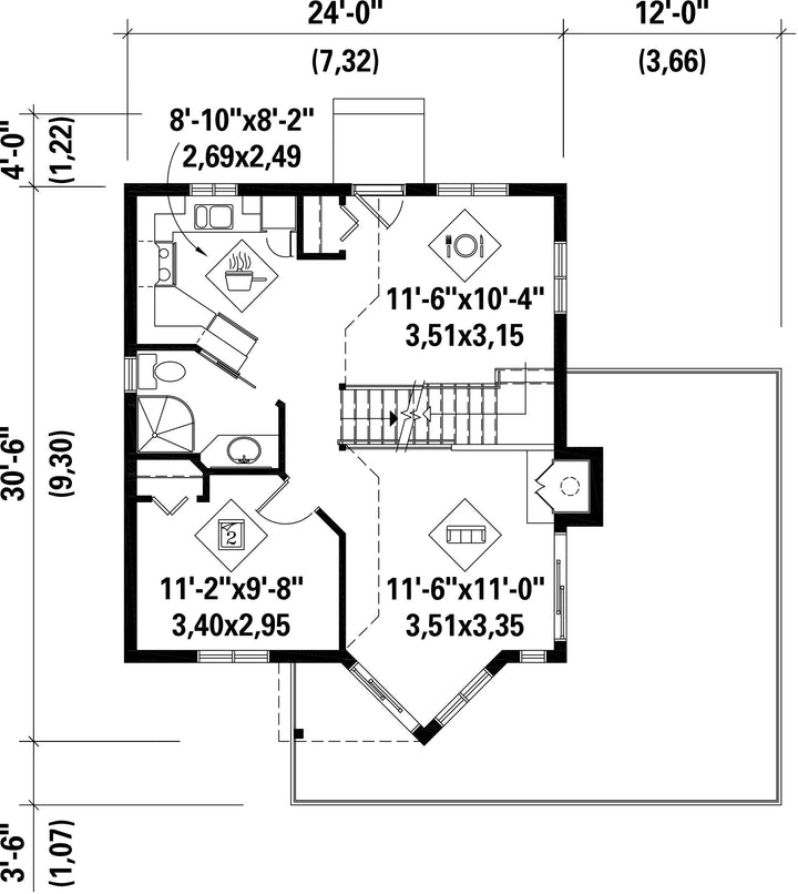
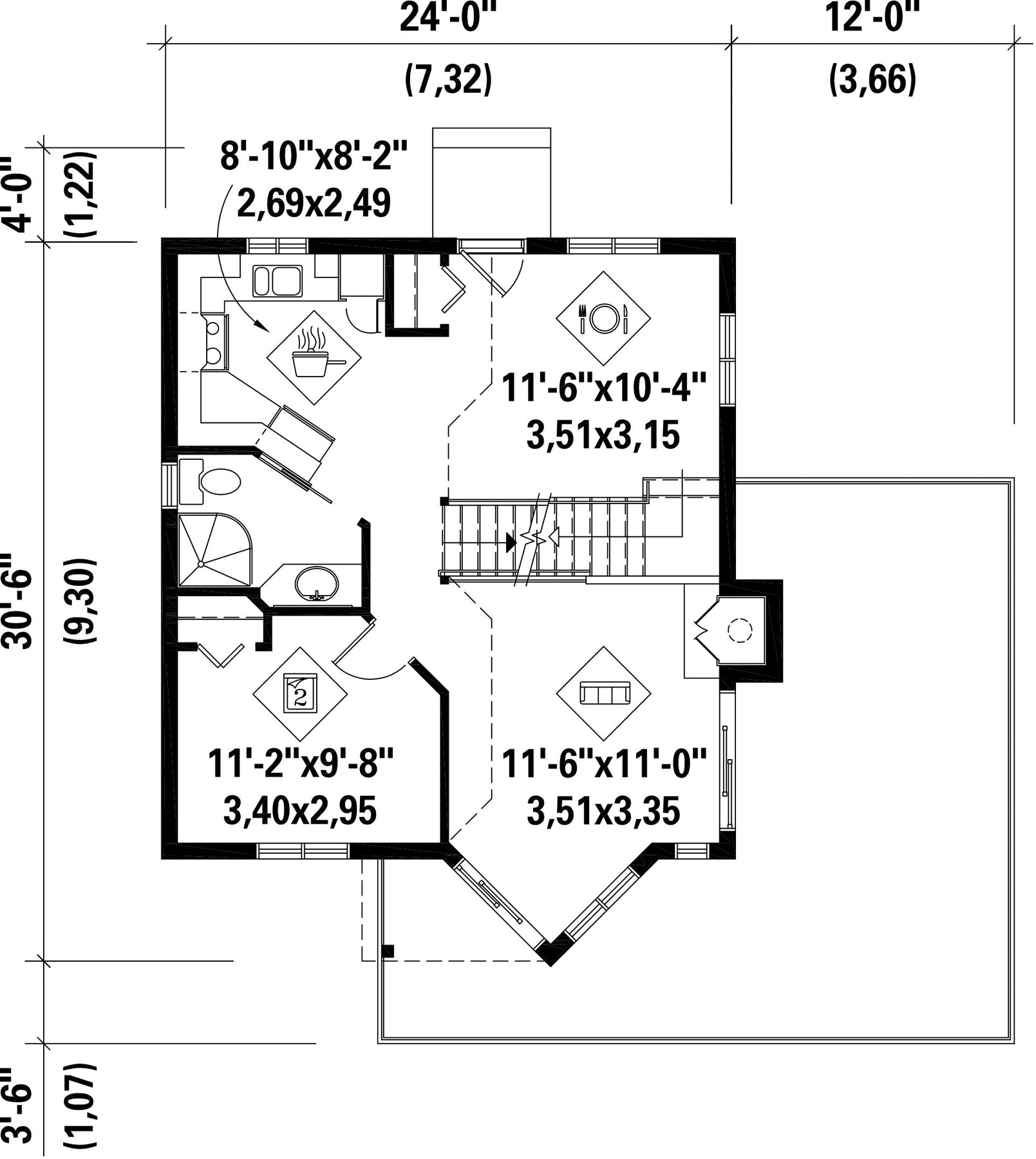
Le rez-de-chaussée comprend un salon avec foyer qui donne sur une immense terrasse et qui offrira aux occupants une vue spectaculaire sur le lac, en plus d’une chambre, d’une cuisine, d’une salle à manger et d’une salle de bains. Un magnifique escalier en colimaçon est érigé en plein centre du rez-de-chaussée de 645 pieds carrés.
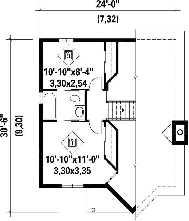
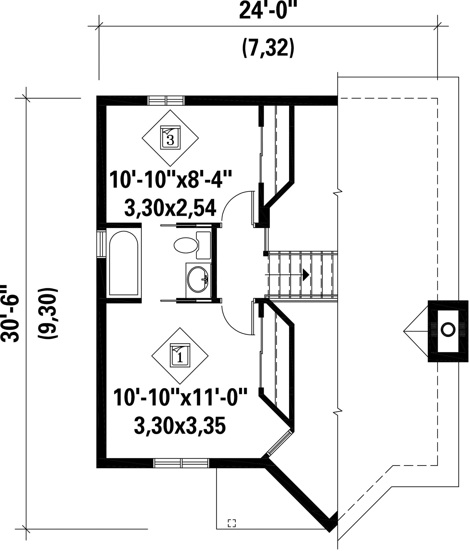
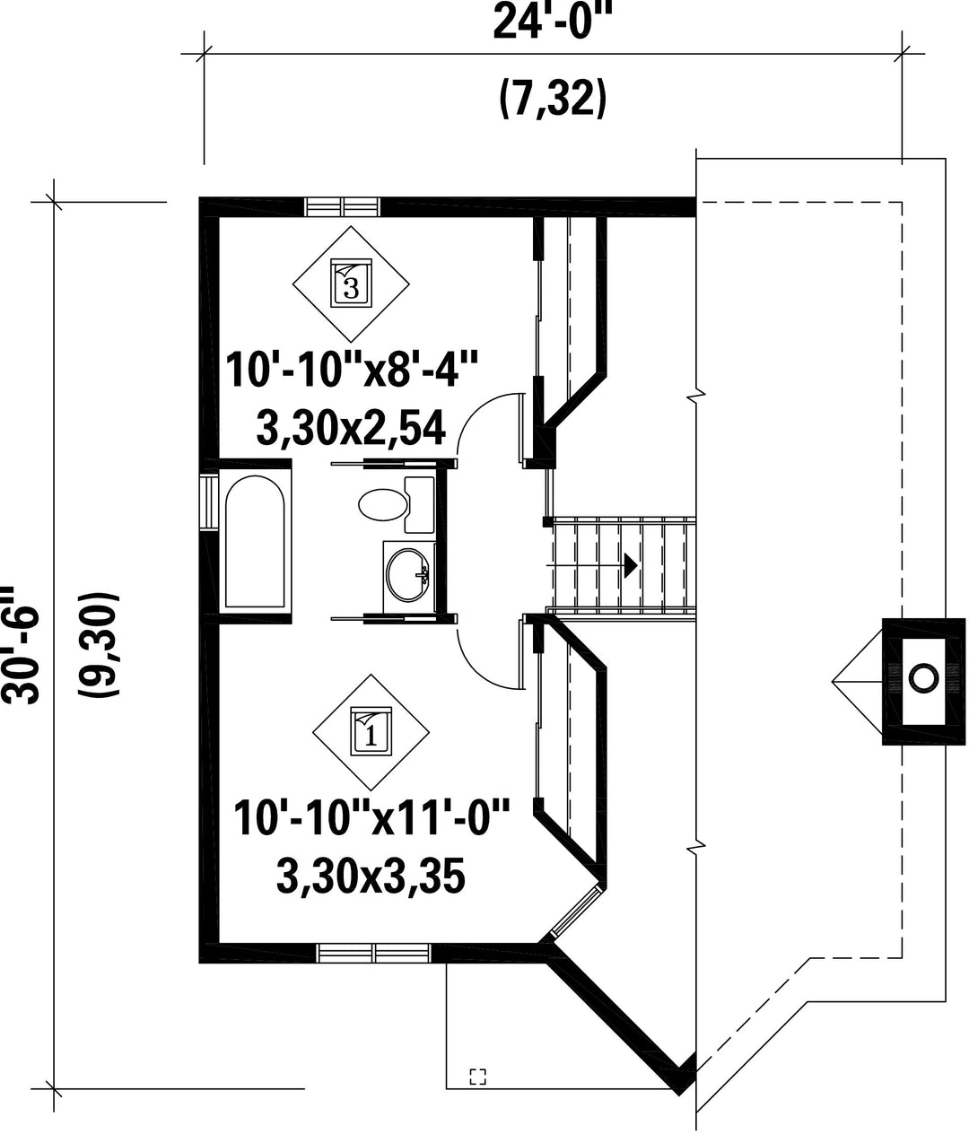
L’étage, dont la surface habitable est de 348 pieds carrés, compte deux chambres à coucher et une salle de bains.
Le rez-de-chaussée comprend un salon avec foyer qui donne sur une immense terrasse et qui offrira aux occupants une vue spectaculaire sur le lac, en plus d’une chambre, d’une cuisine, d’une salle à manger et d’une salle de bains. Un magnifique escalier en colimaçon est érigé en plein centre du rez-de-chaussée de 645 pieds carrés.
L’étage, dont la surface habitable est de 348 pieds carrés, compte deux chambres à coucher et une salle de bains.
Caractéristiques
Mesures : Impérial| Style d'architecture | Champêtre |
Coût de construction
Montant approximatif équivalent à celui d'un entrepreneur général (région de la Rive-Sud de Montréal) pour une construction clé en main sans terrain ni infrastructures.
|
208439 $ |
|---|---|---|---|
| Façade | 25 pi 10 po | Surface habitable totale | 993 pi² |
| Profondeur | 30 pi 6 po | Nombre de salles de bain | 2 |
| Hauteur | 24 pi 6 po | Nombre de chambres | 3 |
| Chambre des maîtres - commentaires | ACCÈS À LA salle de bain | ||
| Surface rez-de-chaussée | 645 pi² | Finition extérieure | Aluminium |
| Surface étage | 348 pi² | Type de cuisine | Forme en U + Salle à manger |
| Garage | 0 | ||
| Mur rez-de-chaussée | 8 pi | ||
| Mur étage | 8 pi | ||
| Inclinaison toit gauche/droite | 7/12 + 9/12 |
| Style d'architecture | Champêtre |
|---|---|
|
Coût de construction
Montant approximatif équivalent à celui d'un entrepreneur général (région de la Rive-Sud de Montréal) pour une construction clé en main sans terrain ni infrastructures.
|
208439 $ |
| Façade | 25 pi 10 po |
| Surface habitable totale | 993 pi² |
| Profondeur | 30 pi 6 po |
| Nombre de salles de bain | 2 |
| Hauteur | 24 pi 6 po |
| Nombre de chambres | 3 |
| Chambre des maîtres - commentaires | ACCÈS À LA salle de bain |
| Surface rez-de-chaussée | 645 pi² |
| Finition extérieure | Aluminium |
| Surface étage | 348 pi² |
| Type de cuisine | Forme en U + Salle à manger |
| Garage | 0 |
| Mur rez-de-chaussée | 8 pi |
| Mur étage | 8 pi |
| Inclinaison toit gauche/droite | 7/12 + 9/12 |