03716
03716
03716
03716
03716
03716

03716


Jeux de plans - Sets of plans
Prix régulier$1,035.00
/

Ce site est protégé par hCaptcha, et la Politique de confidentialité et les Conditions de service de hCaptcha s’appliquent.

Description

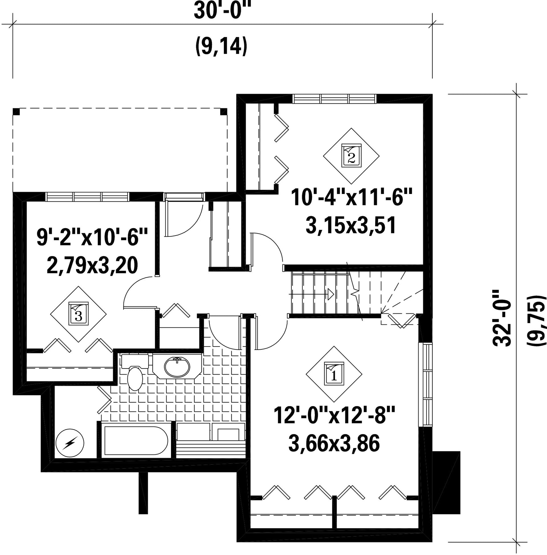
Chambres au sous-sol

Caractéristiques

Mesures : Impérial

Style d'architecture Champêtre Coût de construction 
Montant approximatif équivalent à celui d'un entrepreneur général (région de la Rive-Sud de Montréal) pour une construction clé en main sans terrain ni infrastructures.
166276 $
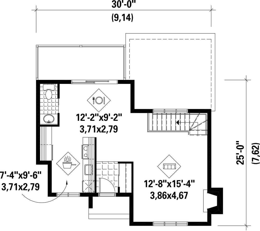
Façade 30 pi Surface habitable totale 1351 pi²
Profondeur 32 piNombre de salles de bain 1
Hauteur 20 pi 8 poNombre de chambres 3
Chambre des maîtres - commentaires 2 GARDE-ROBES
Surface rez-de-chaussée 594 pi²
Type de cuisine Laboratoire + Salle à manger
Garage 0
Mur rez-de-chaussée 8 pi
Inclinaison toit avant/arrière 8/12
Surface sous-sol 757 pi²
Style d'architecture Champêtre
Coût de construction 
Montant approximatif équivalent à celui d'un entrepreneur général (région de la Rive-Sud de Montréal) pour une construction clé en main sans terrain ni infrastructures.
166276 $
Façade 30 pi
Surface habitable totale 1351 pi²
Profondeur 32 pi
Nombre de salles de bain 1
Hauteur 20 pi 8 po
Nombre de chambres 3
Chambre des maîtres - commentaires 2 GARDE-ROBES
Surface rez-de-chaussée 594 pi²
Type de cuisine Laboratoire + Salle à manger
Garage 0
Mur rez-de-chaussée 8 pi
Inclinaison toit avant/arrière 8/12
Surface sous-sol 757 pi²

Ces plans de maison pourraient également vous intéresser


Vu récemment