03511
03511
03511
03511
03511

03511


Jeux de plans - Sets of plans
Prix régulier$2,290.00
/

Ce site est protégé par hCaptcha, et la Politique de confidentialité et les Conditions de service de hCaptcha s’appliquent.

Description

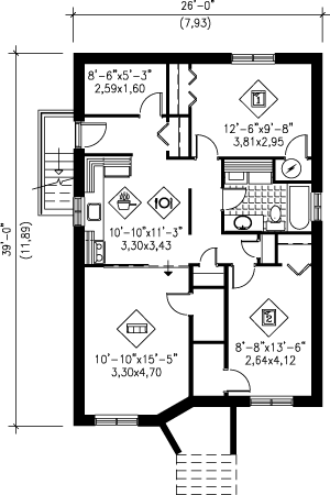
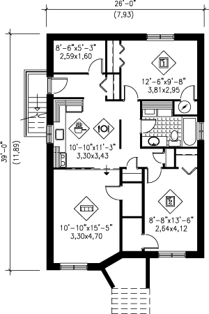
"Propriété à revenus: 3 x 4 1/2 logements Entrée privée pour chacun des logements"

Caractéristiques

Mesures : Impérial

Style d'architecture Moderne Coût de construction 
Montant approximatif équivalent à celui d'un entrepreneur général (région de la Rive-Sud de Montréal) pour une construction clé en main sans terrain ni infrastructures.
413619 $
Façade 26 pi Surface habitable totale 2930 pi²
Profondeur 39 piNombre de salles de bain 3
Hauteur 29 piNombre de chambres 6
Chambre des maîtres - commentaires ESPACE DE RANGEMENT
Surface rez-de-chaussée 984 pi² Finition extérieure Aluminium + Brique
Surface étage 962 pi² Type de cuisine Forme en L + Salle à manger
Garage 0
Mur rez-de-chaussée 8 pi
Mur étage 8 piInclinaison toit avant/arrière 5/12
Surface sous-sol 984 pi²
Style d'architecture Moderne
Coût de construction 
Montant approximatif équivalent à celui d'un entrepreneur général (région de la Rive-Sud de Montréal) pour une construction clé en main sans terrain ni infrastructures.
413619 $
Façade 26 pi
Surface habitable totale 2930 pi²
Profondeur 39 pi
Nombre de salles de bain 3
Hauteur 29 pi
Nombre de chambres 6
Chambre des maîtres - commentaires ESPACE DE RANGEMENT
Surface rez-de-chaussée 984 pi²
Finition extérieure Aluminium + Brique
Surface étage 962 pi²
Type de cuisine Forme en L + Salle à manger
Garage 0
Mur rez-de-chaussée 8 pi
Mur étage 8 pi
Inclinaison toit avant/arrière 5/12
Surface sous-sol 984 pi²

Ces plans de maison pourraient également vous intéresser


Vu récemment