02981
02981
02981
02981

02981


Jeux de plans - Sets of plans
Prix régulier$1,440.00
/

Ce site est protégé par hCaptcha, et la Politique de confidentialité et les Conditions de service de hCaptcha s’appliquent.

Description

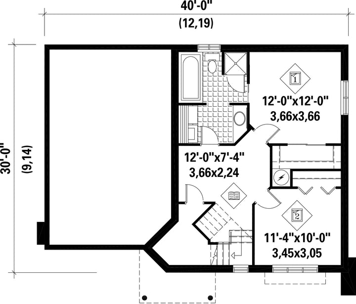
Chambres au sous-sol avec salle de lecture

Caractéristiques

Mesures : Impérial

Style d'architecture Moderne Coût de construction 
Montant approximatif équivalent à celui d'un entrepreneur général (région de la Rive-Sud de Montréal) pour une construction clé en main sans terrain ni infrastructures.
231578 $
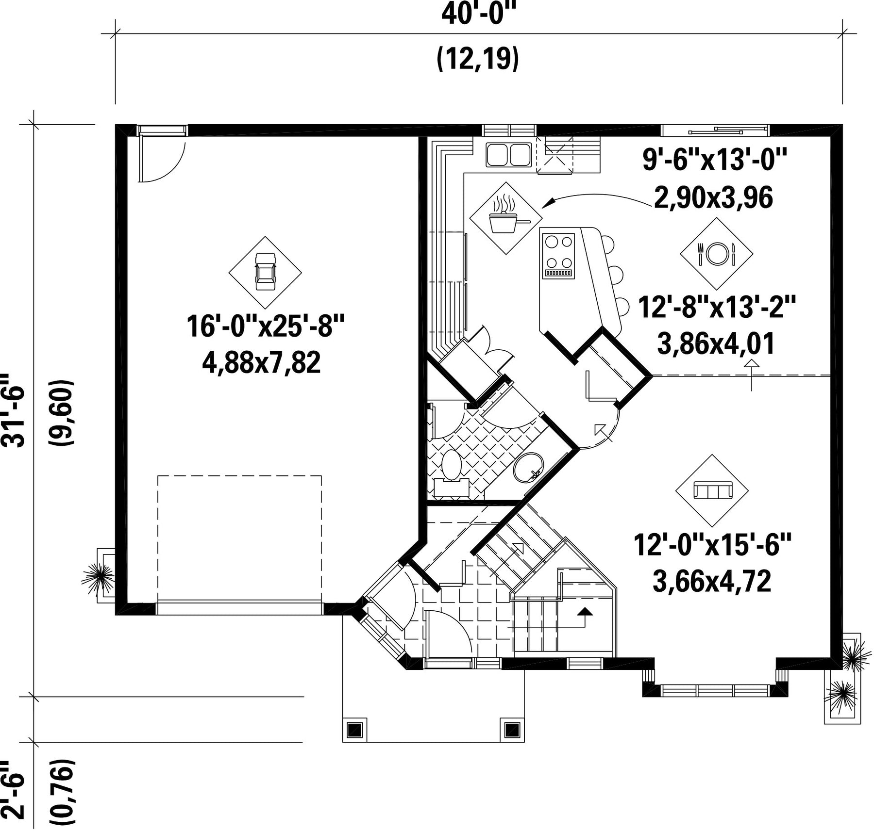
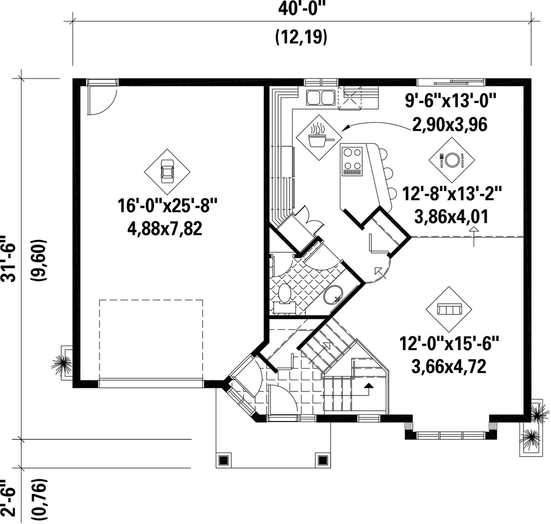
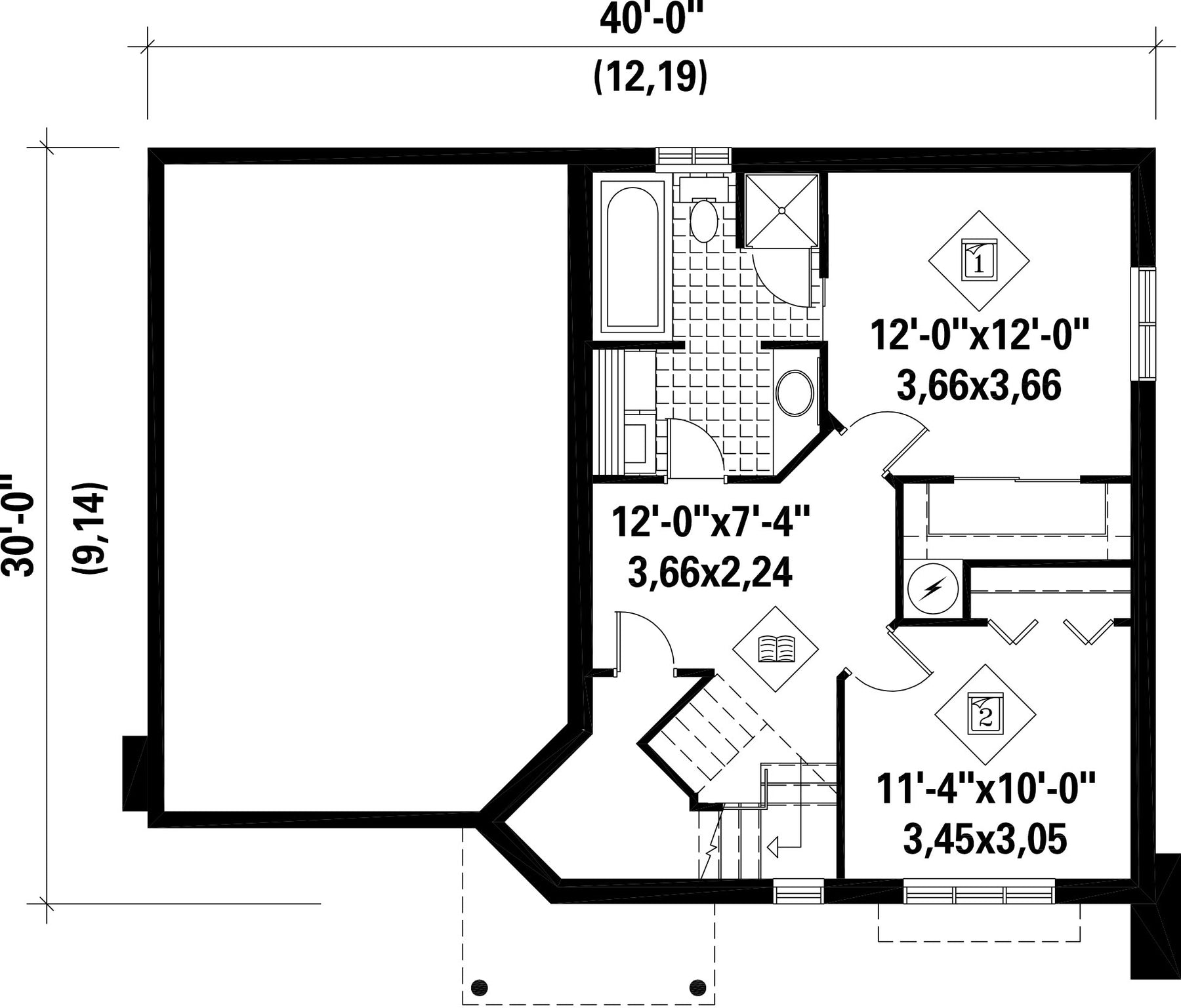
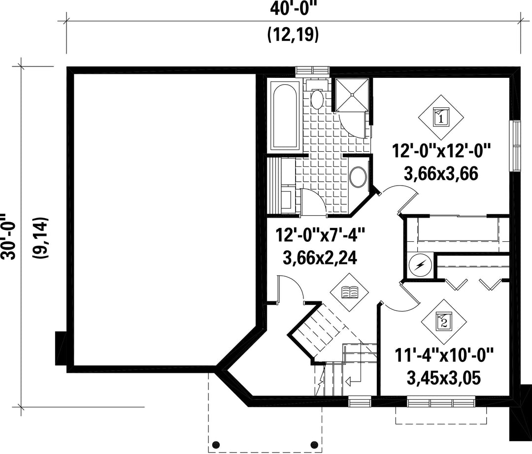
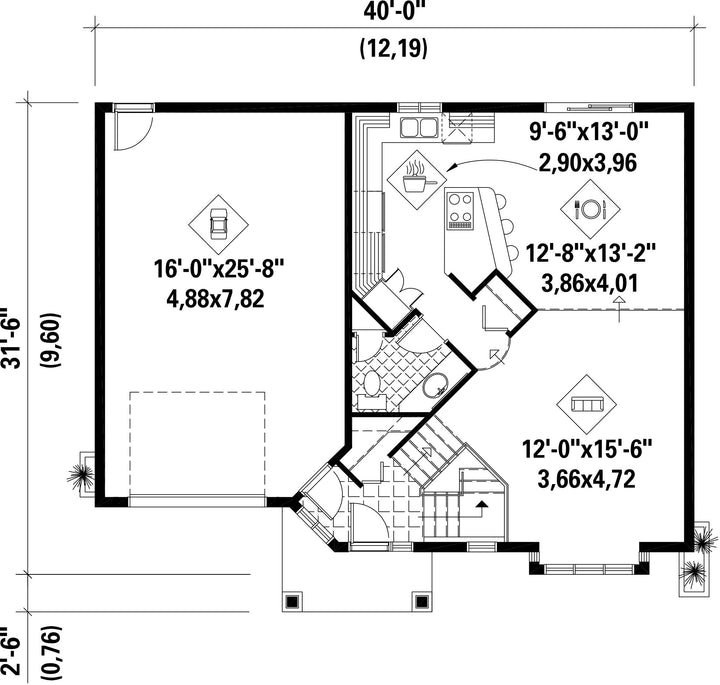
Façade 40 pi Surface habitable totale 1442 pi²
Profondeur 31 pi 6 poNombre de salles de bain 1
Hauteur 21 pi 10 poNombre de chambres 2
Chambre des maîtres Penderie Chambre des maîtres - commentaires Accès à la salle de bain
Surface rez-de-chaussée 727 pi² Finition extérieure Agrégats + Aluminium
Type de cuisine Comptoir repas + Forme en U + Laboratoire
Surface garage 442 pi² Garage 1
Mur garage 8 piMur rez-de-chaussée 8 pi
Inclinaison toit avant/arrière 6/12
Surface sous-sol 715 pi²
Style d'architecture Moderne
Coût de construction 
Montant approximatif équivalent à celui d'un entrepreneur général (région de la Rive-Sud de Montréal) pour une construction clé en main sans terrain ni infrastructures.
231578 $
Façade 40 pi
Surface habitable totale 1442 pi²
Profondeur 31 pi 6 po
Nombre de salles de bain 1
Hauteur 21 pi 10 po
Nombre de chambres 2
Chambre des maîtres Penderie
Chambre des maîtres - commentaires Accès à la salle de bain
Surface rez-de-chaussée 727 pi²
Finition extérieure Agrégats + Aluminium
Type de cuisine Comptoir repas + Forme en U + Laboratoire
Surface garage 442 pi²
Garage 1
Mur garage 8 pi
Mur rez-de-chaussée 8 pi
Inclinaison toit avant/arrière 6/12
Surface sous-sol 715 pi²

Ces plans de maison pourraient également vous intéresser


Vu récemment