02111
02111
02111

02111


Jeux de plans - Sets of plans
Prix régulier$945.00
/

Ce site est protégé par hCaptcha, et la Politique de confidentialité et les Conditions de service de hCaptcha s’appliquent.

Description

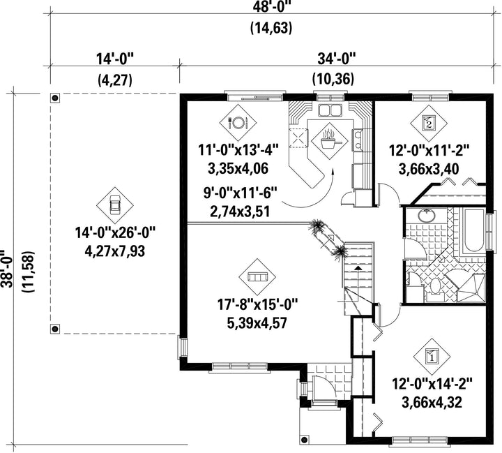
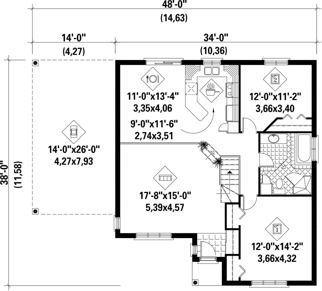
Maison à aire ouverte

Caractéristiques

Mesures : Impérial

Style d'architecture Classique Coût de construction 
Montant approximatif équivalent à celui d'un entrepreneur général (région de la Rive-Sud de Montréal) pour une construction clé en main sans terrain ni infrastructures.
315018 $
Façade 34 pi Surface habitable totale 1168 pi²
Profondeur 38 piNombre de salles de bain 1
Hauteur 22 piNombre de chambres 2
Chambre des maîtres - commentaires 2 garde-robes
Surface rez-de-chaussée 1168 pi² Finition extérieure Aluminium + Brique
Type de cuisine Forme en U + Salle à manger
Surface garage 364 pi² Garage 1
Mur garage 8 piMur rez-de-chaussée 8 pi
Inclinaison toit avant/arrière 6/12
Style d'architecture Classique
Coût de construction 
Montant approximatif équivalent à celui d'un entrepreneur général (région de la Rive-Sud de Montréal) pour une construction clé en main sans terrain ni infrastructures.
315018 $
Façade 34 pi
Surface habitable totale 1168 pi²
Profondeur 38 pi
Nombre de salles de bain 1
Hauteur 22 pi
Nombre de chambres 2
Chambre des maîtres - commentaires 2 garde-robes
Surface rez-de-chaussée 1168 pi²
Finition extérieure Aluminium + Brique
Type de cuisine Forme en U + Salle à manger
Surface garage 364 pi²
Garage 1
Mur garage 8 pi
Mur rez-de-chaussée 8 pi
Inclinaison toit avant/arrière 6/12

Ces plans de maison pourraient également vous intéresser


Vu récemment