Description
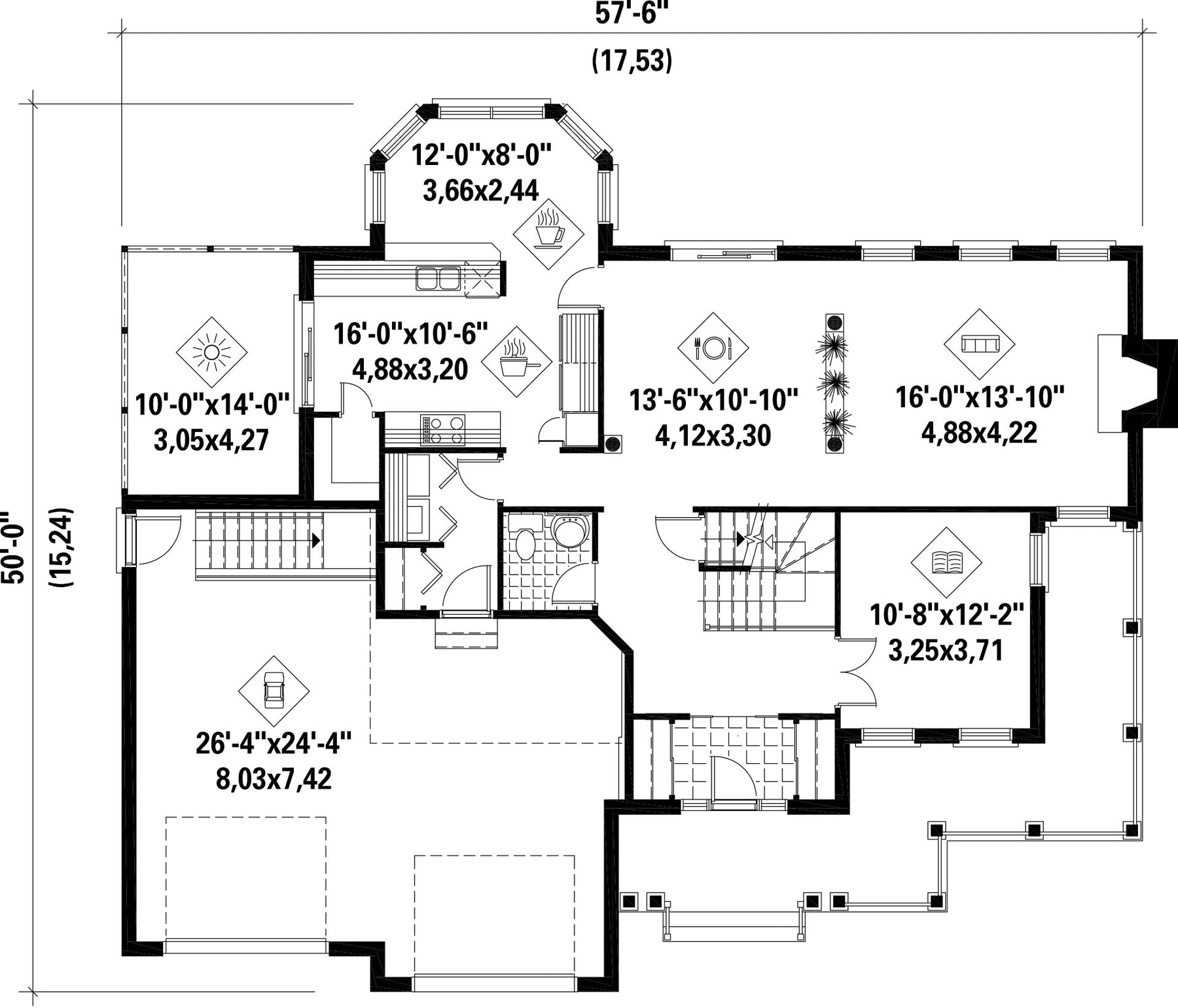
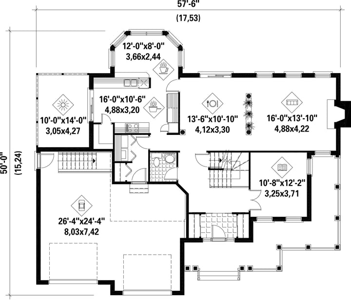
Cette magnifique résidence en met plein la vue sans pour autant faire de compromis sur le confort et la fonctionnalité. La maison est invitante malgré ses imposantes dimensions : 57 pieds de largeur sur 50 pieds de profondeur, ce qui se traduit par une surface habitable de 2 461 pieds carrés.
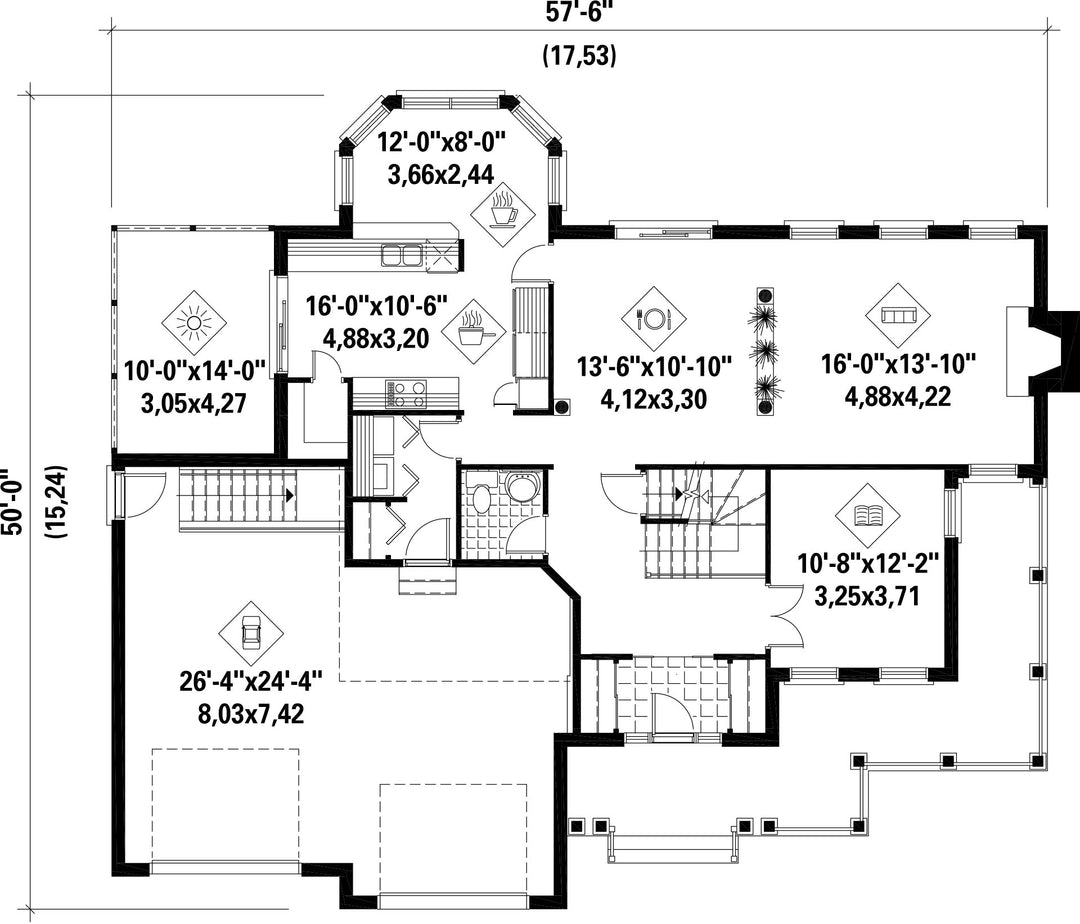
Le rez-de-chaussée de 1 260 pieds carrés comporte une cuisine avec coin-repas, une salle à manger, un solarium, une salle d’eau, un salon avec foyer, une salle de lecture, ainsi qu’un garage double de 659 pieds carrés incluant un escalier qui donne accès au sous-sol.
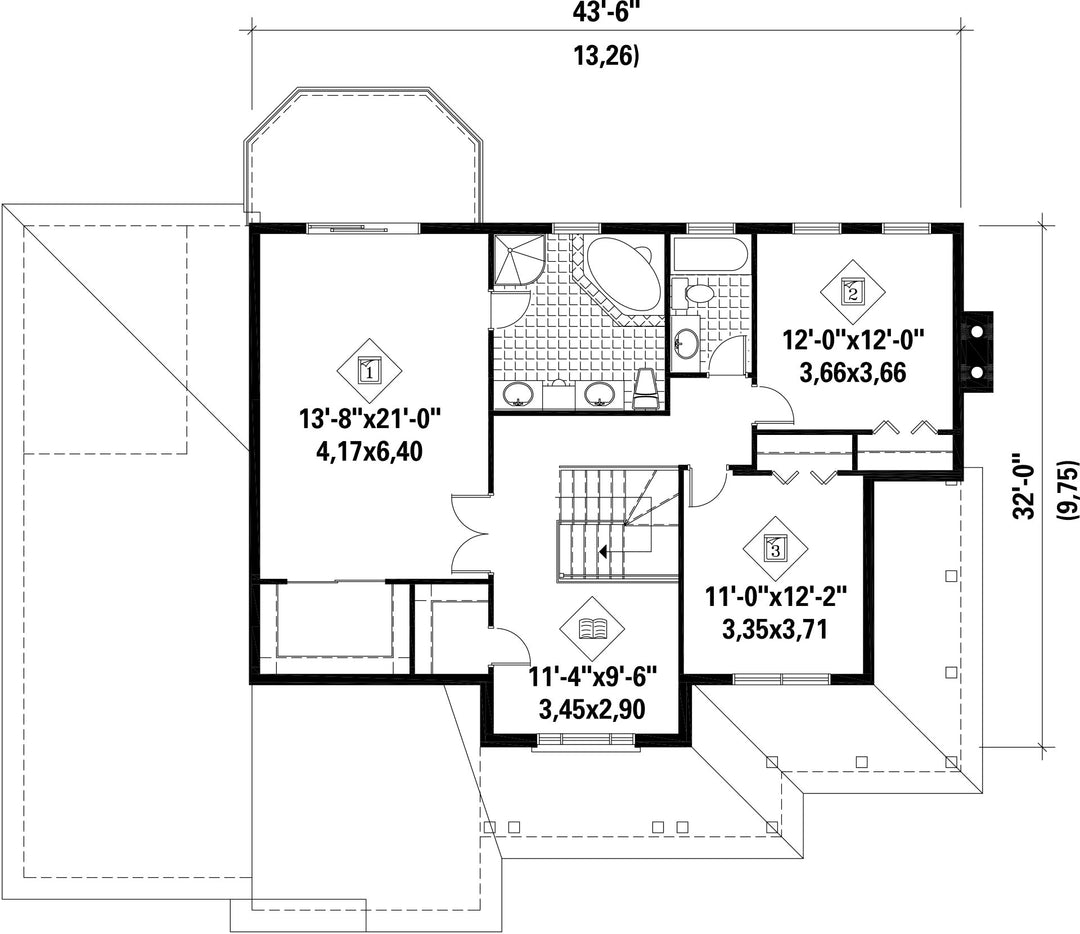
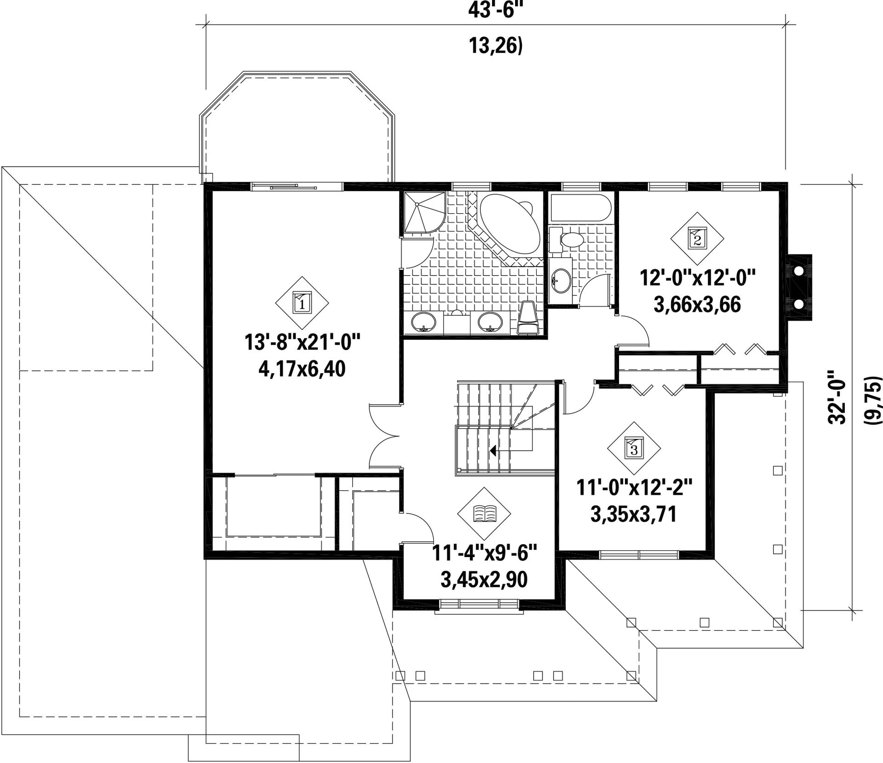
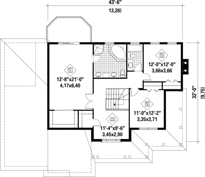
L’étage de 1 201 pieds carrés comprend une salle de lecture, trois chambres et une salle de bains familiale. La chambre principale, qui occupe à elle seule presque 300 pieds carrés, comporte une salle de bains privée, une grande penderie, ainsi qu’un accès à un balcon donnant sur l’arrière de la maison.
Le rez-de-chaussée de 1 260 pieds carrés comporte une cuisine avec coin-repas, une salle à manger, un solarium, une salle d’eau, un salon avec foyer, une salle de lecture, ainsi qu’un garage double de 659 pieds carrés incluant un escalier qui donne accès au sous-sol.
L’étage de 1 201 pieds carrés comprend une salle de lecture, trois chambres et une salle de bains familiale. La chambre principale, qui occupe à elle seule presque 300 pieds carrés, comporte une salle de bains privée, une grande penderie, ainsi qu’un accès à un balcon donnant sur l’arrière de la maison.
Caractéristiques
Mesures : Impérial| Style d'architecture | Champêtre |
Coût de construction
Montant approximatif équivalent à celui d'un entrepreneur général (région de la Rive-Sud de Montréal) pour une construction clé en main sans terrain ni infrastructures.
|
619523 $ |
|---|---|---|---|
| Façade | 57 pi | Surface habitable totale | 2461 pi² |
| Profondeur | 50 pi | Nombre de salles de bain | 2 |
| Hauteur | 36 pi 6 po | Nombre de chambres | 3 |
| Chambre des maîtres | Bain podium + Douche + Lavabo double + Penderie + Portes doubles + Toilettes | Chambre des maîtres - commentaires | Grande chambre |
| Surface rez-de-chaussée | 1260 pi² | Finition extérieure | Aluminium + Pierre |
| Surface étage | 1201 pi² | Type de cuisine | Coin repas + Comptoir repas + Forme en U + Salle à manger |
| Surface garage | 659 pi² | Garage | 2 |
| Mur garage | 8 pi | Mur rez-de-chaussée | 9 pi |
| Mur étage | 8 pi | Inclinaison toit avant/arrière | 12/12 |
| Inclinaison toit gauche/droite | 12/12 |
| Style d'architecture | Champêtre |
|---|---|
|
Coût de construction
Montant approximatif équivalent à celui d'un entrepreneur général (région de la Rive-Sud de Montréal) pour une construction clé en main sans terrain ni infrastructures.
|
619523 $ |
| Façade | 57 pi |
| Surface habitable totale | 2461 pi² |
| Profondeur | 50 pi |
| Nombre de salles de bain | 2 |
| Hauteur | 36 pi 6 po |
| Nombre de chambres | 3 |
| Chambre des maîtres | Bain podium + Douche + Lavabo double + Penderie + Portes doubles + Toilettes |
| Chambre des maîtres - commentaires | Grande chambre |
| Surface rez-de-chaussée | 1260 pi² |
| Finition extérieure | Aluminium + Pierre |
| Surface étage | 1201 pi² |
| Type de cuisine | Coin repas + Comptoir repas + Forme en U + Salle à manger |
| Surface garage | 659 pi² |
| Garage | 2 |
| Mur garage | 8 pi |
| Mur rez-de-chaussée | 9 pi |
| Mur étage | 8 pi |
| Inclinaison toit avant/arrière | 12/12 |
| Inclinaison toit gauche/droite | 12/12 |