01994
01994
01994
01994
01994
01994

01994


Jeux de plans - Sets of plans
Prix régulier$1,134.00
/

Ce site est protégé par hCaptcha, et la Politique de confidentialité et les Conditions de service de hCaptcha s’appliquent.

Description

2 garde-robes à l'entrée

Caractéristiques

Mesures : Impérial

Style d'architecture Victorien Coût de construction 
Montant approximatif équivalent à celui d'un entrepreneur général (région de la Rive-Sud de Montréal) pour une construction clé en main sans terrain ni infrastructures.
364337 $
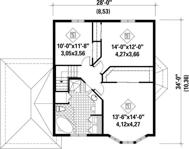
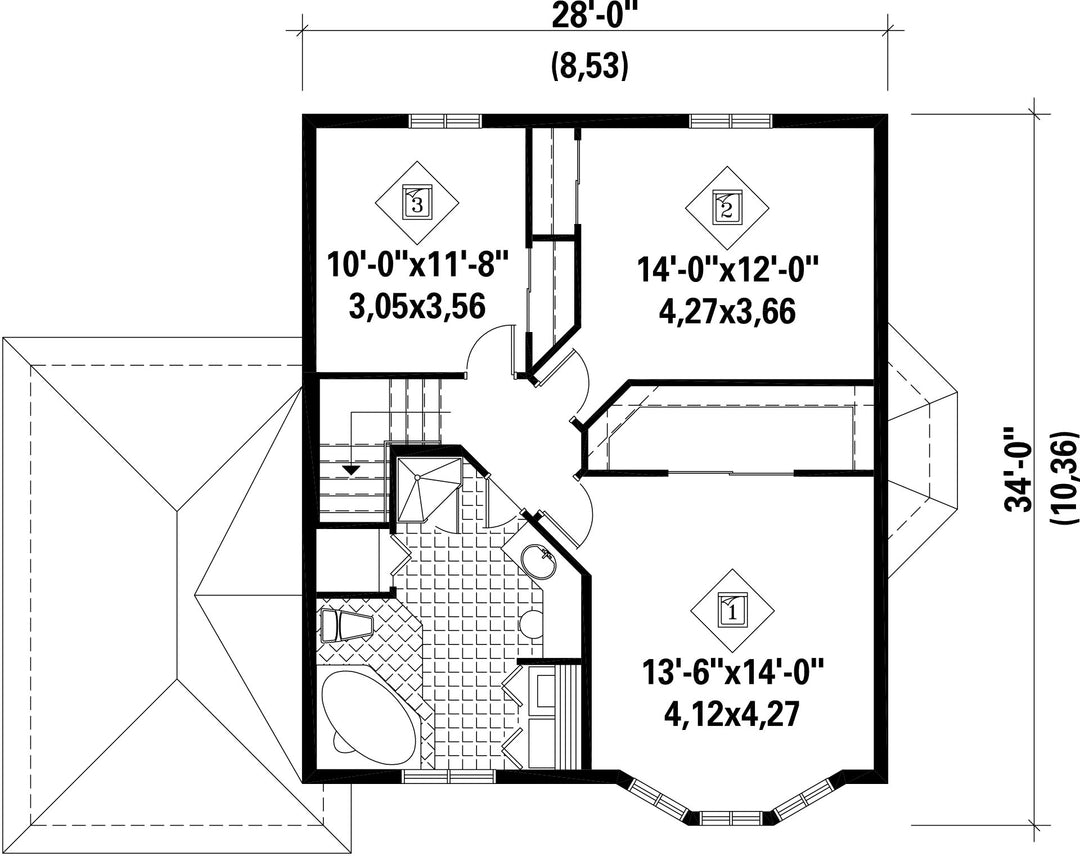
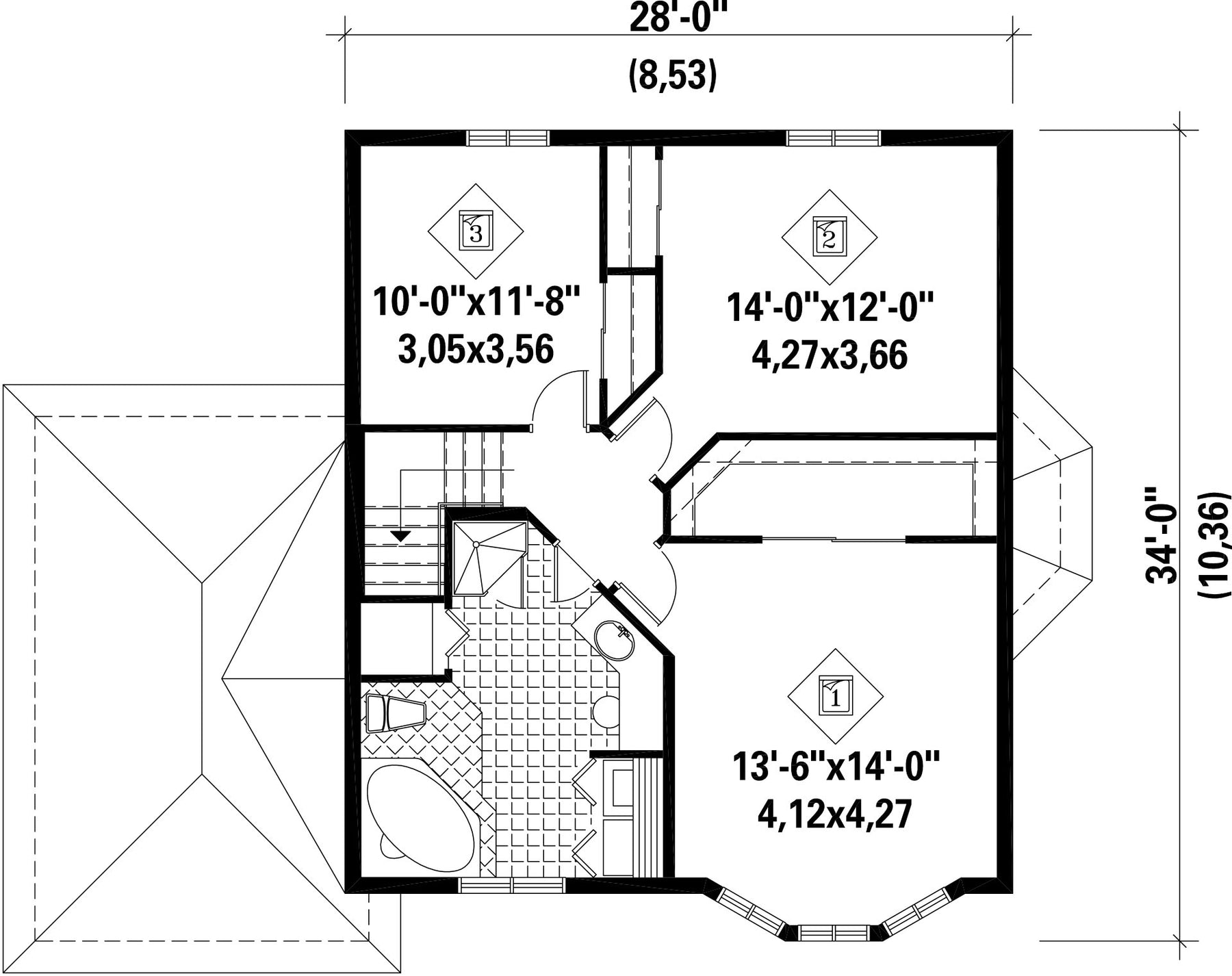
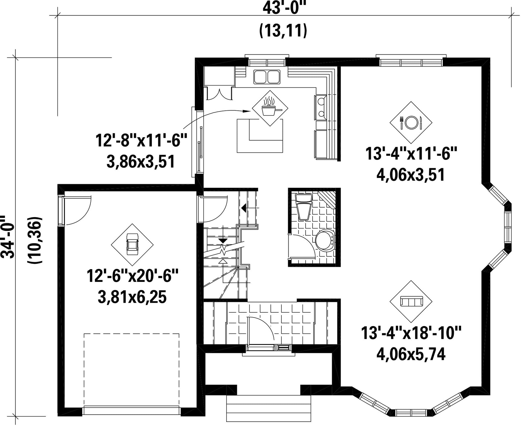
Façade 43 pi Surface habitable totale 1778 pi²
Profondeur 34 piNombre de salles de bain 1
Hauteur 35 pi 9 poNombre de chambres 3
Chambre des maîtres Penderie Chambre des maîtres - commentaires ---
Surface rez-de-chaussée 867 pi² Finition extérieure Aluminium + Brique
Surface étage 911 pi² Type de cuisine Comptoir repas + Forme en L + Salle à manger + Îlot
Surface garage 298 pi² Garage 1
Mur garage 8 piMur rez-de-chaussée 8 pi
Mur étage 8 piInclinaison toit avant/arrière 12/12
Inclinaison toit gauche/droite 12/12
Style d'architecture Victorien
Coût de construction 
Montant approximatif équivalent à celui d'un entrepreneur général (région de la Rive-Sud de Montréal) pour une construction clé en main sans terrain ni infrastructures.
364337 $
Façade 43 pi
Surface habitable totale 1778 pi²
Profondeur 34 pi
Nombre de salles de bain 1
Hauteur 35 pi 9 po
Nombre de chambres 3
Chambre des maîtres Penderie
Chambre des maîtres - commentaires ---
Surface rez-de-chaussée 867 pi²
Finition extérieure Aluminium + Brique
Surface étage 911 pi²
Type de cuisine Comptoir repas + Forme en L + Salle à manger + Îlot
Surface garage 298 pi²
Garage 1
Mur garage 8 pi
Mur rez-de-chaussée 8 pi
Mur étage 8 pi
Inclinaison toit avant/arrière 12/12
Inclinaison toit gauche/droite 12/12

Ces plans de maison pourraient également vous intéresser


Vu récemment