01989
01989
01989
01989

01989


Jeux de plans - Sets of plans
Prix régulier$1,740.00
/

Ce site est protégé par hCaptcha, et la Politique de confidentialité et les Conditions de service de hCaptcha s’appliquent.

Description

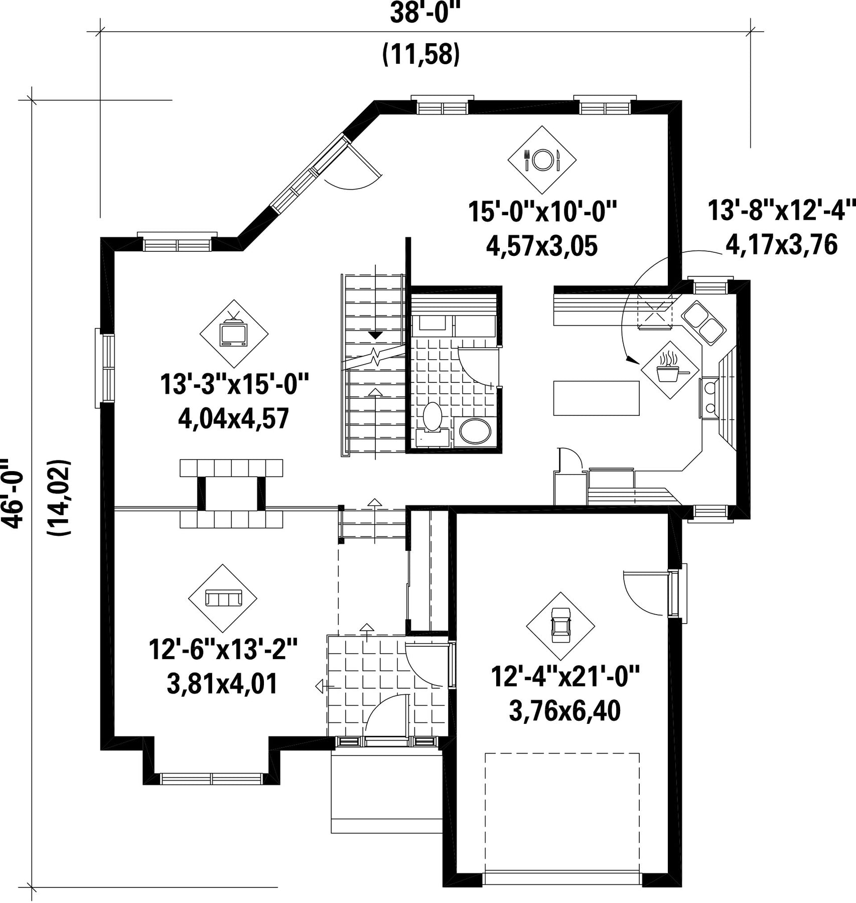
Salle familiale et de lecture

Caractéristiques

Mesures : Impérial

Style d'architecture Moderne Coût de construction 
Montant approximatif équivalent à celui d'un entrepreneur général (région de la Rive-Sud de Montréal) pour une construction clé en main sans terrain ni infrastructures.
493290 $
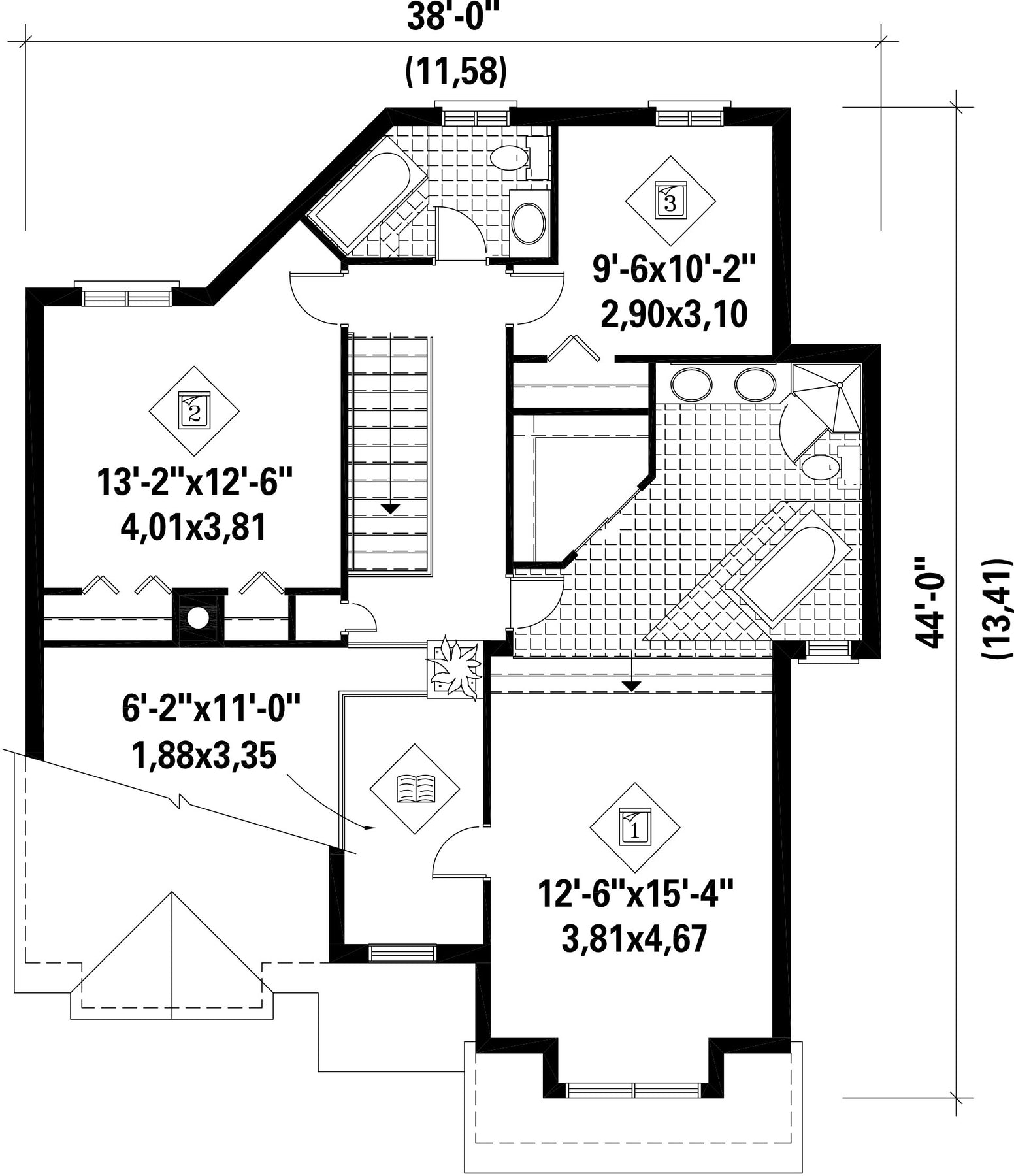
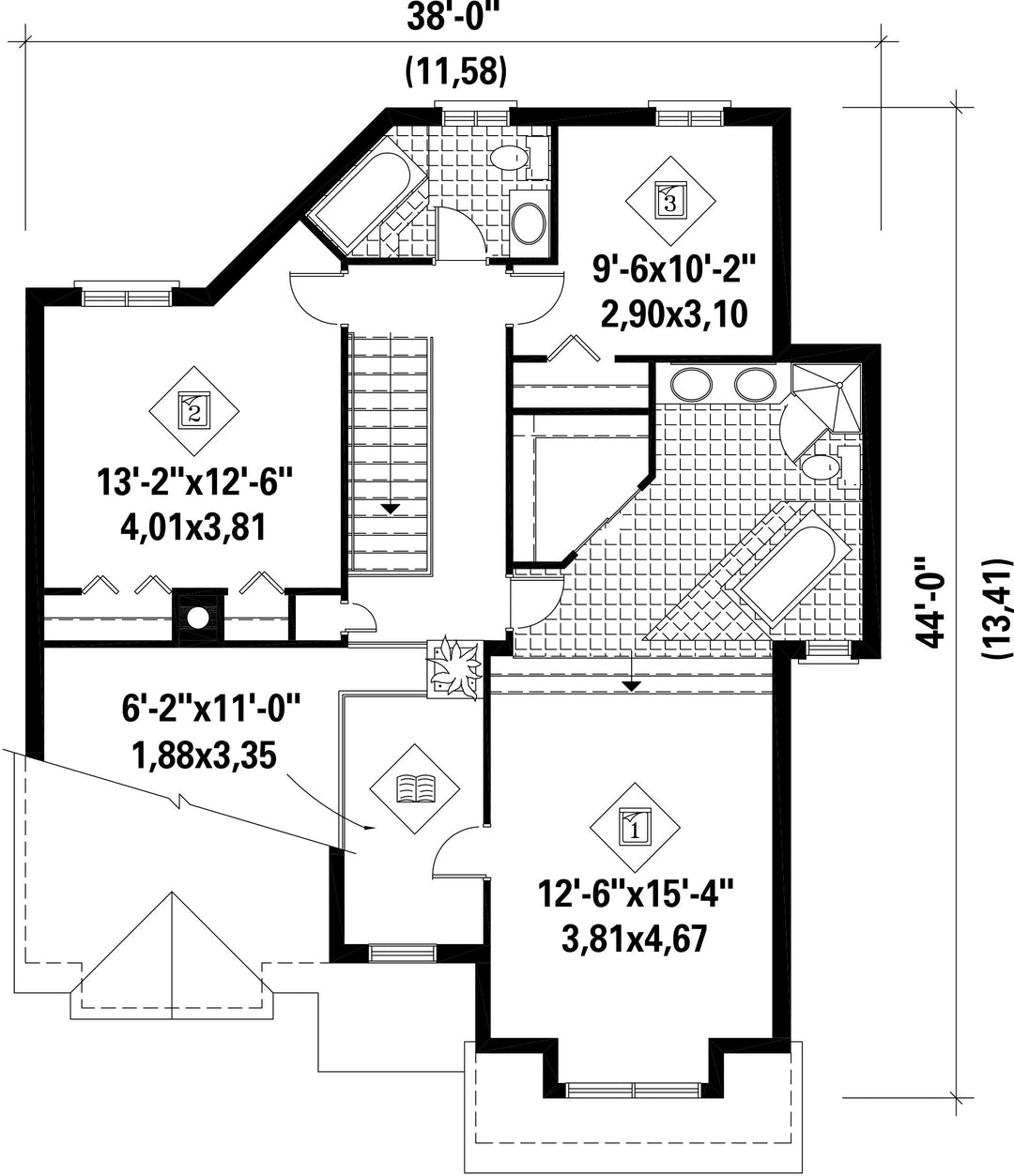
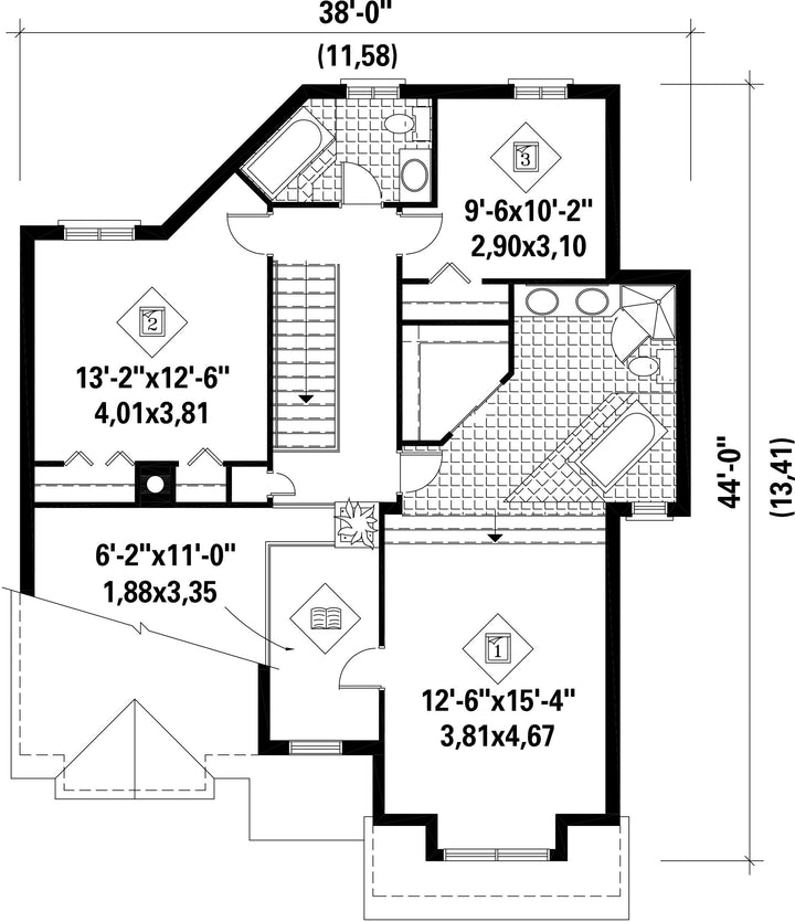
Façade 38 pi Surface habitable totale 2203 pi²
Profondeur 46 piNombre de salles de bain 3
Hauteur 31 pi 10 poNombre de chambres 3
Chambre des maîtres Bain podium + Douche + Lavabo double + Penderie + Toilettes Chambre des maîtres - commentaires 3 contre-marches pour aller dans la salle de lecture
Surface rez-de-chaussée 1086 pi² Finition extérieure Agrégats + Brique
Surface étage 1117 pi² Type de cuisine Forme en U + Salle à manger + Îlot
Surface garage 294 pi² Garage 1
Mur garage 8 piMur rez-de-chaussée 8 pi
Mur étage 8 piInclinaison toit avant/arrière 6/12
Inclinaison toit gauche/droite 8/12
Style d'architecture Moderne
Coût de construction 
Montant approximatif équivalent à celui d'un entrepreneur général (région de la Rive-Sud de Montréal) pour une construction clé en main sans terrain ni infrastructures.
493290 $
Façade 38 pi
Surface habitable totale 2203 pi²
Profondeur 46 pi
Nombre de salles de bain 3
Hauteur 31 pi 10 po
Nombre de chambres 3
Chambre des maîtres Bain podium + Douche + Lavabo double + Penderie + Toilettes
Chambre des maîtres - commentaires 3 contre-marches pour aller dans la salle de lecture
Surface rez-de-chaussée 1086 pi²
Finition extérieure Agrégats + Brique
Surface étage 1117 pi²
Type de cuisine Forme en U + Salle à manger + Îlot
Surface garage 294 pi²
Garage 1
Mur garage 8 pi
Mur rez-de-chaussée 8 pi
Mur étage 8 pi
Inclinaison toit avant/arrière 6/12
Inclinaison toit gauche/droite 8/12

Ces plans de maison pourraient également vous intéresser


Vu récemment