01971
01971
01971

01971


Jeux de plans - Sets of plans
Prix régulier$945.00
/

Ce site est protégé par hCaptcha, et la Politique de confidentialité et les Conditions de service de hCaptcha s’appliquent.

Description

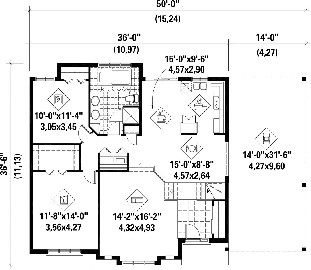
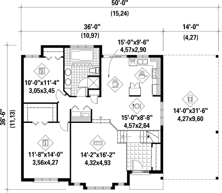
"Belles grandes pièces Entrée et salon plus bas"

Caractéristiques

Mesures : Impérial

Style d'architecture Moderne Coût de construction 
Montant approximatif équivalent à celui d'un entrepreneur général (région de la Rive-Sud de Montréal) pour une construction clé en main sans terrain ni infrastructures.
317591 $
Façade 36 pi Surface habitable totale 1197 pi²
Profondeur 36 pi 6 poNombre de salles de bain 1
Hauteur 21 pi 7 poNombre de chambres 2
Chambre des maîtres Penderie Chambre des maîtres - commentaires ---
Surface rez-de-chaussée 1197 pi² Finition extérieure Agrégats + Pierre
Type de cuisine Coin repas + Forme en L
Surface garage 441 pi² Garage 1
Mur garage 8 piMur rez-de-chaussée 8 pi
Inclinaison toit avant/arrière 6/12
Style d'architecture Moderne
Coût de construction 
Montant approximatif équivalent à celui d'un entrepreneur général (région de la Rive-Sud de Montréal) pour une construction clé en main sans terrain ni infrastructures.
317591 $
Façade 36 pi
Surface habitable totale 1197 pi²
Profondeur 36 pi 6 po
Nombre de salles de bain 1
Hauteur 21 pi 7 po
Nombre de chambres 2
Chambre des maîtres Penderie
Chambre des maîtres - commentaires ---
Surface rez-de-chaussée 1197 pi²
Finition extérieure Agrégats + Pierre
Type de cuisine Coin repas + Forme en L
Surface garage 441 pi²
Garage 1
Mur garage 8 pi
Mur rez-de-chaussée 8 pi
Inclinaison toit avant/arrière 6/12

Ces plans de maison pourraient également vous intéresser


Vu récemment