01954
01954
01954

01954


Jeux de plans - Sets of plans
Prix régulier$1,240.00
/

Ce site est protégé par hCaptcha, et la Politique de confidentialité et les Conditions de service de hCaptcha s’appliquent.

Description

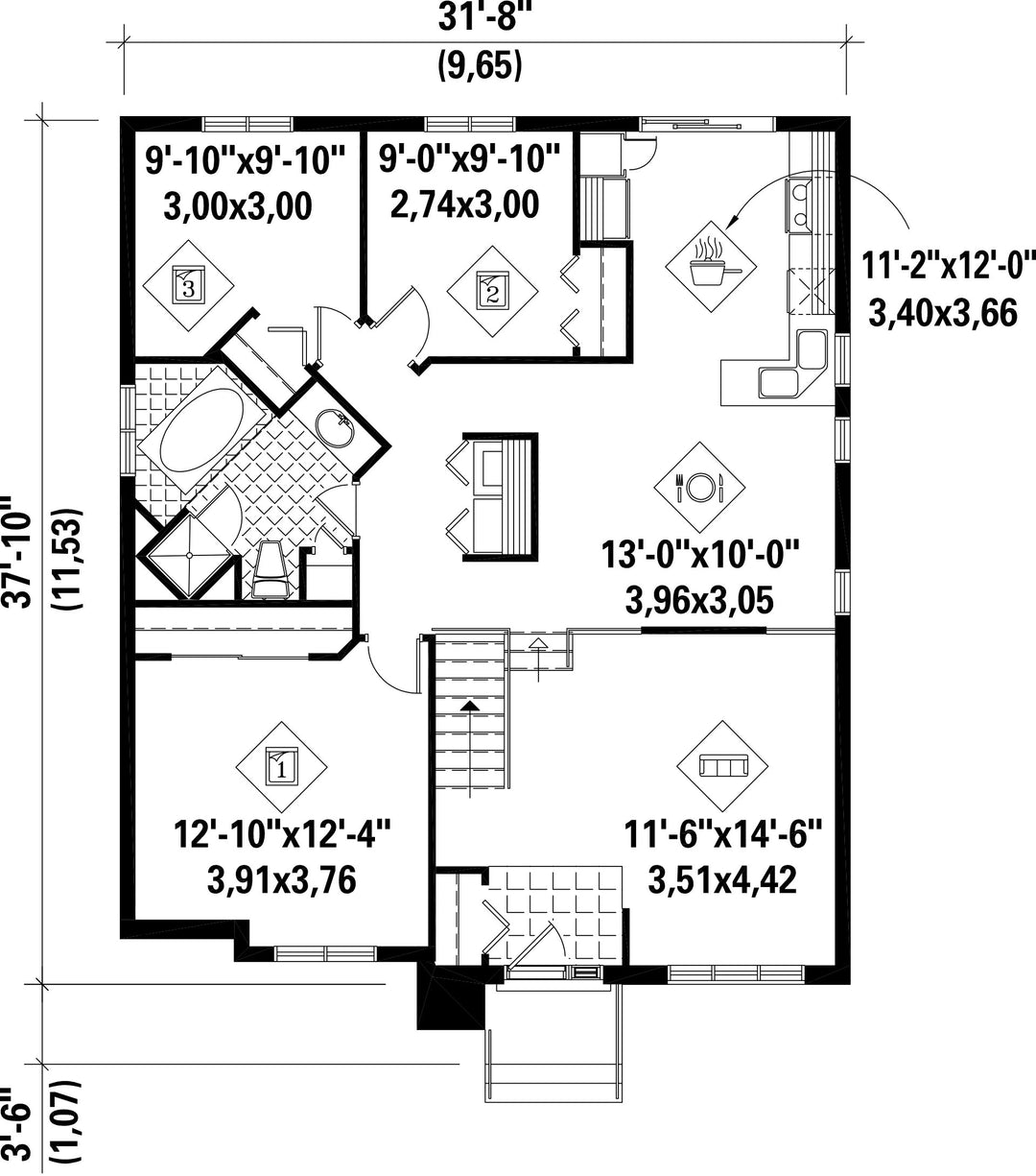
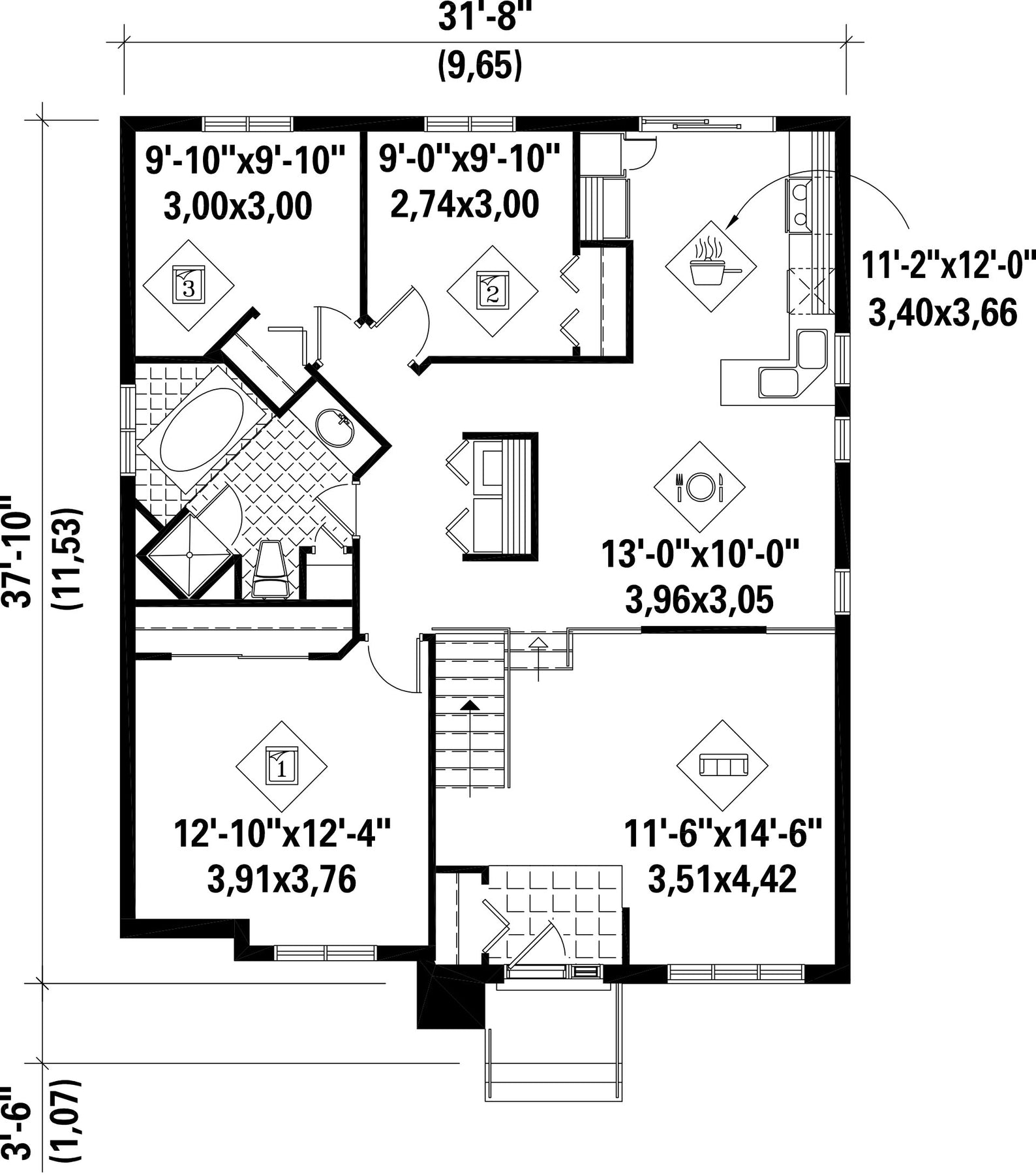
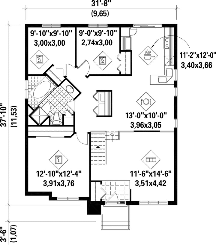
"Entrée et salon plus bas Laveuse et sécheuse au rez-de-chaussée"

Caractéristiques

Mesures : Impérial

Style d'architecture Classique Coût de construction 
Montant approximatif équivalent à celui d'un entrepreneur général (région de la Rive-Sud de Montréal) pour une construction clé en main sans terrain ni infrastructures.
279528 $
Façade 32 pi Surface habitable totale 1198 pi²
Profondeur 38 piNombre de salles de bain 1
Hauteur 22 pi 6 poNombre de chambres 3
Chambre des maîtres - commentaires Garde-robe
Surface rez-de-chaussée 1198 pi² Finition extérieure Aluminium + Brique
Type de cuisine Forme en U + Salle à manger
Garage 0
Mur rez-de-chaussée 8 pi
Inclinaison toit avant/arrière 6/12
Style d'architecture Classique
Coût de construction 
Montant approximatif équivalent à celui d'un entrepreneur général (région de la Rive-Sud de Montréal) pour une construction clé en main sans terrain ni infrastructures.
279528 $
Façade 32 pi
Surface habitable totale 1198 pi²
Profondeur 38 pi
Nombre de salles de bain 1
Hauteur 22 pi 6 po
Nombre de chambres 3
Chambre des maîtres - commentaires Garde-robe
Surface rez-de-chaussée 1198 pi²
Finition extérieure Aluminium + Brique
Type de cuisine Forme en U + Salle à manger
Garage 0
Mur rez-de-chaussée 8 pi
Inclinaison toit avant/arrière 6/12

Ces plans de maison pourraient également vous intéresser


Vu récemment