01941
01941
01941
01941

01941


Jeux de plans - Sets of plans
Prix régulier$1,440.00
/

Ce site est protégé par hCaptcha, et la Politique de confidentialité et les Conditions de service de hCaptcha s’appliquent.

Description

Plafond cathédrale au salon

Caractéristiques

Mesures : Impérial

Style d'architecture Moderne Coût de construction 
Montant approximatif équivalent à celui d'un entrepreneur général (région de la Rive-Sud de Montréal) pour une construction clé en main sans terrain ni infrastructures.
272869 $
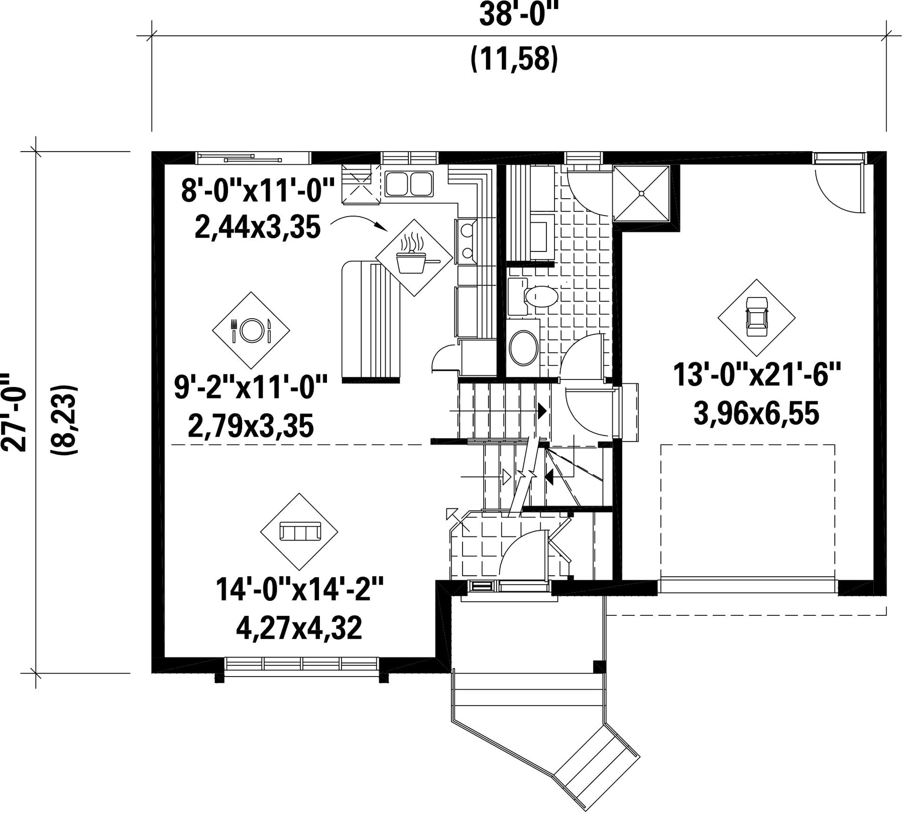
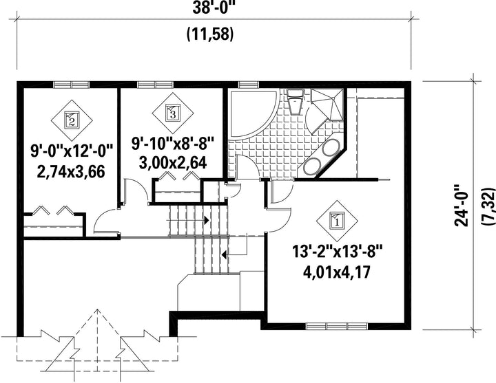
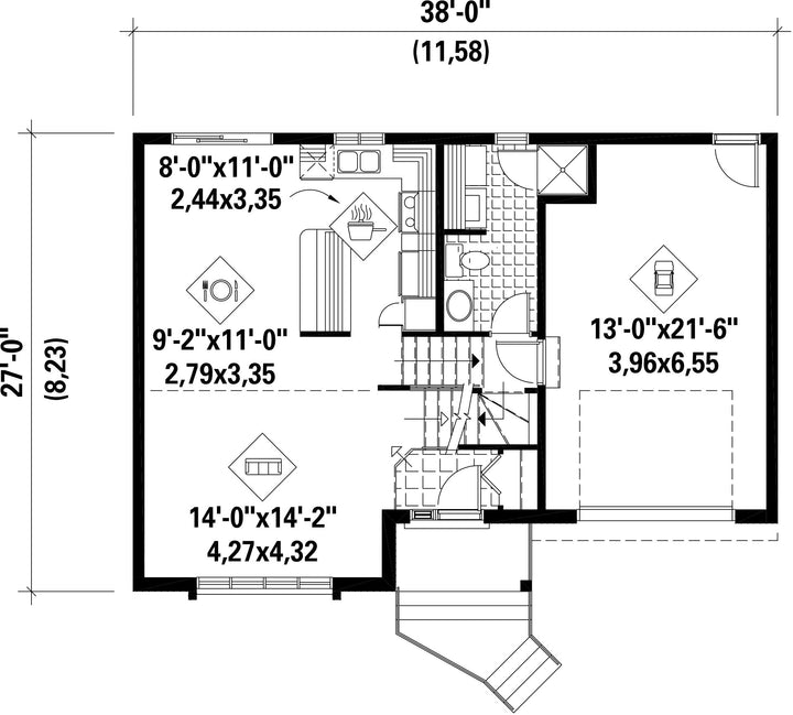
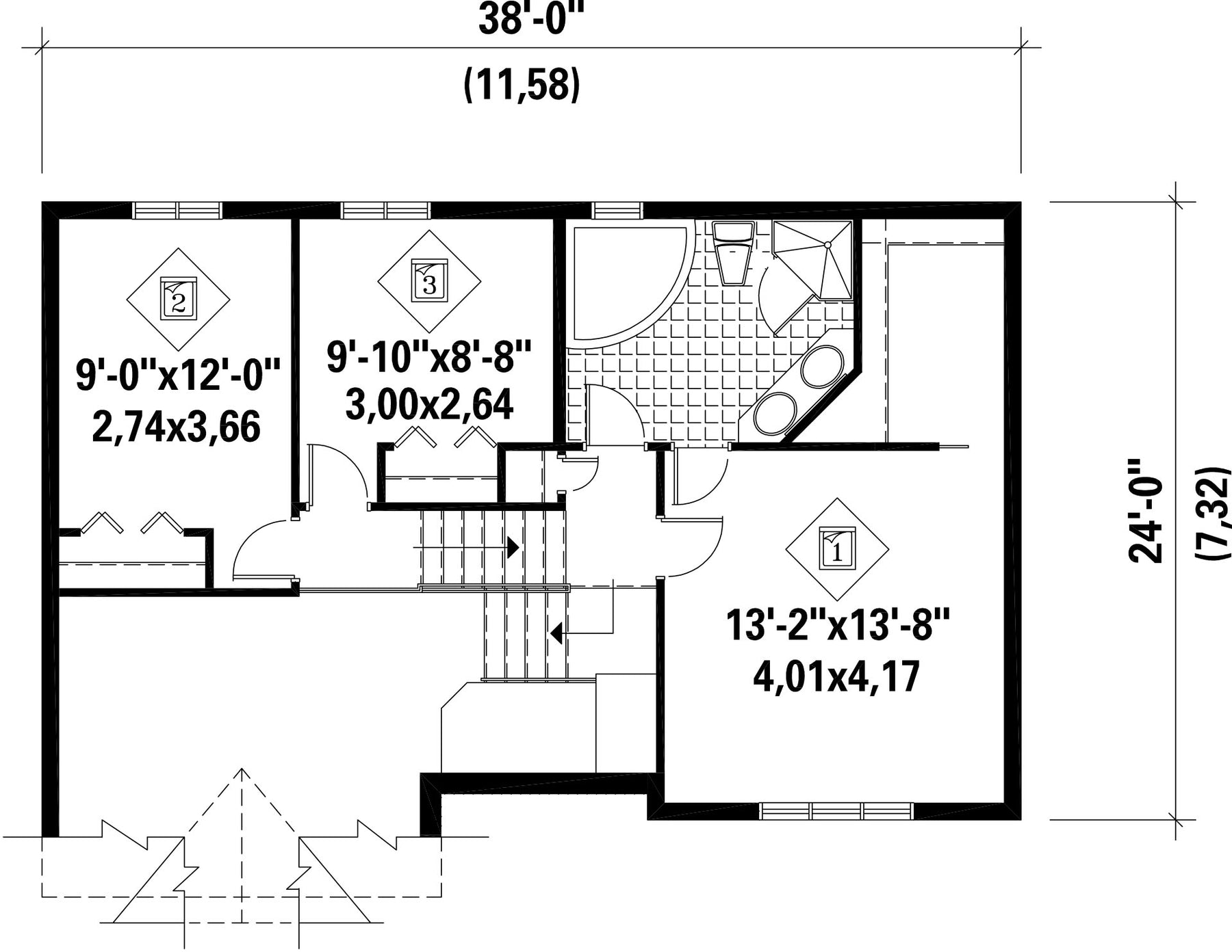
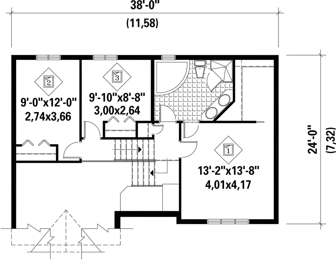
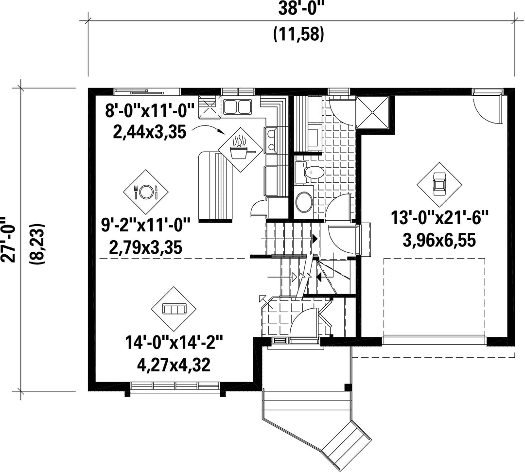
Façade 38 pi Surface habitable totale 1341 pi²
Profondeur 27 piNombre de salles de bain 2
Hauteur 29 pi 1 poNombre de chambres 3
Chambre des maîtres Penderie Chambre des maîtres - commentaires Accès à la salle de bain
Surface rez-de-chaussée 635 pi² Finition extérieure Aluminium + Pierre
Surface étage 706 pi² Type de cuisine Forme en L + Îlot
Surface garage 302 pi² Garage 1
Mur garage 8 piMur rez-de-chaussée 8 pi
Mur étage 8 piInclinaison toit avant/arrière 10/12+5/12
Style d'architecture Moderne
Coût de construction 
Montant approximatif équivalent à celui d'un entrepreneur général (région de la Rive-Sud de Montréal) pour une construction clé en main sans terrain ni infrastructures.
272869 $
Façade 38 pi
Surface habitable totale 1341 pi²
Profondeur 27 pi
Nombre de salles de bain 2
Hauteur 29 pi 1 po
Nombre de chambres 3
Chambre des maîtres Penderie
Chambre des maîtres - commentaires Accès à la salle de bain
Surface rez-de-chaussée 635 pi²
Finition extérieure Aluminium + Pierre
Surface étage 706 pi²
Type de cuisine Forme en L + Îlot
Surface garage 302 pi²
Garage 1
Mur garage 8 pi
Mur rez-de-chaussée 8 pi
Mur étage 8 pi
Inclinaison toit avant/arrière 10/12+5/12

Ces plans de maison pourraient également vous intéresser


Vu récemment