01933
01933
01933
01933

01933


Jeux de plans - Sets of plans
Prix régulier$1,134.00
/

Ce site est protégé par hCaptcha, et la Politique de confidentialité et les Conditions de service de hCaptcha s’appliquent.

Description

Foyer à 2 faces

Caractéristiques

Mesures : Impérial

Style d'architecture Européen Coût de construction 
Montant approximatif équivalent à celui d'un entrepreneur général (région de la Rive-Sud de Montréal) pour une construction clé en main sans terrain ni infrastructures.
404765 $
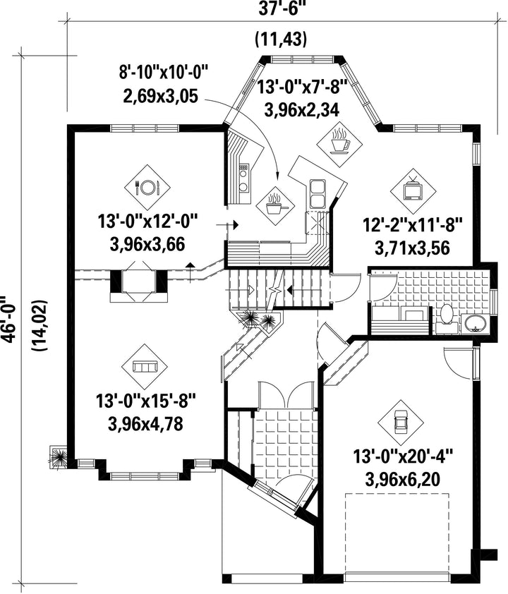
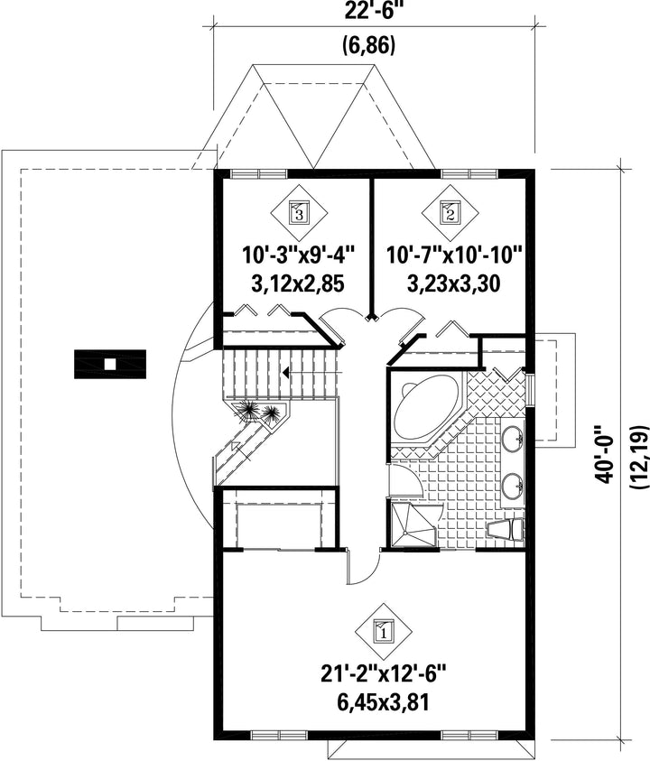
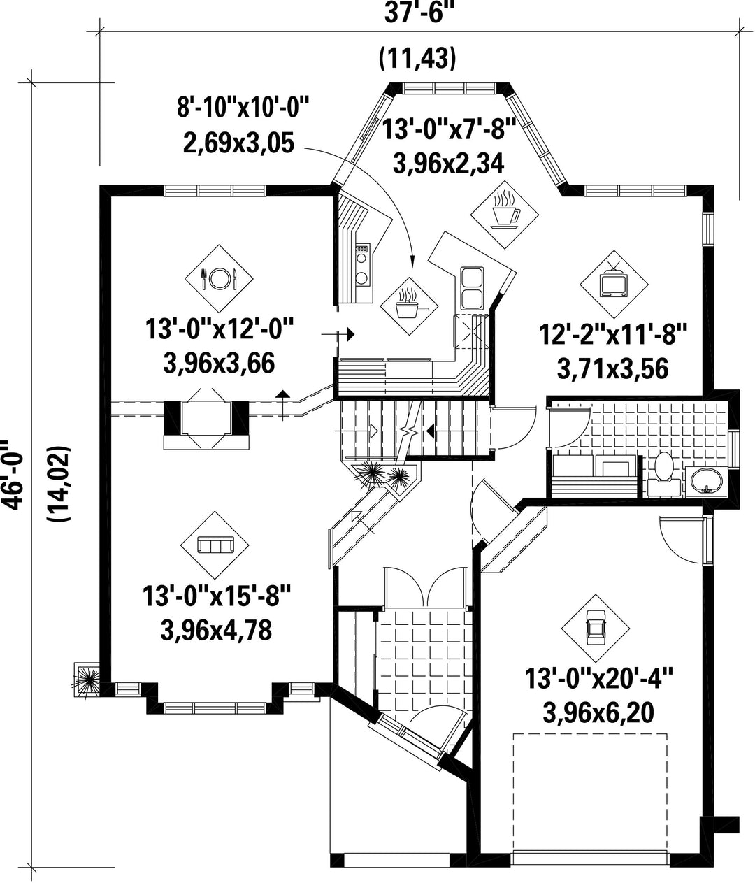
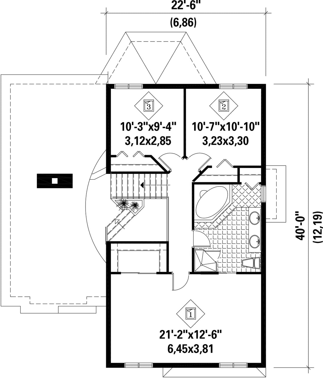
Façade 37 pi 6 po Surface habitable totale 1939 pi²
Profondeur 46 piNombre de salles de bain 1
Hauteur 26 pi 2 poNombre de chambres 3
Chambre des maîtres Penderie Chambre des maîtres - commentaires Accès à la salle de bain
Surface rez-de-chaussée 1039 pi² Finition extérieure Agrégats + Brique
Surface étage 900 pi² Type de cuisine Coin repas + Forme en U
Surface garage 288 pi² Garage 1
Mur garage 8 piMur rez-de-chaussée 8 pi
Mur étage 8 piInclinaison toit avant/arrière 4/12
Inclinaison toit gauche/droite 8/12
Style d'architecture Européen
Coût de construction 
Montant approximatif équivalent à celui d'un entrepreneur général (région de la Rive-Sud de Montréal) pour une construction clé en main sans terrain ni infrastructures.
404765 $
Façade 37 pi 6 po
Surface habitable totale 1939 pi²
Profondeur 46 pi
Nombre de salles de bain 1
Hauteur 26 pi 2 po
Nombre de chambres 3
Chambre des maîtres Penderie
Chambre des maîtres - commentaires Accès à la salle de bain
Surface rez-de-chaussée 1039 pi²
Finition extérieure Agrégats + Brique
Surface étage 900 pi²
Type de cuisine Coin repas + Forme en U
Surface garage 288 pi²
Garage 1
Mur garage 8 pi
Mur rez-de-chaussée 8 pi
Mur étage 8 pi
Inclinaison toit avant/arrière 4/12
Inclinaison toit gauche/droite 8/12

Ces plans de maison pourraient également vous intéresser


Vu récemment