01932
01932
01932

01932


Jeux de plans - Sets of plans
Prix régulier$945.00
/

Ce site est protégé par hCaptcha, et la Politique de confidentialité et les Conditions de service de hCaptcha s’appliquent.

Description

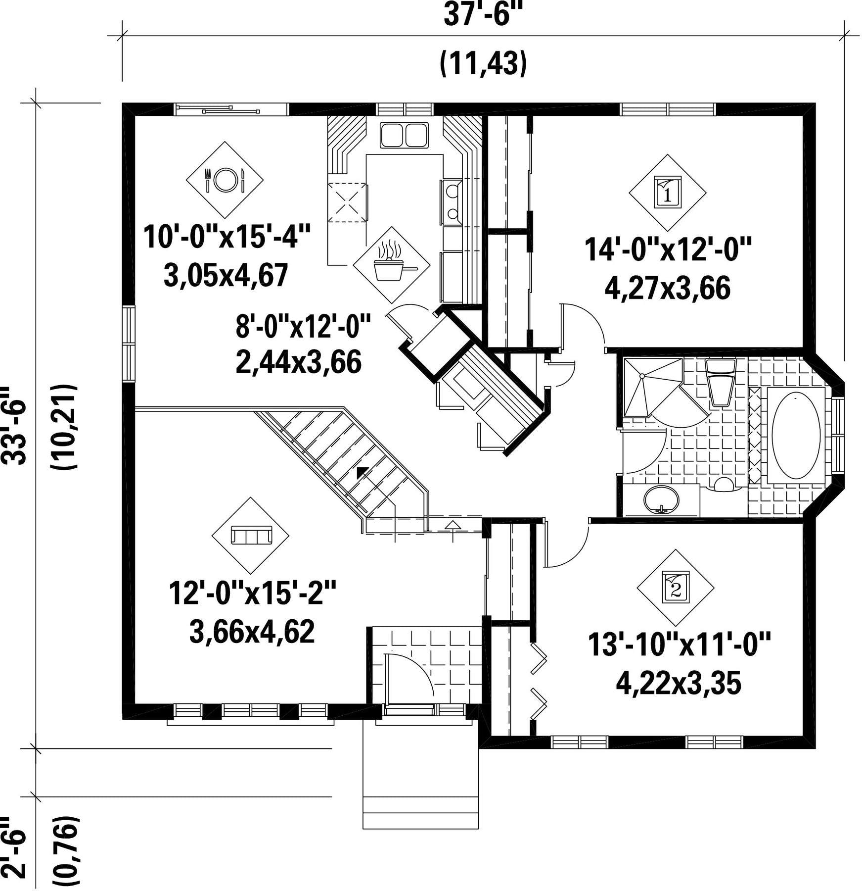
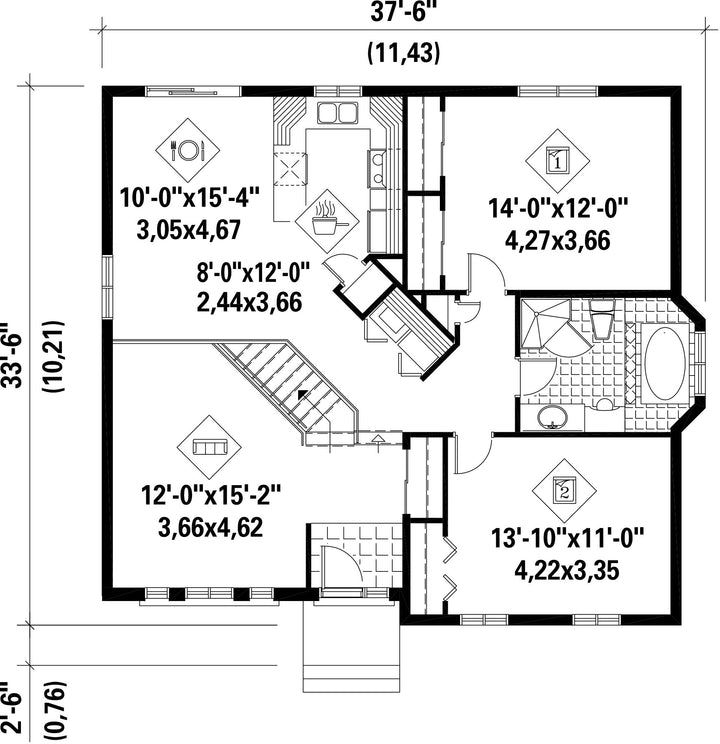
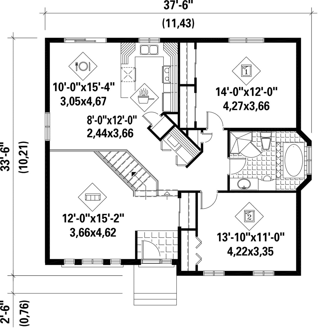
Plafond cathédrale au salon et à l'entrée

Caractéristiques

Mesures : Impérial

Style d'architecture Classique Coût de construction 
Montant approximatif équivalent à celui d'un entrepreneur général (région de la Rive-Sud de Montréal) pour une construction clé en main sans terrain ni infrastructures.
277844 $
Façade 37 pi 6 po Surface habitable totale 1189 pi²
Profondeur 33 pi 6 poNombre de salles de bain 1
Hauteur 19 pi 7 poNombre de chambres 2
Chambre des maîtres - commentaires Grande chambre avec 2 garde-robes, vue arrière
Surface rez-de-chaussée 1189 pi² Finition extérieure Aluminium + Brique
Type de cuisine Forme en U
Garage 0
Mur rez-de-chaussée 8 pi
Inclinaison toit avant/arrière 5/12
Style d'architecture Classique
Coût de construction 
Montant approximatif équivalent à celui d'un entrepreneur général (région de la Rive-Sud de Montréal) pour une construction clé en main sans terrain ni infrastructures.
277844 $
Façade 37 pi 6 po
Surface habitable totale 1189 pi²
Profondeur 33 pi 6 po
Nombre de salles de bain 1
Hauteur 19 pi 7 po
Nombre de chambres 2
Chambre des maîtres - commentaires Grande chambre avec 2 garde-robes, vue arrière
Surface rez-de-chaussée 1189 pi²
Finition extérieure Aluminium + Brique
Type de cuisine Forme en U
Garage 0
Mur rez-de-chaussée 8 pi
Inclinaison toit avant/arrière 5/12

Ces plans de maison pourraient également vous intéresser


Vu récemment