01870
01870
01870

01870


Jeux de plans - Sets of plans
Prix régulier$1,035.00
/

Ce site est protégé par hCaptcha, et la Politique de confidentialité et les Conditions de service de hCaptcha s’appliquent.

Description

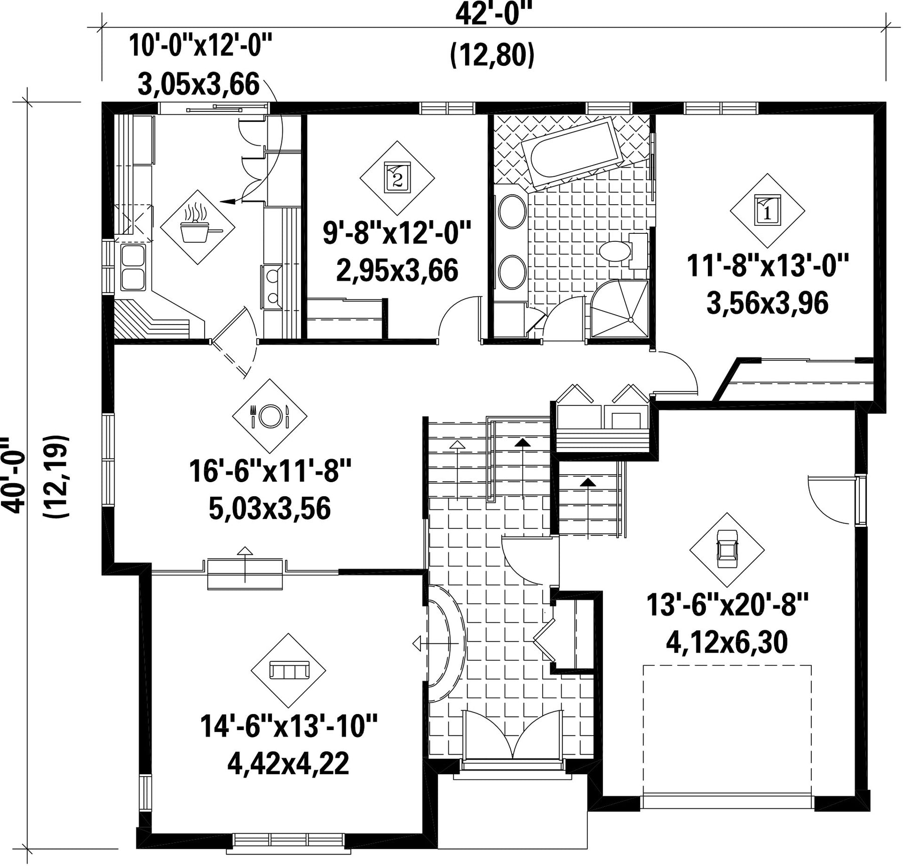
Plafond cathédrale au salon et à l'entrée

Caractéristiques

Mesures : Impérial

Style d'architecture Champêtre Coût de construction 
Montant approximatif équivalent à celui d'un entrepreneur général (région de la Rive-Sud de Montréal) pour une construction clé en main sans terrain ni infrastructures.
326516 $
Façade 42 pi Surface habitable totale 1252 pi²
Profondeur 40 piNombre de salles de bain 1
Hauteur 24 piNombre de chambres 2
Chambre des maîtres - commentaires Accès à la salle de bain
Surface rez-de-chaussée 1252 pi² Finition extérieure Aluminium + Brique
Type de cuisine Salle à manger
Surface garage 314 pi² Garage 1
Mur garage 8 piMur rez-de-chaussée 8 pi
Inclinaison toit avant/arrière 6/12
Style d'architecture Champêtre
Coût de construction 
Montant approximatif équivalent à celui d'un entrepreneur général (région de la Rive-Sud de Montréal) pour une construction clé en main sans terrain ni infrastructures.
326516 $
Façade 42 pi
Surface habitable totale 1252 pi²
Profondeur 40 pi
Nombre de salles de bain 1
Hauteur 24 pi
Nombre de chambres 2
Chambre des maîtres - commentaires Accès à la salle de bain
Surface rez-de-chaussée 1252 pi²
Finition extérieure Aluminium + Brique
Type de cuisine Salle à manger
Surface garage 314 pi²
Garage 1
Mur garage 8 pi
Mur rez-de-chaussée 8 pi
Inclinaison toit avant/arrière 6/12

Ces plans de maison pourraient également vous intéresser


Vu récemment