01861
01861
01861
01861

01861


Jeux de plans - Sets of plans
Prix régulier$1,089.00
/

Ce site est protégé par hCaptcha, et la Politique de confidentialité et les Conditions de service de hCaptcha s’appliquent.

Description

Plafond cathédrale dans le salon et cuisine

Caractéristiques

Mesures : Impérial

Style d'architecture Champêtre Coût de construction 
Montant approximatif équivalent à celui d'un entrepreneur général (région de la Rive-Sud de Montréal) pour une construction clé en main sans terrain ni infrastructures.
322217 $
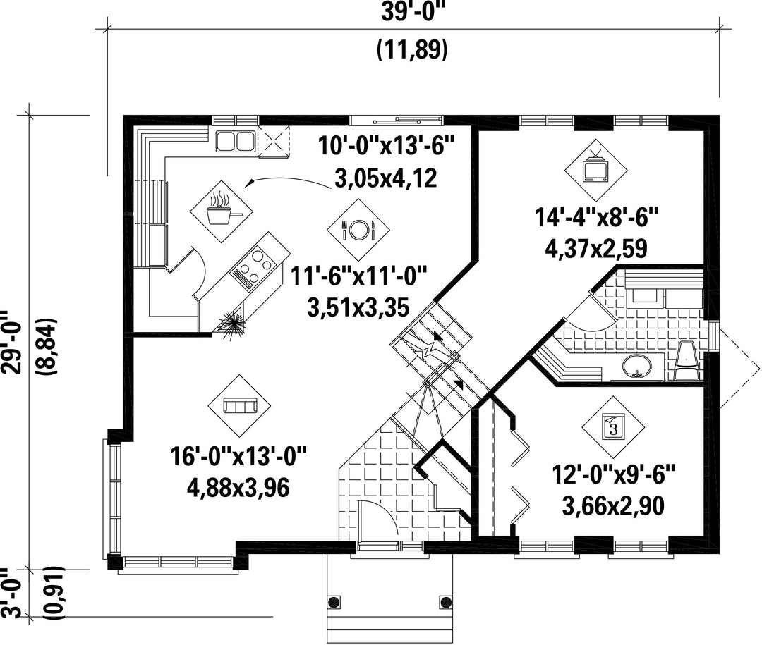
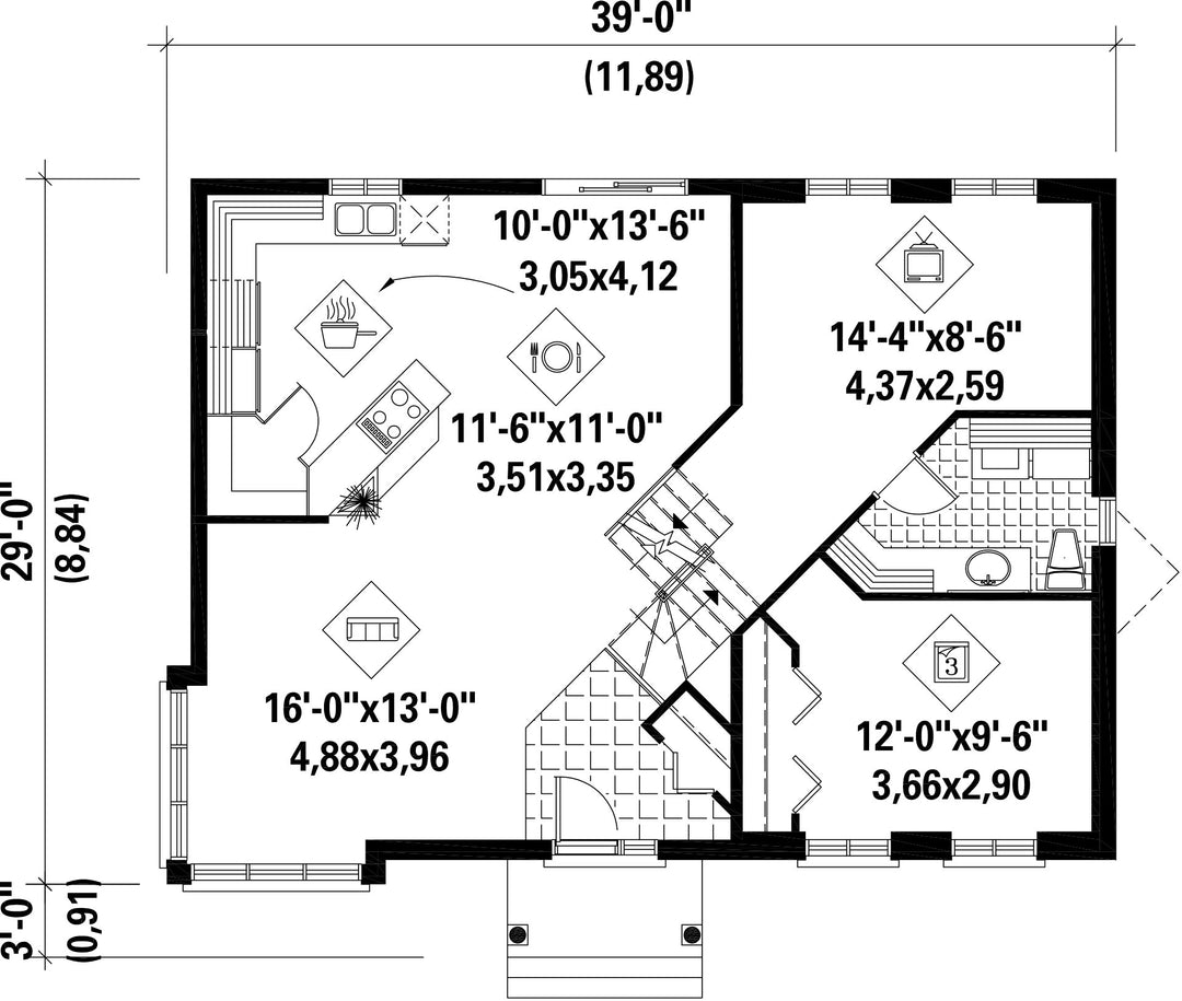
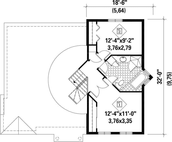
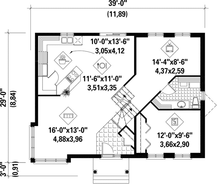
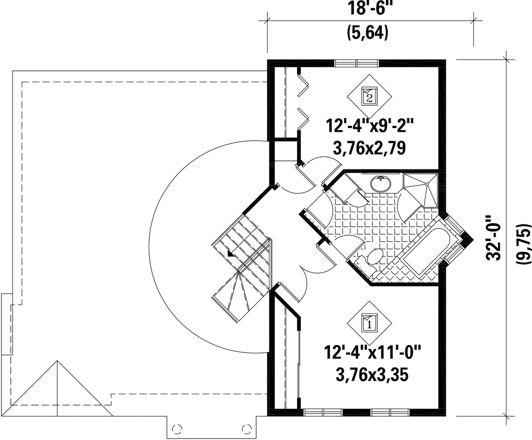
Façade 39 pi Surface habitable totale 1605 pi²
Profondeur 29 piNombre de salles de bain 1
Hauteur 22 pi 9 poNombre de chambres 3
Chambre des maîtres Portes doubles Chambre des maîtres - commentaires Chambre donnant sur façade avant
Surface rez-de-chaussée 1081 pi² Finition extérieure Aluminium + Brique
Surface étage 524 pi² Type de cuisine Comptoir repas + Forme en L + Salle à manger
Garage 0
Mur rez-de-chaussée 8 pi
Mur étage 8 piInclinaison toit avant/arrière 6/12
Style d'architecture Champêtre
Coût de construction 
Montant approximatif équivalent à celui d'un entrepreneur général (région de la Rive-Sud de Montréal) pour une construction clé en main sans terrain ni infrastructures.
322217 $
Façade 39 pi
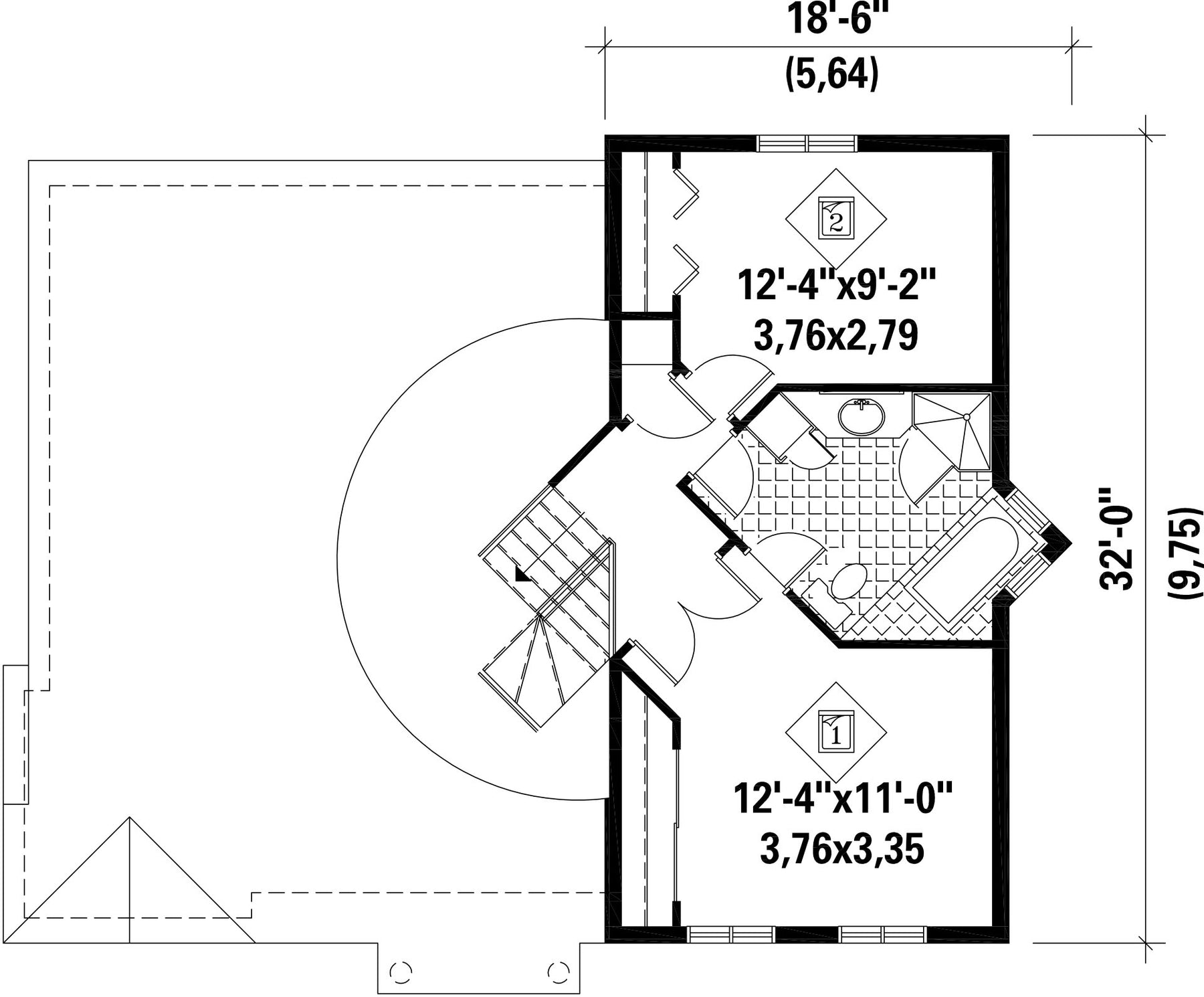
Surface habitable totale 1605 pi²
Profondeur 29 pi
Nombre de salles de bain 1
Hauteur 22 pi 9 po
Nombre de chambres 3
Chambre des maîtres Portes doubles
Chambre des maîtres - commentaires Chambre donnant sur façade avant
Surface rez-de-chaussée 1081 pi²
Finition extérieure Aluminium + Brique
Surface étage 524 pi²
Type de cuisine Comptoir repas + Forme en L + Salle à manger
Garage 0
Mur rez-de-chaussée 8 pi
Mur étage 8 pi
Inclinaison toit avant/arrière 6/12

Ces plans de maison pourraient également vous intéresser


Vu récemment