Description
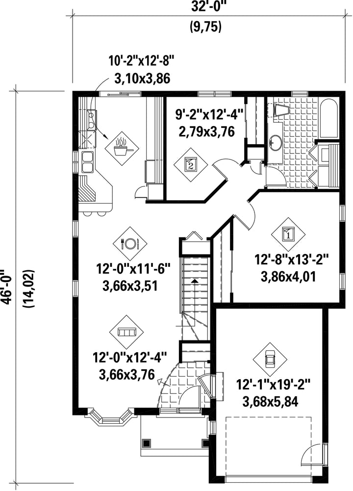
Cette ravissante maison de plain-pied présente plusieurs particularités intéressantes comme une façade de briques, un porche aux éléments décoratifs et une fenêtre en saillie courbe dans le salon. La demeure mesure 32 pieds de largeur sur 46 pieds de profondeur, et offre une surface habitable de 1 026 pieds carrés ainsi qu’un garage simple de 276 pieds carrés.
La maison comprend une cuisine de type laboratoire, un salon et une salle à manger à aire ouverte, deux chambres et une salle de bains.
La maison comprend une cuisine de type laboratoire, un salon et une salle à manger à aire ouverte, deux chambres et une salle de bains.
Caractéristiques
Mesures : Impérial| Style d'architecture | Champêtre |
Coût de construction
Montant approximatif équivalent à celui d'un entrepreneur général (région de la Rive-Sud de Montréal) pour une construction clé en main sans terrain ni infrastructures.
|
266217 $ |
|---|---|---|---|
| Façade | 32 pi | Surface habitable totale | 1026 pi² |
| Profondeur | 46 pi | Nombre de salles de bain | 1 |
| Hauteur | 20 pi 9 po | Nombre de chambres | 2 |
| Chambre des maîtres - commentaires | Grande chambre avec grand garde-robe | ||
| Surface rez-de-chaussée | 1026 pi² | Finition extérieure | Aluminium + Brique |
| Type de cuisine | Comptoir repas + Laboratoire + Salle à manger | ||
| Surface garage | 276 pi² | Garage | 1 |
| Mur garage | 8 pi | Mur rez-de-chaussée | 8 pi |
| Inclinaison toit avant/arrière | 6/12 | ||
| Style d'architecture | Champêtre |
|---|---|
|
Coût de construction
Montant approximatif équivalent à celui d'un entrepreneur général (région de la Rive-Sud de Montréal) pour une construction clé en main sans terrain ni infrastructures.
|
266217 $ |
| Façade | 32 pi |
| Surface habitable totale | 1026 pi² |
| Profondeur | 46 pi |
| Nombre de salles de bain | 1 |
| Hauteur | 20 pi 9 po |
| Nombre de chambres | 2 |
| Chambre des maîtres - commentaires | Grande chambre avec grand garde-robe |
| Surface rez-de-chaussée | 1026 pi² |
| Finition extérieure | Aluminium + Brique |
| Type de cuisine | Comptoir repas + Laboratoire + Salle à manger |
| Surface garage | 276 pi² |
| Garage | 1 |
| Mur garage | 8 pi |
| Mur rez-de-chaussée | 8 pi |
| Inclinaison toit avant/arrière | 6/12 |