01800
01800
01800

01800


Jeux de plans - Sets of plans
Prix régulier$1,240.00
/

Ce site est protégé par hCaptcha, et la Politique de confidentialité et les Conditions de service de hCaptcha s’appliquent.

Description

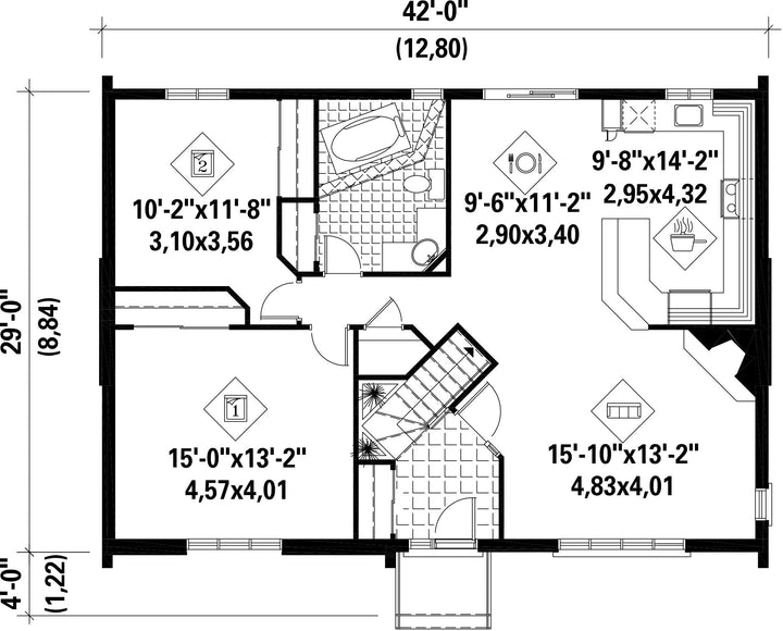
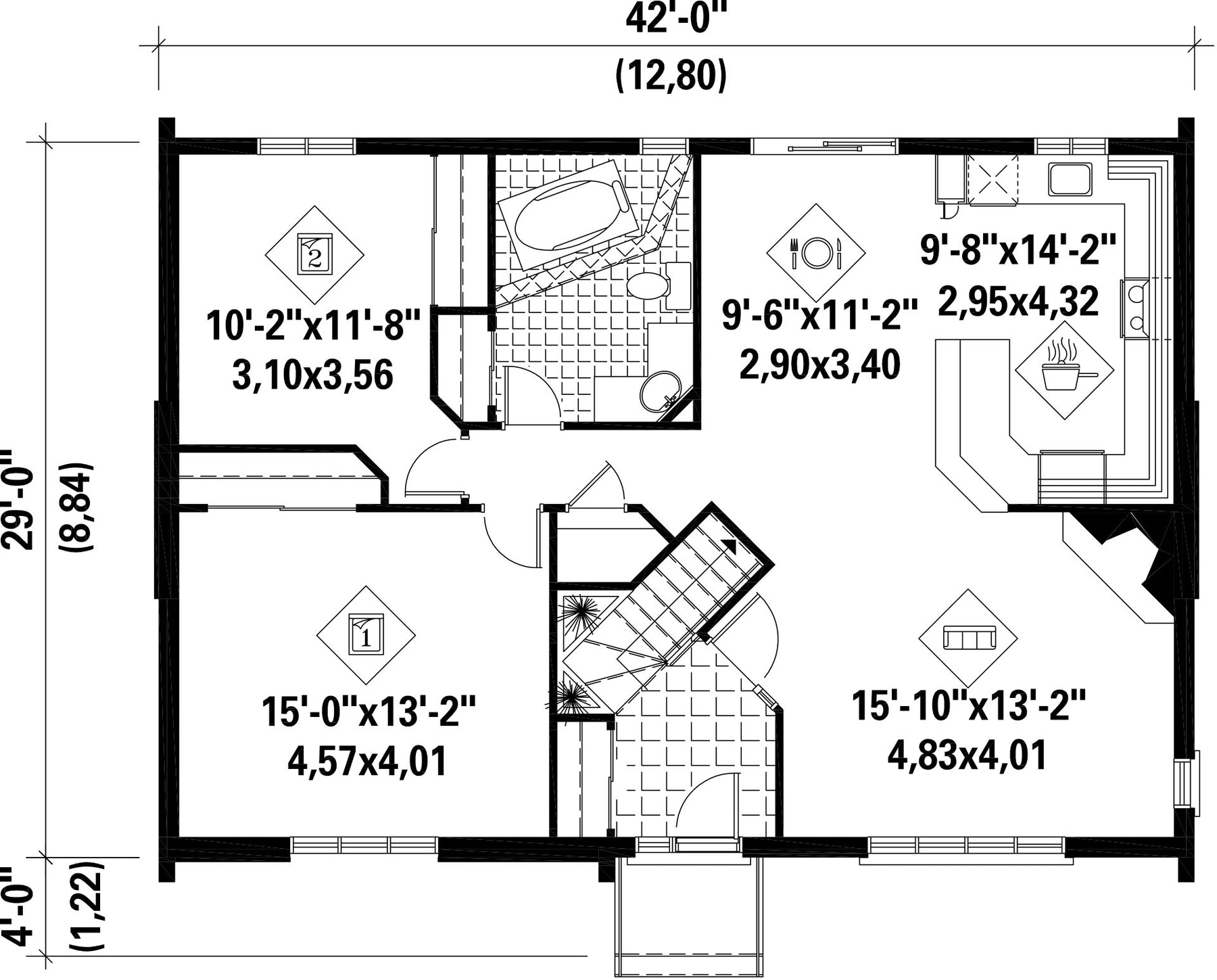
Vestibule fermé

Caractéristiques

Mesures : Impérial

Style d'architecture Cape Cod Coût de construction 
Montant approximatif équivalent à celui d'un entrepreneur général (région de la Rive-Sud de Montréal) pour une construction clé en main sans terrain ni infrastructures.
305481 $
Façade 42 pi Surface habitable totale 1218 pi²
Profondeur 29 piNombre de salles de bain 1
Hauteur 20 pi 9 poNombre de chambres 2
Chambre des maîtres - commentaires Garde-robe
Surface rez-de-chaussée 1218 pi² Finition extérieure Aluminium + Bois + Brique
Type de cuisine Comptoir repas + Forme en U + Salle à manger
Garage 0
Mur rez-de-chaussée 8 pi
Inclinaison toit avant/arrière 8/12
Style d'architecture Cape Cod
Coût de construction 
Montant approximatif équivalent à celui d'un entrepreneur général (région de la Rive-Sud de Montréal) pour une construction clé en main sans terrain ni infrastructures.
305481 $
Façade 42 pi
Surface habitable totale 1218 pi²
Profondeur 29 pi
Nombre de salles de bain 1
Hauteur 20 pi 9 po
Nombre de chambres 2
Chambre des maîtres - commentaires Garde-robe
Surface rez-de-chaussée 1218 pi²
Finition extérieure Aluminium + Bois + Brique
Type de cuisine Comptoir repas + Forme en U + Salle à manger
Garage 0
Mur rez-de-chaussée 8 pi
Inclinaison toit avant/arrière 8/12

Ces plans de maison pourraient également vous intéresser


Vu récemment