01611
01611
01611
01611

01611


Jeux de plans - Sets of plans
Prix régulier$945.00
/

Ce site est protégé par hCaptcha, et la Politique de confidentialité et les Conditions de service de hCaptcha s’appliquent.

Description

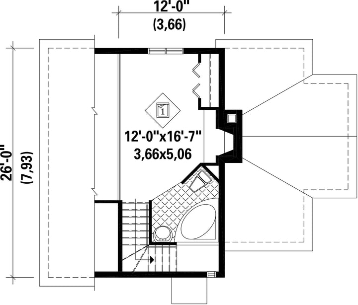
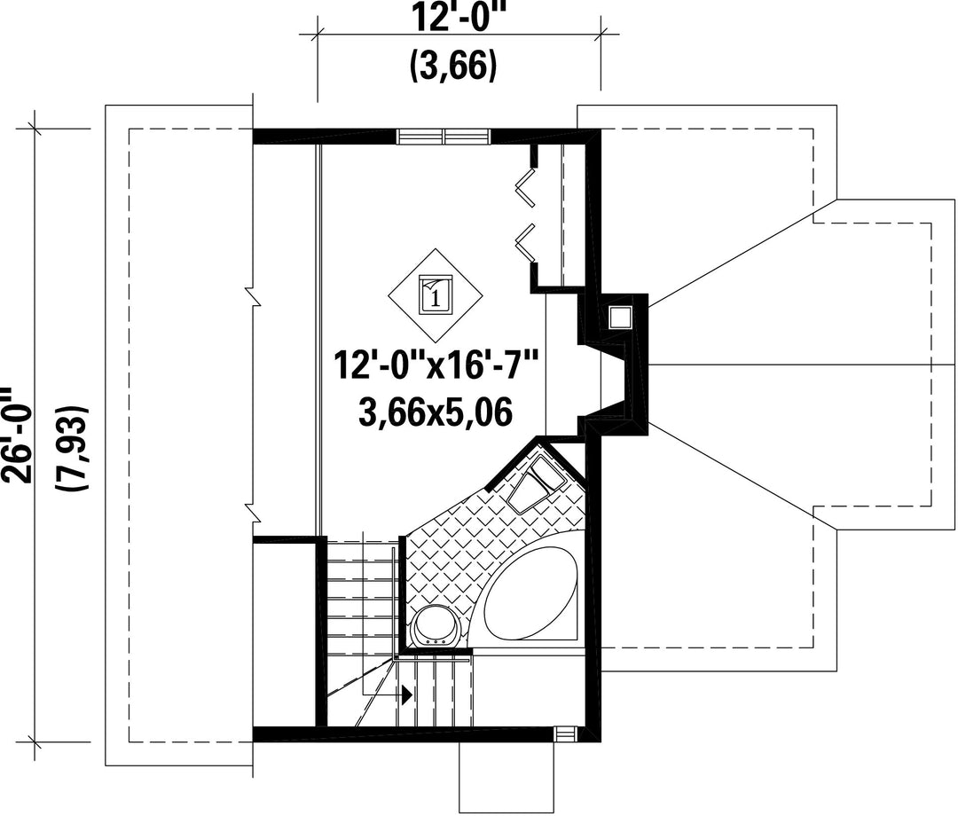
Chambre à l'étage de type mezzanine

Caractéristiques

Mesures : Impérial

Style d'architecture Champêtre Coût de construction 
Montant approximatif équivalent à celui d'un entrepreneur général (région de la Rive-Sud de Montréal) pour une construction clé en main sans terrain ni infrastructures.
210844 $
Façade 34 pi Surface habitable totale 1092 pi²
Profondeur 26 piNombre de salles de bain 2
Hauteur 32 pi 2 poNombre de chambres 1
Chambre des maîtres Bain podium + Foyer + Lavabo simple + Toilettes Chambre des maîtres - commentaires Mezzanine
Surface rez-de-chaussée 778 pi² Finition extérieure Bois + Pierre
Surface étage 314 pi² Type de cuisine Forme en L + Salle à manger
Garage 0
Mur rez-de-chaussée 8 pi
Mur étage 10 piInclinaison toit avant/arrière 21/12
Inclinaison toit gauche/droite 12/12
Style d'architecture Champêtre
Coût de construction 
Montant approximatif équivalent à celui d'un entrepreneur général (région de la Rive-Sud de Montréal) pour une construction clé en main sans terrain ni infrastructures.
210844 $
Façade 34 pi
Surface habitable totale 1092 pi²
Profondeur 26 pi
Nombre de salles de bain 2
Hauteur 32 pi 2 po
Nombre de chambres 1
Chambre des maîtres Bain podium + Foyer + Lavabo simple + Toilettes
Chambre des maîtres - commentaires Mezzanine
Surface rez-de-chaussée 778 pi²
Finition extérieure Bois + Pierre
Surface étage 314 pi²
Type de cuisine Forme en L + Salle à manger
Garage 0
Mur rez-de-chaussée 8 pi
Mur étage 10 pi
Inclinaison toit avant/arrière 21/12
Inclinaison toit gauche/droite 12/12

Ces plans de maison pourraient également vous intéresser


Vu récemment