01549
01549
01549
01549

01549


Jeux de plans - Sets of plans
Prix régulier$1,467.00
/

Ce site est protégé par hCaptcha, et la Politique de confidentialité et les Conditions de service de hCaptcha s’appliquent.

Description

"Salle familiale avec foyer Escalier en rond"

Caractéristiques

Mesures : Impérial

Style d'architecture Européen Coût de construction 
Montant approximatif équivalent à celui d'un entrepreneur général (région de la Rive-Sud de Montréal) pour une construction clé en main sans terrain ni infrastructures.
594992 $
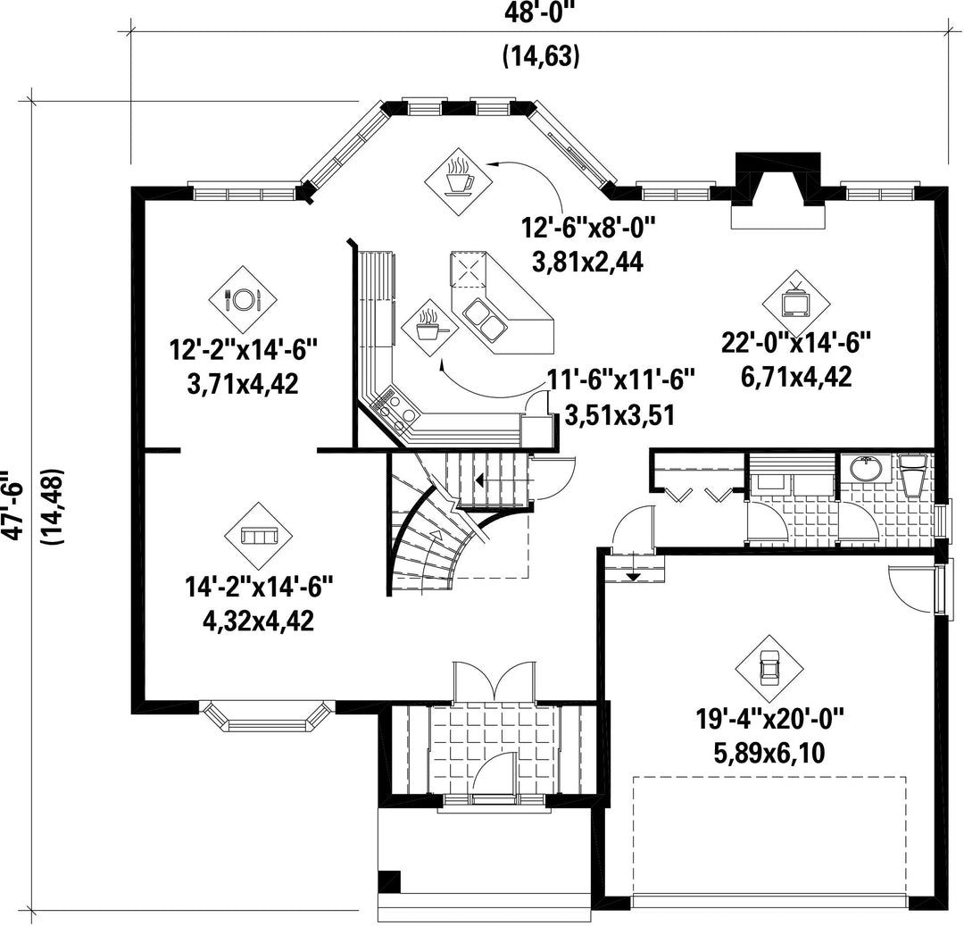
Façade 48 pi Surface habitable totale 2886 pi²
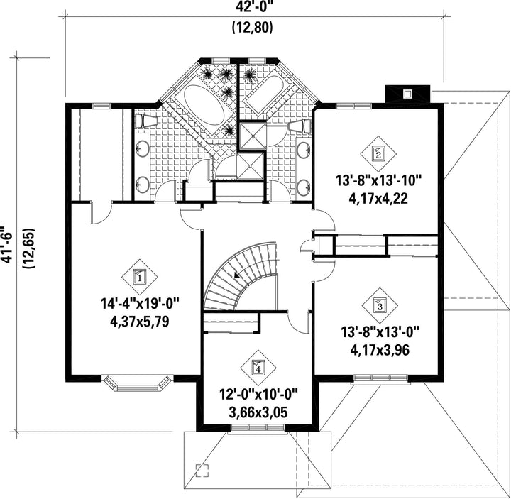
Profondeur 47 pi 6 poNombre de salles de bain 2
Hauteur 29 piNombre de chambres 4
Chambre des maîtres Bain podium + Douche + Lavabo double + Penderie + Toilettes Chambre des maîtres - commentaires Lingerie, 2 marches dans la salle de bain
Surface rez-de-chaussée 1441 pi² Finition extérieure Aluminium + Bois + Brique
Surface étage 1445 pi² Type de cuisine Coin repas + Comptoir repas + Forme en L + Salle à manger + Îlot
Surface garage 426 pi² Garage 2
Mur garage 8 piMur rez-de-chaussée 8 pi
Mur étage 8 piInclinaison toit avant/arrière 5/12
Inclinaison toit gauche/droite 5/12
Style d'architecture Européen
Coût de construction 
Montant approximatif équivalent à celui d'un entrepreneur général (région de la Rive-Sud de Montréal) pour une construction clé en main sans terrain ni infrastructures.
594992 $
Façade 48 pi
Surface habitable totale 2886 pi²
Profondeur 47 pi 6 po
Nombre de salles de bain 2
Hauteur 29 pi
Nombre de chambres 4
Chambre des maîtres Bain podium + Douche + Lavabo double + Penderie + Toilettes
Chambre des maîtres - commentaires Lingerie, 2 marches dans la salle de bain
Surface rez-de-chaussée 1441 pi²
Finition extérieure Aluminium + Bois + Brique
Surface étage 1445 pi²
Type de cuisine Coin repas + Comptoir repas + Forme en L + Salle à manger + Îlot
Surface garage 426 pi²
Garage 2
Mur garage 8 pi
Mur rez-de-chaussée 8 pi
Mur étage 8 pi
Inclinaison toit avant/arrière 5/12
Inclinaison toit gauche/droite 5/12

Ces plans de maison pourraient également vous intéresser


Vu récemment