01271
01271
01271
01271

01271


Jeux de plans - Sets of plans
Prix régulier$1,640.00
/

Ce site est protégé par hCaptcha, et la Politique de confidentialité et les Conditions de service de hCaptcha s’appliquent.

Description

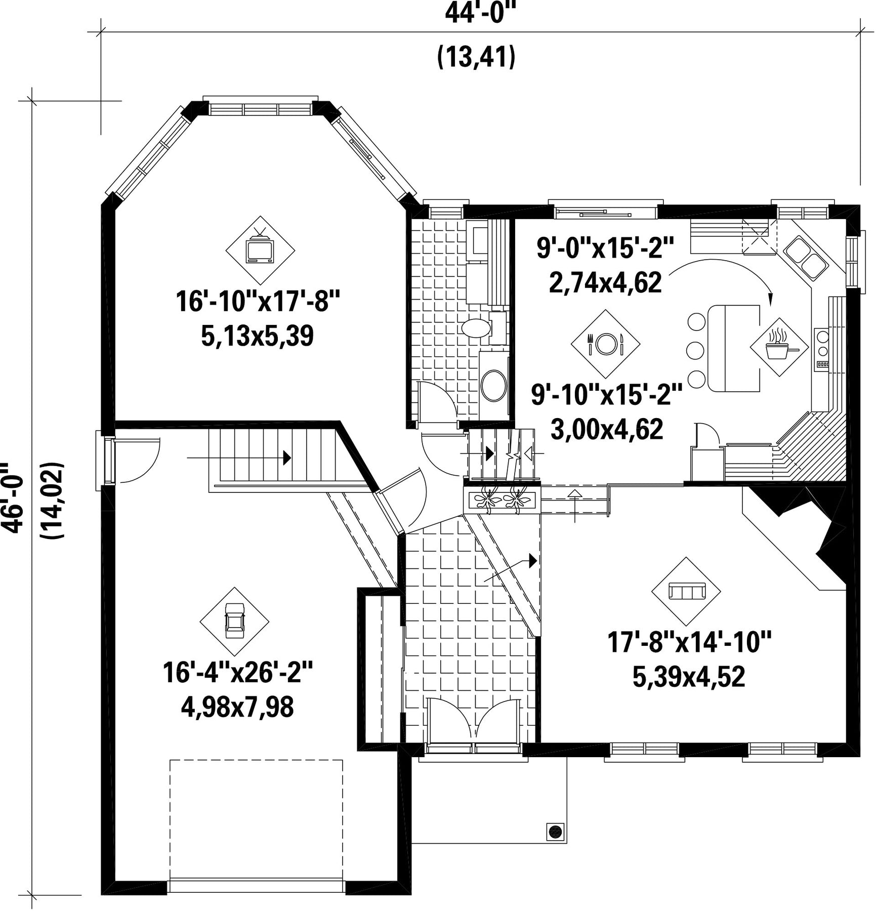
Salon et salle à manger à aire ouverte

Caractéristiques

Mesures : Impérial

Style d'architecture Moderne Coût de construction 
Montant approximatif équivalent à celui d'un entrepreneur général (région de la Rive-Sud de Montréal) pour une construction clé en main sans terrain ni infrastructures.
461157 $
Façade 44 pi Surface habitable totale 1963 pi²
Profondeur 46 piNombre de salles de bain 1
Hauteur 25 piNombre de chambres 3
Chambre des maîtres - commentaires ACCÈS À LA SALLE DE BAIN
Surface rez-de-chaussée 1195 pi² Finition extérieure Aluminium + Brique
Surface étage 768 pi² Type de cuisine Comptoir repas + Forme en U + Salle à manger + Îlot
Surface garage 437 pi² Garage 1
Mur garage 8 piMur rez-de-chaussée 9 pi
Mur étage 8 piInclinaison toit avant/arrière 5/12
Inclinaison toit gauche/droite 5/12
Style d'architecture Moderne
Coût de construction 
Montant approximatif équivalent à celui d'un entrepreneur général (région de la Rive-Sud de Montréal) pour une construction clé en main sans terrain ni infrastructures.
461157 $
Façade 44 pi
Surface habitable totale 1963 pi²
Profondeur 46 pi
Nombre de salles de bain 1
Hauteur 25 pi
Nombre de chambres 3
Chambre des maîtres - commentaires ACCÈS À LA SALLE DE BAIN
Surface rez-de-chaussée 1195 pi²
Finition extérieure Aluminium + Brique
Surface étage 768 pi²
Type de cuisine Comptoir repas + Forme en U + Salle à manger + Îlot
Surface garage 437 pi²
Garage 1
Mur garage 8 pi
Mur rez-de-chaussée 9 pi
Mur étage 8 pi
Inclinaison toit avant/arrière 5/12
Inclinaison toit gauche/droite 5/12

Ces plans de maison pourraient également vous intéresser


Vu récemment