01259
01259
01259
01259

01259


Jeux de plans - Sets of plans
Prix régulier$1,134.00
/

Ce site est protégé par hCaptcha, et la Politique de confidentialité et les Conditions de service de hCaptcha s’appliquent.

Description

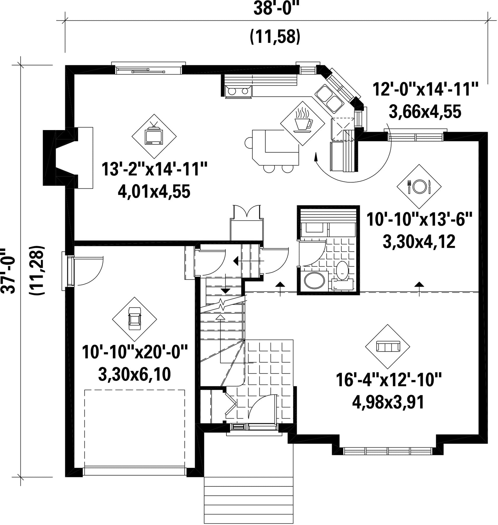
Foyer dans la salle familiale

Caractéristiques

Mesures : Impérial

Style d'architecture Moderne Coût de construction 
Montant approximatif équivalent à celui d'un entrepreneur général (région de la Rive-Sud de Montréal) pour une construction clé en main sans terrain ni infrastructures.
394167 $
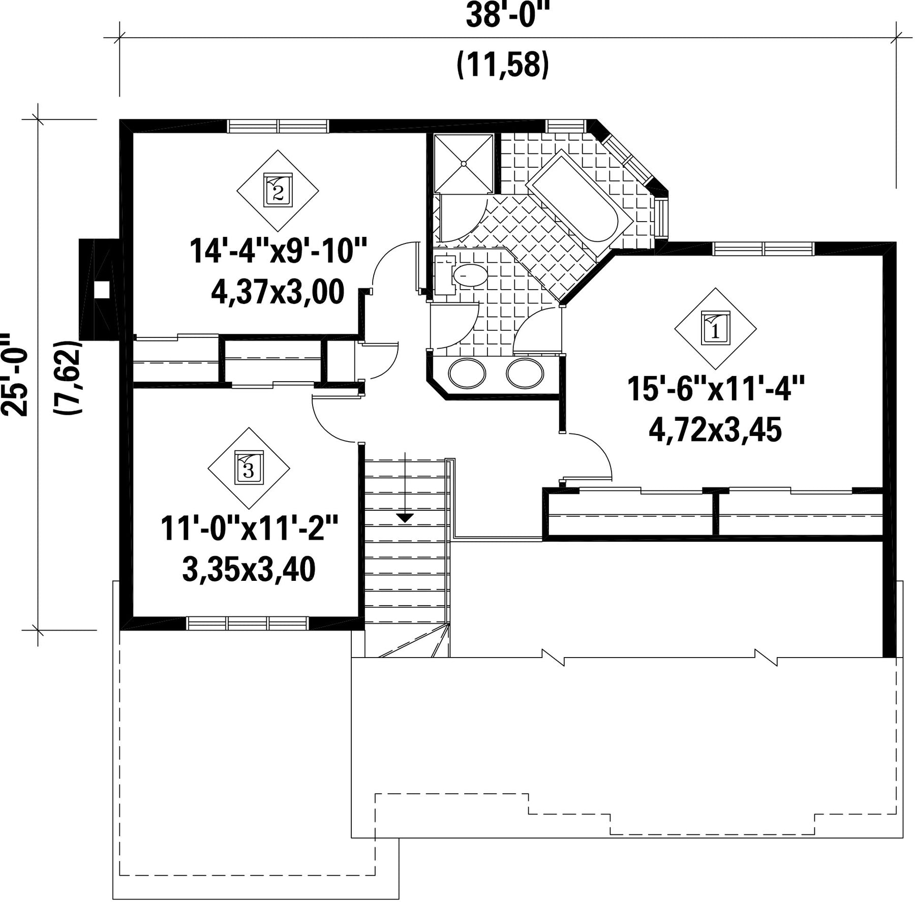
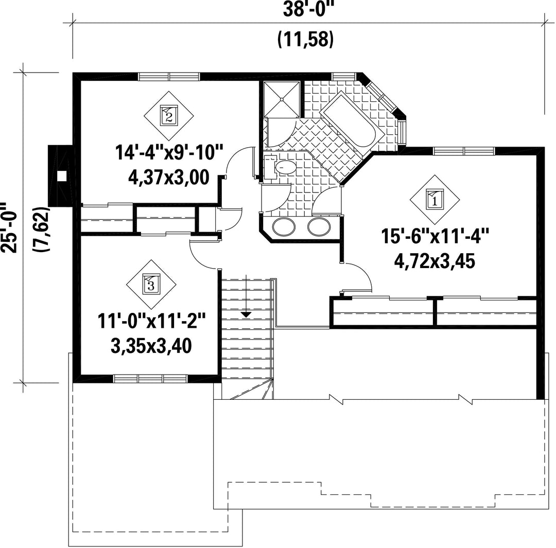
Façade 38 pi Surface habitable totale 1779 pi²
Profondeur 37 piNombre de salles de bain 1
Hauteur 26 pi 9 poNombre de chambres 3
Chambre des maîtres - commentaires ACCÈS À LA SALLE DE BAIN
Surface rez-de-chaussée 1014 pi² Finition extérieure Aluminium + Brique
Surface étage 765 pi² Type de cuisine Salle à manger + Îlot
Surface garage 246 pi² Garage 1
Mur garage 8 piMur rez-de-chaussée 8 pi
Mur étage 8 piInclinaison toit avant/arrière 5/12-7/12
Style d'architecture Moderne
Coût de construction 
Montant approximatif équivalent à celui d'un entrepreneur général (région de la Rive-Sud de Montréal) pour une construction clé en main sans terrain ni infrastructures.
394167 $
Façade 38 pi
Surface habitable totale 1779 pi²
Profondeur 37 pi
Nombre de salles de bain 1
Hauteur 26 pi 9 po
Nombre de chambres 3
Chambre des maîtres - commentaires ACCÈS À LA SALLE DE BAIN
Surface rez-de-chaussée 1014 pi²
Finition extérieure Aluminium + Brique
Surface étage 765 pi²
Type de cuisine Salle à manger + Îlot
Surface garage 246 pi²
Garage 1
Mur garage 8 pi
Mur rez-de-chaussée 8 pi
Mur étage 8 pi
Inclinaison toit avant/arrière 5/12-7/12

Ces plans de maison pourraient également vous intéresser


Vu récemment