01163
01163
01163

01163


Jeux de plans - Sets of plans
Prix régulier$1,035.00
/

Ce site est protégé par hCaptcha, et la Politique de confidentialité et les Conditions de service de hCaptcha s’appliquent.

Description

Foyer au sous-sol

Caractéristiques

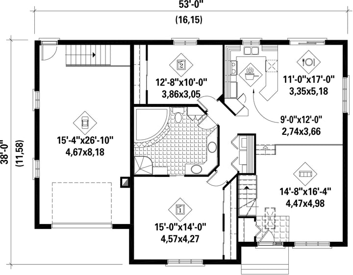
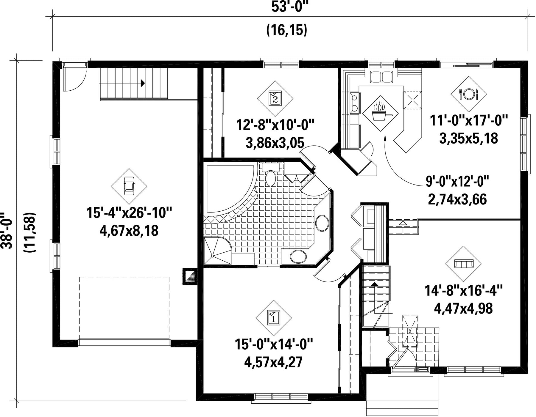
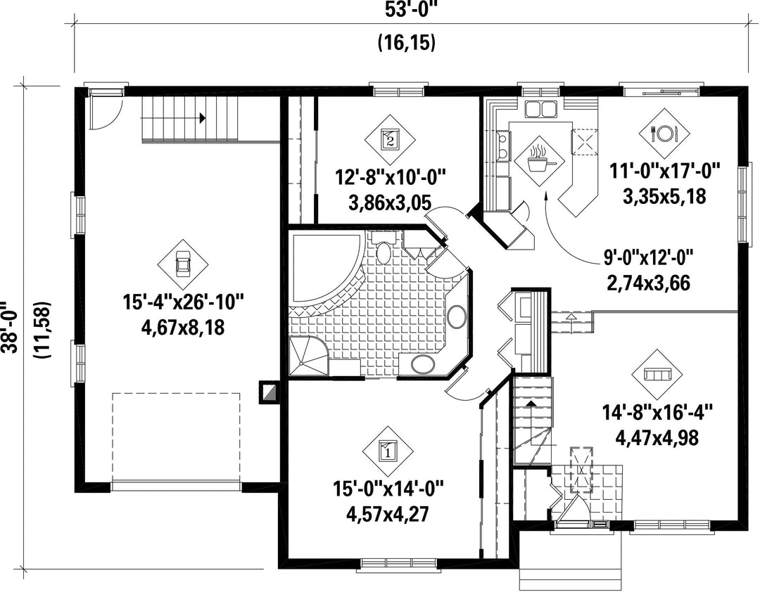
Mesures : Impérial

Style d'architecture Classique Coût de construction 
Montant approximatif équivalent à celui d'un entrepreneur général (région de la Rive-Sud de Montréal) pour une construction clé en main sans terrain ni infrastructures.
374844 $
Façade 53 pi Surface habitable totale 1347 pi²
Profondeur 38 piNombre de salles de bain 1
Hauteur 23 piNombre de chambres 2
Chambre des maîtres - commentaires ACCÈS À LA SALLE DE BAIN
Surface rez-de-chaussée 1347 pi² Finition extérieure Aluminium + Brique
Type de cuisine Forme en U + Salle à manger
Surface garage 517 pi² Garage 1
Mur garage 8 piMur rez-de-chaussée 8 pi
Inclinaison toit avant/arrière 6/12
Style d'architecture Classique
Coût de construction 
Montant approximatif équivalent à celui d'un entrepreneur général (région de la Rive-Sud de Montréal) pour une construction clé en main sans terrain ni infrastructures.
374844 $
Façade 53 pi
Surface habitable totale 1347 pi²
Profondeur 38 pi
Nombre de salles de bain 1
Hauteur 23 pi
Nombre de chambres 2
Chambre des maîtres - commentaires ACCÈS À LA SALLE DE BAIN
Surface rez-de-chaussée 1347 pi²
Finition extérieure Aluminium + Brique
Type de cuisine Forme en U + Salle à manger
Surface garage 517 pi²
Garage 1
Mur garage 8 pi
Mur rez-de-chaussée 8 pi
Inclinaison toit avant/arrière 6/12

Ces plans de maison pourraient également vous intéresser


Vu récemment