01118
01118
01118
01118

01118


Jeux de plans - Sets of plans
Prix régulier$1,035.00
/

Ce site est protégé par hCaptcha, et la Politique de confidentialité et les Conditions de service de hCaptcha s’appliquent.

Description

Salon bien éclairé

Caractéristiques

Mesures : Impérial

Style d'architecture Moderne Coût de construction 
Montant approximatif équivalent à celui d'un entrepreneur général (région de la Rive-Sud de Montréal) pour une construction clé en main sans terrain ni infrastructures.
285998 $
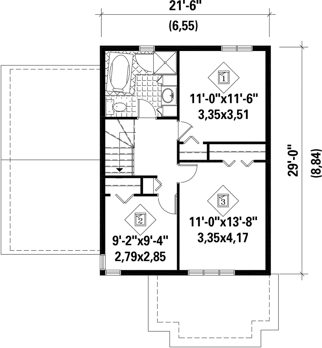
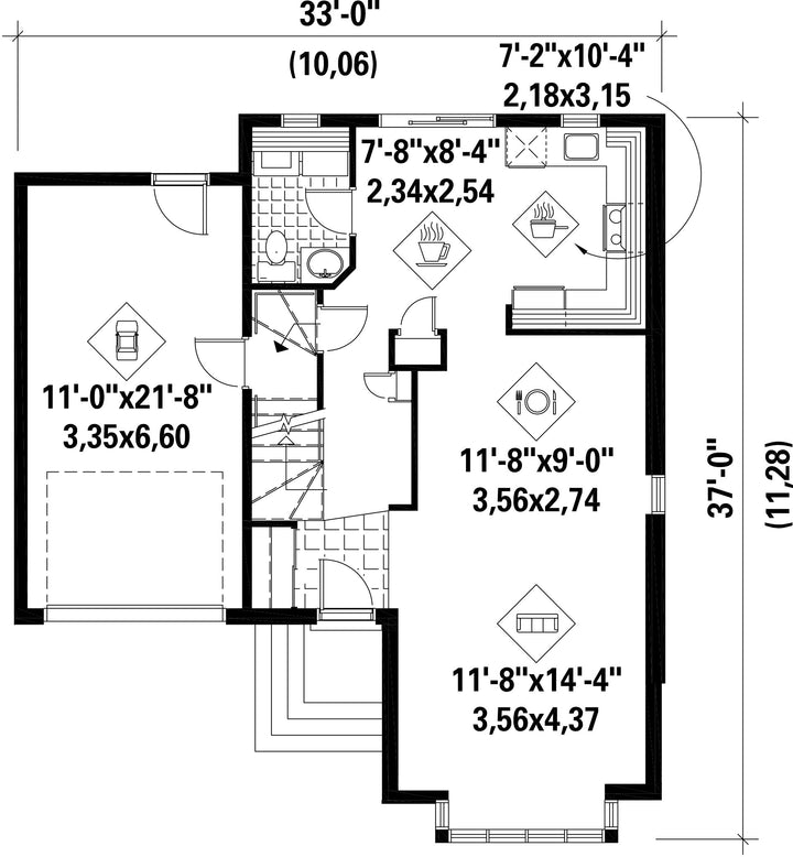
Façade 33 pi Surface habitable totale 1330 pi²
Profondeur 37 piNombre de salles de bain 2
Hauteur 28 pi 3 poNombre de chambres 3
Chambre des maîtres - commentaires GRANDE CH.#1
Surface rez-de-chaussée 706 pi² Finition extérieure Agrégats + Brique
Surface étage 624 pi² Type de cuisine Coin repas + Forme en U
Surface garage 265 pi² Garage 1
Mur garage 8 piMur rez-de-chaussée 8 pi
Mur étage 8 piInclinaison toit avant/arrière 6/12
Inclinaison toit gauche/droite 6/12
Style d'architecture Moderne
Coût de construction 
Montant approximatif équivalent à celui d'un entrepreneur général (région de la Rive-Sud de Montréal) pour une construction clé en main sans terrain ni infrastructures.
285998 $
Façade 33 pi
Surface habitable totale 1330 pi²
Profondeur 37 pi
Nombre de salles de bain 2
Hauteur 28 pi 3 po
Nombre de chambres 3
Chambre des maîtres - commentaires GRANDE CH.#1
Surface rez-de-chaussée 706 pi²
Finition extérieure Agrégats + Brique
Surface étage 624 pi²
Type de cuisine Coin repas + Forme en U
Surface garage 265 pi²
Garage 1
Mur garage 8 pi
Mur rez-de-chaussée 8 pi
Mur étage 8 pi
Inclinaison toit avant/arrière 6/12
Inclinaison toit gauche/droite 6/12

Ces plans de maison pourraient également vous intéresser


Vu récemment