01006
01006
01006
01006
01006
01006

01006


Jeux de plans - Sets of plans
Prix régulier$1,035.00
/

Ce site est protégé par hCaptcha, et la Politique de confidentialité et les Conditions de service de hCaptcha s’appliquent.

Description

Vestibule fermé

Caractéristiques

Mesures : Impérial

Style d'architecture Champêtre Coût de construction 
Montant approximatif équivalent à celui d'un entrepreneur général (région de la Rive-Sud de Montréal) pour une construction clé en main sans terrain ni infrastructures.
299651 $
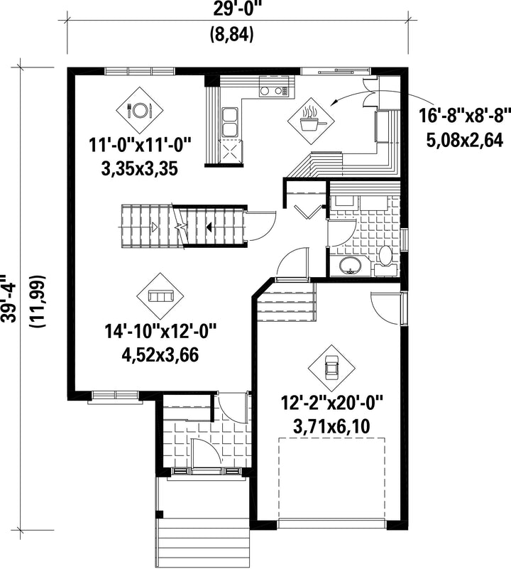
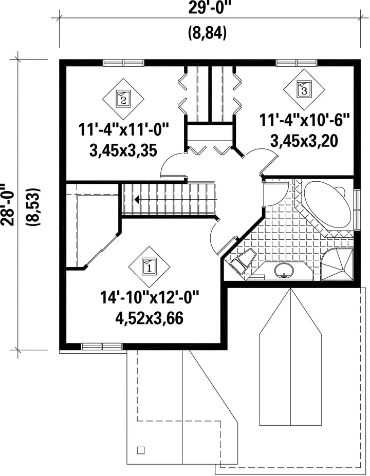
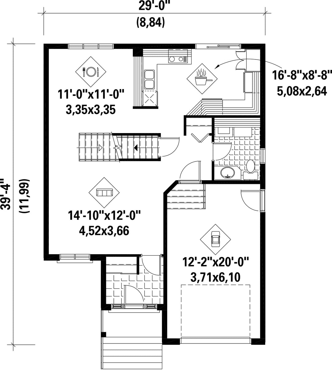
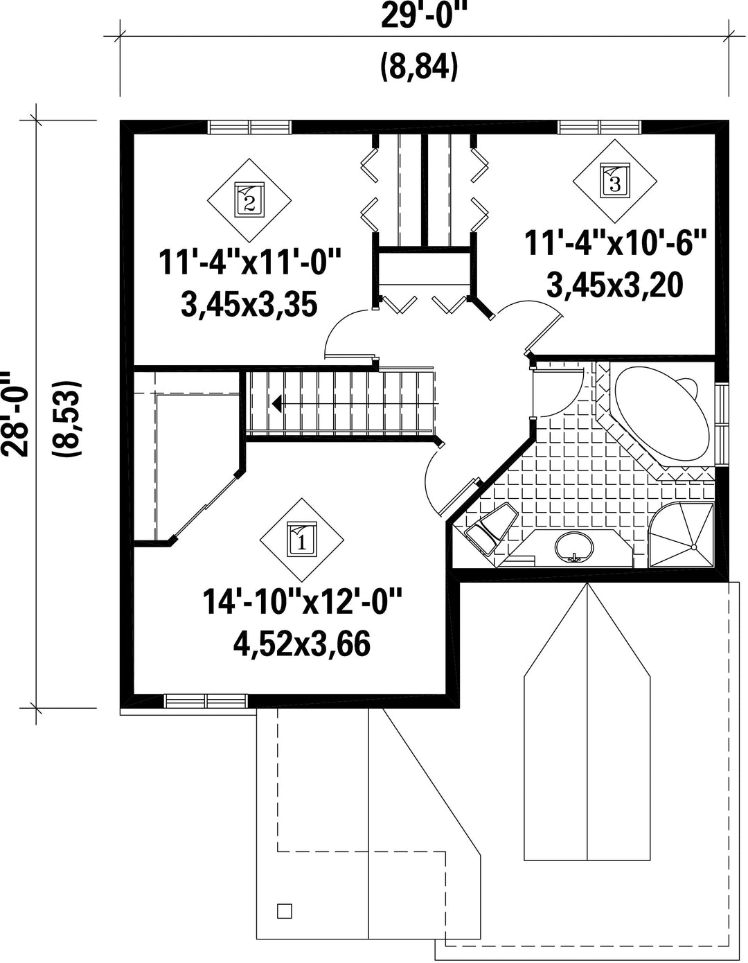
Façade 29 pi Surface habitable totale 1486 pi²
Profondeur 39 pi 4 poNombre de salles de bain 1
Hauteur 30 pi 9 poNombre de chambres 3
Chambre des maîtres - commentaires GRAND WALK IN
Surface rez-de-chaussée 751 pi² Finition extérieure Agrégats + Brique + Écailles de poisson
Surface étage 735 pi² Type de cuisine Forme en L + Salle à manger
Surface garage 272 pi² Garage 1
Mur garage 8 piMur rez-de-chaussée 8 pi
Mur étage 8 piInclinaison toit avant/arrière 8/12
Inclinaison toit gauche/droite 12/12
Style d'architecture Champêtre
Coût de construction 
Montant approximatif équivalent à celui d'un entrepreneur général (région de la Rive-Sud de Montréal) pour une construction clé en main sans terrain ni infrastructures.
299651 $
Façade 29 pi
Surface habitable totale 1486 pi²
Profondeur 39 pi 4 po
Nombre de salles de bain 1
Hauteur 30 pi 9 po
Nombre de chambres 3
Chambre des maîtres - commentaires GRAND WALK IN
Surface rez-de-chaussée 751 pi²
Finition extérieure Agrégats + Brique + Écailles de poisson
Surface étage 735 pi²
Type de cuisine Forme en L + Salle à manger
Surface garage 272 pi²
Garage 1
Mur garage 8 pi
Mur rez-de-chaussée 8 pi
Mur étage 8 pi
Inclinaison toit avant/arrière 8/12
Inclinaison toit gauche/droite 12/12

Ces plans de maison pourraient également vous intéresser


Vu récemment