00863
00863
00863

00863


Ce plan est offert en plusieurs variations. Vous pouvez consulter les variations en choissant un numéro de plan dans le menu ci-dessous. Les plans techniques dans les images ainsi que le tableau des caractéristiques et dimensions se mettront automatiquement à jour.


Jeux de plans - Sets of plans
Prix régulier$945.00
/

Ce site est protégé par hCaptcha, et la Politique de confidentialité et les Conditions de service de hCaptcha s’appliquent.

Description

Escalier ouvert avec rampe

Caractéristiques

Mesures : Impérial

Style d'architecture Champêtre Coût de construction 
Montant approximatif équivalent à celui d'un entrepreneur général (région de la Rive-Sud de Montréal) pour une construction clé en main sans terrain ni infrastructures.
296096 $
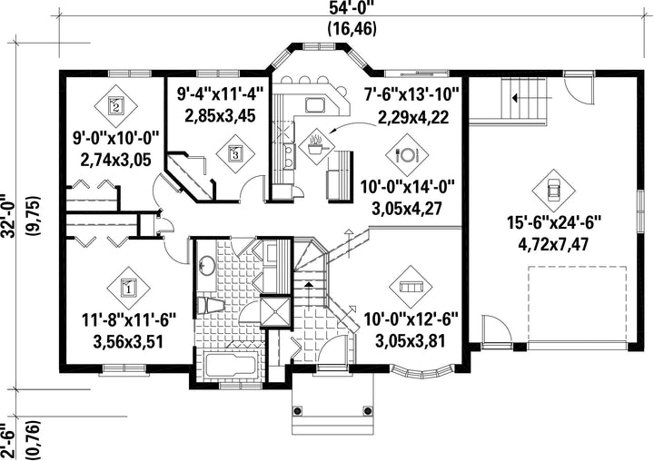
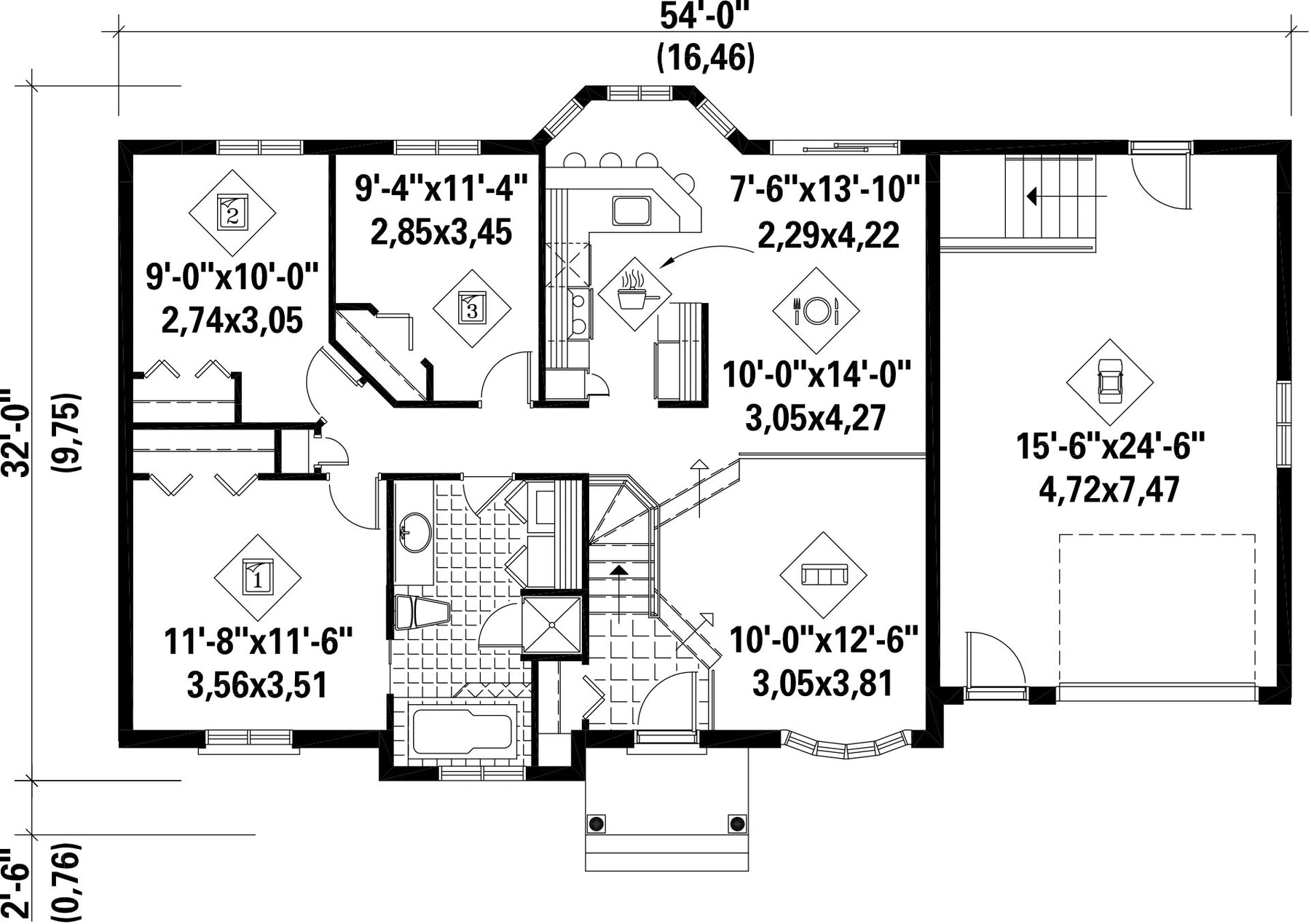
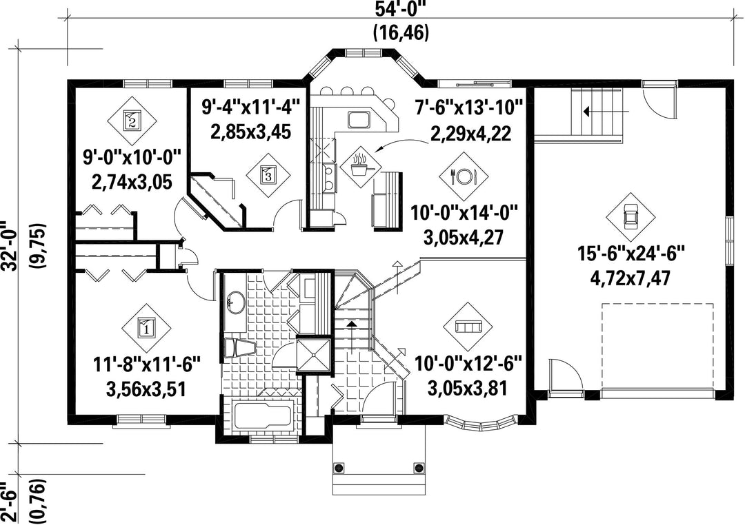
Façade 54 pi Surface habitable totale 1093 pi²
Profondeur 32 piNombre de salles de bain 1
Hauteur 21 piNombre de chambres 3
Chambre des maîtres - commentaires ACCÈS DIRECTE À LA SALLE DE BAIN PAR UNE PORTE ESCAMOTABLE
Surface rez-de-chaussée 1093 pi² Finition extérieure Aluminium + Brique
Type de cuisine Comptoir repas + Forme en U + Salle à manger
Surface garage 420 pi² Garage 1
Mur garage 8 piMur rez-de-chaussée 8 pi
Inclinaison toit avant/arrière 6/12
Style d'architecture Champêtre
Coût de construction 
Montant approximatif équivalent à celui d'un entrepreneur général (région de la Rive-Sud de Montréal) pour une construction clé en main sans terrain ni infrastructures.
296096 $
Façade 54 pi
Surface habitable totale 1093 pi²
Profondeur 32 pi
Nombre de salles de bain 1
Hauteur 21 pi
Nombre de chambres 3
Chambre des maîtres - commentaires ACCÈS DIRECTE À LA SALLE DE BAIN PAR UNE PORTE ESCAMOTABLE
Surface rez-de-chaussée 1093 pi²
Finition extérieure Aluminium + Brique
Type de cuisine Comptoir repas + Forme en U + Salle à manger
Surface garage 420 pi²
Garage 1
Mur garage 8 pi
Mur rez-de-chaussée 8 pi
Inclinaison toit avant/arrière 6/12

Ces plans de maison pourraient également vous intéresser


Vu récemment