00862
00862
00862

00862


Ce plan est offert en plusieurs variations. Vous pouvez consulter les variations en choissant un numéro de plan dans le menu ci-dessous. Les plans techniques dans les images ainsi que le tableau des caractéristiques et dimensions se mettront automatiquement à jour.


Jeux de plans - Sets of plans
Prix régulier$945.00
/

Ce site est protégé par hCaptcha, et la Politique de confidentialité et les Conditions de service de hCaptcha s’appliquent.

Description

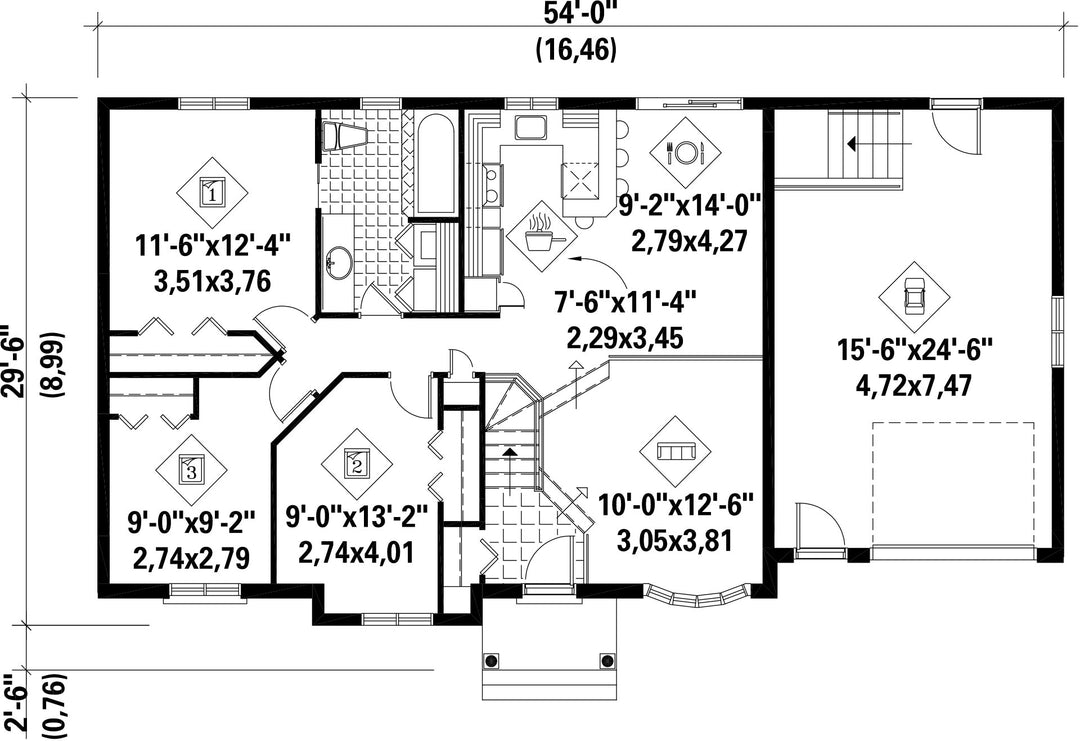
Dénivellation de plancher entre l'entrée, le salon et la cuisine

Caractéristiques

Mesures : Impérial

Style d'architecture Champêtre Coût de construction 
Montant approximatif équivalent à celui d'un entrepreneur général (région de la Rive-Sud de Montréal) pour une construction clé en main sans terrain ni infrastructures.
291707 $
Façade 54 pi Surface habitable totale 1074 pi²
Profondeur 29 piNombre de salles de bain 1
Hauteur 21 piNombre de chambres 3
Chambre des maîtres - commentaires ACCÈS DIRECTE À LA SALLE DE BAIN PAR UNE PORTE ESCAMOTABLE
Surface rez-de-chaussée 1074 pi² Finition extérieure Aluminium + Brique
Type de cuisine Comptoir repas + Forme en U + Salle à manger
Surface garage 420 pi² Garage 1
Mur garage 8 piMur rez-de-chaussée 8 pi
Inclinaison toit avant/arrière 6/12
Style d'architecture Champêtre
Coût de construction 
Montant approximatif équivalent à celui d'un entrepreneur général (région de la Rive-Sud de Montréal) pour une construction clé en main sans terrain ni infrastructures.
291707 $
Façade 54 pi
Surface habitable totale 1074 pi²
Profondeur 29 pi
Nombre de salles de bain 1
Hauteur 21 pi
Nombre de chambres 3
Chambre des maîtres - commentaires ACCÈS DIRECTE À LA SALLE DE BAIN PAR UNE PORTE ESCAMOTABLE
Surface rez-de-chaussée 1074 pi²
Finition extérieure Aluminium + Brique
Type de cuisine Comptoir repas + Forme en U + Salle à manger
Surface garage 420 pi²
Garage 1
Mur garage 8 pi
Mur rez-de-chaussée 8 pi
Inclinaison toit avant/arrière 6/12

Ces plans de maison pourraient également vous intéresser


Vu récemment