00601I
00601I
00601I

00601I


Ce plan est offert en plusieurs variations. Vous pouvez consulter les variations en choissant un numéro de plan dans le menu ci-dessous. Les plans techniques dans les images ainsi que le tableau des caractéristiques et dimensions se mettront automatiquement à jour.


Jeux de plans - Sets of plans
Prix régulier$1,035.00
/

Ce site est protégé par hCaptcha, et la Politique de confidentialité et les Conditions de service de hCaptcha s’appliquent.

Description

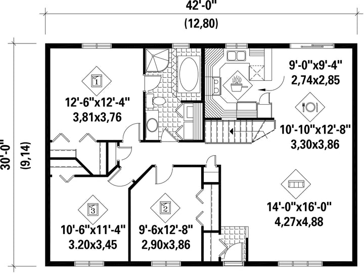
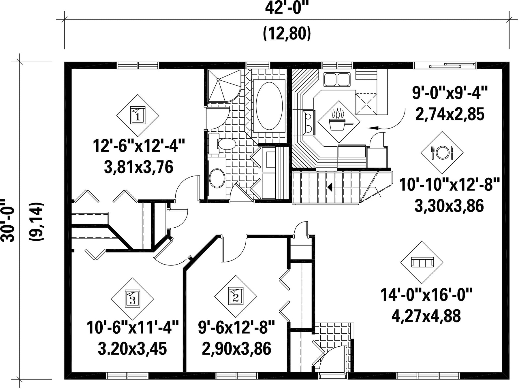
Toutes les pièces au même niveau

Caractéristiques

Mesures : Impérial

Style d'architecture Champêtre Coût de construction 
Montant approximatif équivalent à celui d'un entrepreneur général (région de la Rive-Sud de Montréal) pour une construction clé en main sans terrain ni infrastructures.
291060 $
Façade 42 pi Surface habitable totale 1260 pi²
Profondeur 30 piNombre de salles de bain 1
Hauteur 17 piNombre de chambres 3
Chambre des maîtres - commentaires ACCÈS DIRECT À LA SALLE DE BAIN
Surface rez-de-chaussée 1260 pi² Finition extérieure Aluminium
Type de cuisine Comptoir repas + Forme en U + Salle à manger
Garage 0
Mur rez-de-chaussée 8 pi
Inclinaison toit avant/arrière 5/12
Style d'architecture Champêtre
Coût de construction 
Montant approximatif équivalent à celui d'un entrepreneur général (région de la Rive-Sud de Montréal) pour une construction clé en main sans terrain ni infrastructures.
291060 $
Façade 42 pi
Surface habitable totale 1260 pi²
Profondeur 30 pi
Nombre de salles de bain 1
Hauteur 17 pi
Nombre de chambres 3
Chambre des maîtres - commentaires ACCÈS DIRECT À LA SALLE DE BAIN
Surface rez-de-chaussée 1260 pi²
Finition extérieure Aluminium
Type de cuisine Comptoir repas + Forme en U + Salle à manger
Garage 0
Mur rez-de-chaussée 8 pi
Inclinaison toit avant/arrière 5/12

Ces plans de maison pourraient également vous intéresser


Vu récemment