CCL00001
CCL00001
CCL00001
CCL00001

CCL00001


Jeux de plans - Sets of plans
Prix régulier$1,233.00
/

Ce site est protégé par hCaptcha, et la Politique de confidentialité et les Conditions de service de hCaptcha s’appliquent.

Description

Véranda

Caractéristiques

Mesures : Impérial

Style d'architecture Victorien Coût de construction 
Montant approximatif équivalent à celui d'un entrepreneur général (région de la Rive-Sud de Montréal) pour une construction clé en main sans terrain ni infrastructures.
517235 $
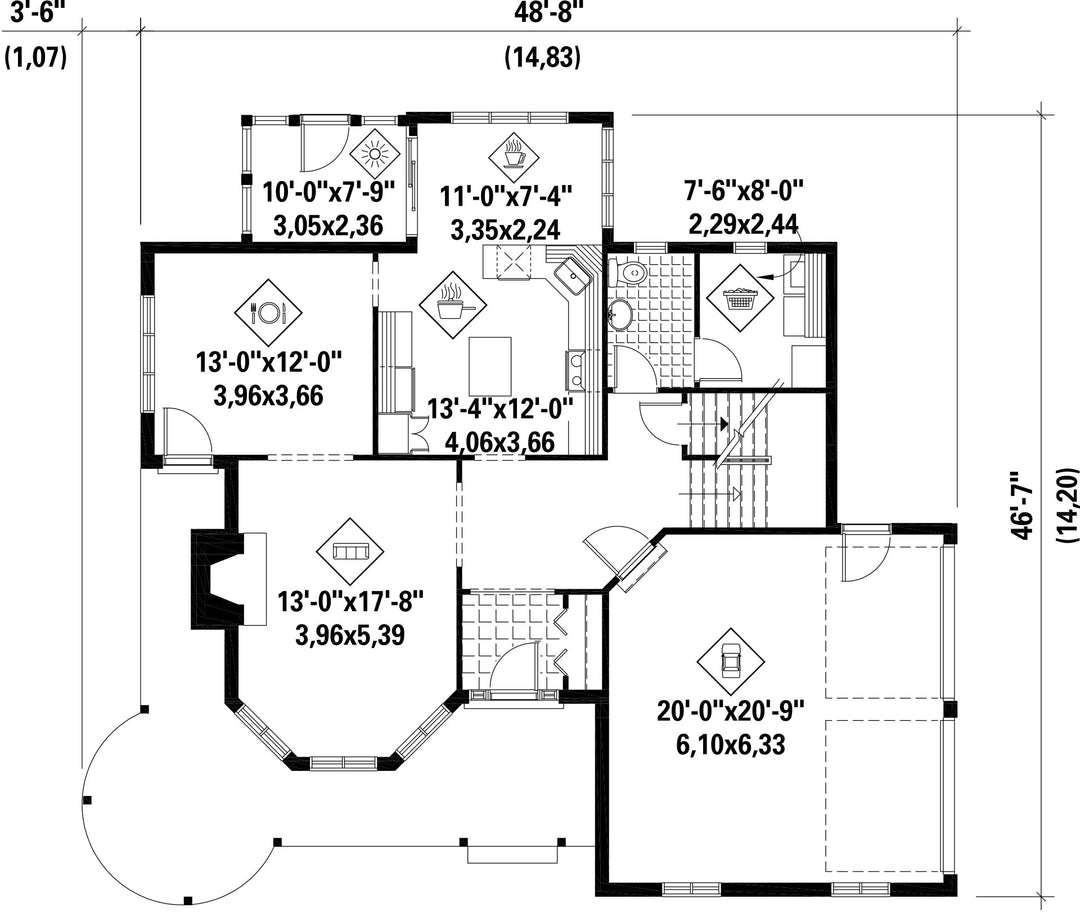
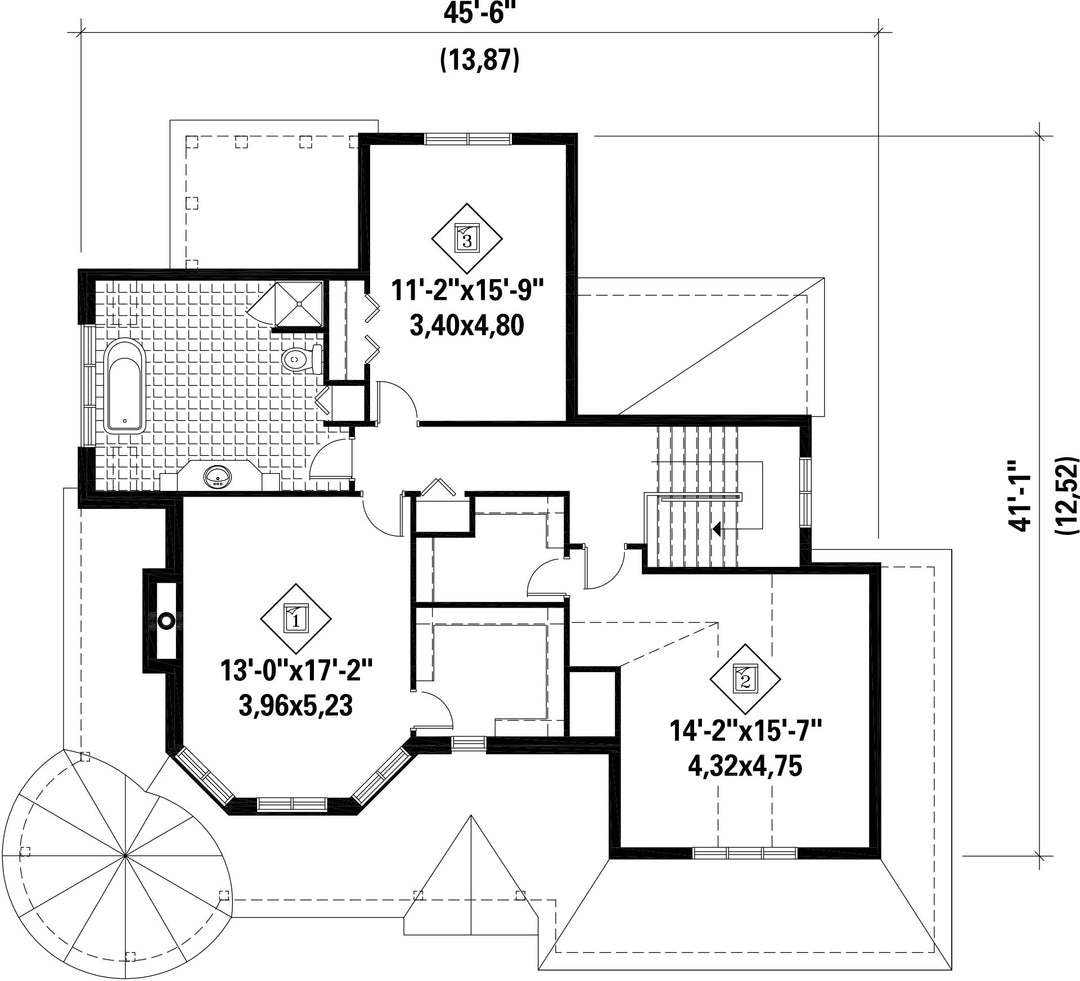
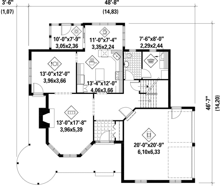
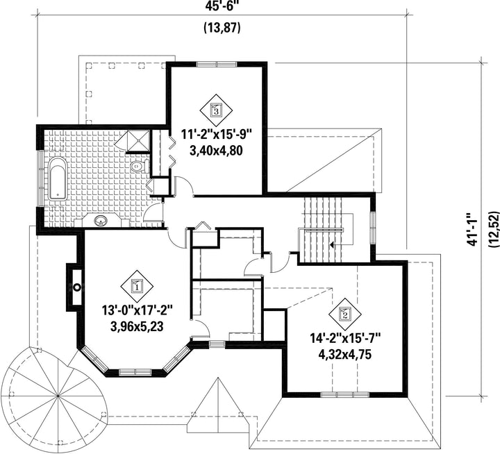
Façade 48 pi 8 po Surface habitable totale 2282 pi²
Profondeur 46 pi 7 poNombre de salles de bain 1
Hauteur 33 pi 10 poNombre de chambres 3
Chambre des maîtres Penderie
Surface rez-de-chaussée 1064 pi² Finition extérieure Aluminium + Brique
Surface étage 1218 pi² Type de cuisine Coin repas + Îlot
Surface garage 455 pi² Garage 2
Mur garage 8 piMur rez-de-chaussée 10 pi
Mur étage 8 piInclinaison toit avant/arrière 12/12
Inclinaison toit gauche/droite 12/12
Style d'architecture Victorien
Coût de construction 
Montant approximatif équivalent à celui d'un entrepreneur général (région de la Rive-Sud de Montréal) pour une construction clé en main sans terrain ni infrastructures.
517235 $
Façade 48 pi 8 po
Surface habitable totale 2282 pi²
Profondeur 46 pi 7 po
Nombre de salles de bain 1
Hauteur 33 pi 10 po
Nombre de chambres 3
Chambre des maîtres Penderie
Surface rez-de-chaussée 1064 pi²
Finition extérieure Aluminium + Brique
Surface étage 1218 pi²
Type de cuisine Coin repas + Îlot
Surface garage 455 pi²
Garage 2
Mur garage 8 pi
Mur rez-de-chaussée 10 pi
Mur étage 8 pi
Inclinaison toit avant/arrière 12/12
Inclinaison toit gauche/droite 12/12

Ces plans de maison pourraient également vous intéresser


Vu récemment