Description
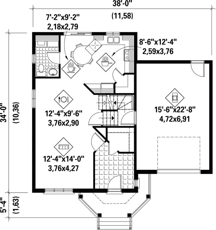
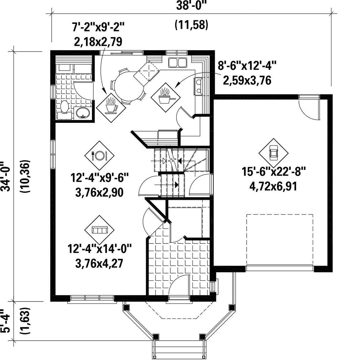
Les détails architecturaux, la façade en briques et la petite véranda de cette maison à étage lui donnent une allure des plus séduisantes. Elle mesure 38 pieds de largeur sur 34 pieds de profondeur et sa surface habitable est de 1 515 pieds carrés.
Le rez-de-chaussée de 750 pieds carrés comprend un grand vestibule menant à une vaste pièce qui sert de salon et de salle à manger, une salle d’eau, une grande cuisine avec un coin-repas pratique, et un garage simple de 384 pieds carrés.
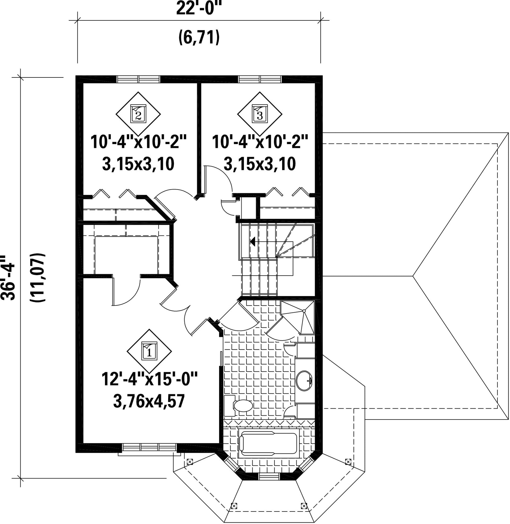
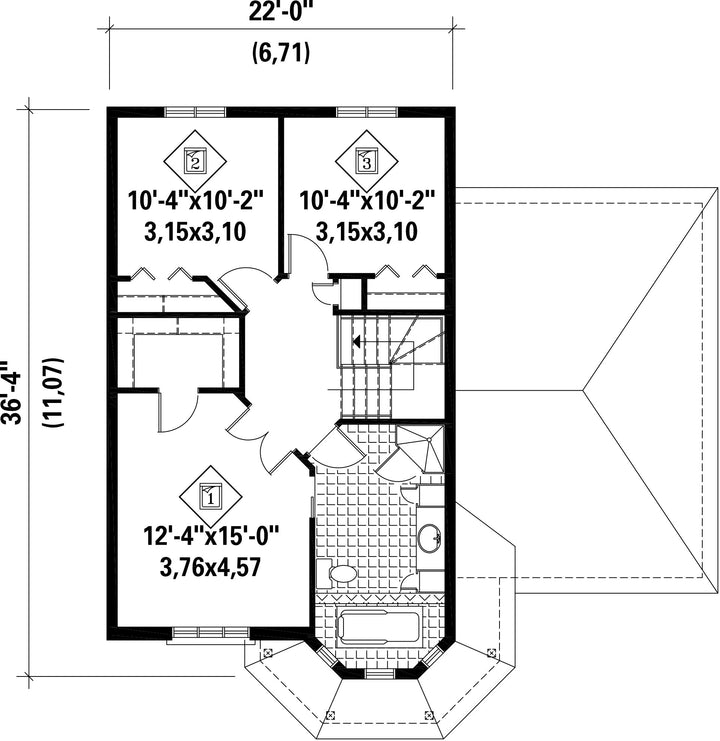
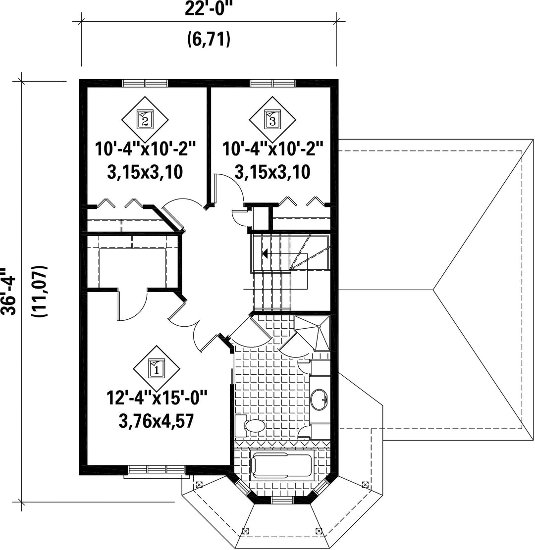
L’étage est réparti sur 765 pieds carrés et compte trois chambres, dont deux de dimensions identiques situées à l’arrière et la chambre principale avec grande penderie située à l’avant, ainsi qu’une salle de bains avec bain podium.
Le rez-de-chaussée de 750 pieds carrés comprend un grand vestibule menant à une vaste pièce qui sert de salon et de salle à manger, une salle d’eau, une grande cuisine avec un coin-repas pratique, et un garage simple de 384 pieds carrés.
L’étage est réparti sur 765 pieds carrés et compte trois chambres, dont deux de dimensions identiques situées à l’arrière et la chambre principale avec grande penderie située à l’avant, ainsi qu’une salle de bains avec bain podium.
Caractéristiques
Mesures : Impérial| Style d'architecture | Victorien |
Coût de construction
Montant approximatif équivalent à celui d'un entrepreneur général (région de la Rive-Sud de Montréal) pour une construction clé en main sans terrain ni infrastructures.
|
318226 $ |
|---|---|---|---|
| Façade | 38 pi | Surface habitable totale | 1515 pi² |
| Profondeur | 34 pi | Nombre de salles de bain | 1 |
| Hauteur | 33 pi 6 po | Nombre de chambres | 3 |
| Chambre des maîtres | Baignoire + Douche + Lavabo simple + Penderie + Portes doubles + Toilettes | Chambre des maîtres - commentaires | Bain podium dans la salle de bain des maîtres |
| Surface rez-de-chaussée | 750 pi² | Finition extérieure | Aluminium + Brique |
| Surface étage | 765 pi² | Type de cuisine | Comptoir repas |
| Surface garage | 384 pi² | Garage | 1 |
| Mur garage | 8 pi | Mur rez-de-chaussée | 8 pi |
| Mur étage | 8 pi | ||
| Inclinaison toit gauche/droite | 12/12 |
| Style d'architecture | Victorien |
|---|---|
|
Coût de construction
Montant approximatif équivalent à celui d'un entrepreneur général (région de la Rive-Sud de Montréal) pour une construction clé en main sans terrain ni infrastructures.
|
318226 $ |
| Façade | 38 pi |
| Surface habitable totale | 1515 pi² |
| Profondeur | 34 pi |
| Nombre de salles de bain | 1 |
| Hauteur | 33 pi 6 po |
| Nombre de chambres | 3 |
| Chambre des maîtres | Baignoire + Douche + Lavabo simple + Penderie + Portes doubles + Toilettes |
| Chambre des maîtres - commentaires | Bain podium dans la salle de bain des maîtres |
| Surface rez-de-chaussée | 750 pi² |
| Finition extérieure | Aluminium + Brique |
| Surface étage | 765 pi² |
| Type de cuisine | Comptoir repas |
| Surface garage | 384 pi² |
| Garage | 1 |
| Mur garage | 8 pi |
| Mur rez-de-chaussée | 8 pi |
| Mur étage | 8 pi |
| Inclinaison toit gauche/droite | 12/12 |