Description
Cette magnifique maison à étage présente plusieurs particularités intéressantes comme une véranda avec colonnes ornemental, une fenêtre œil de bœuf en façade, une tourelle et des moulures décoratives – des détails qui lui donnent un style raffiné. La demeure occupe 43 pieds de largeur sur 37 pieds de profondeur et offre une surface habitable de 1 624 pieds carrés.
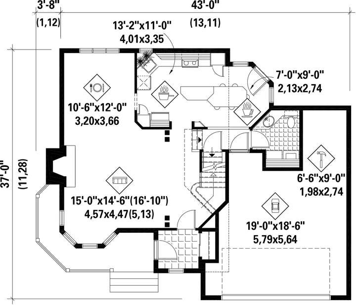
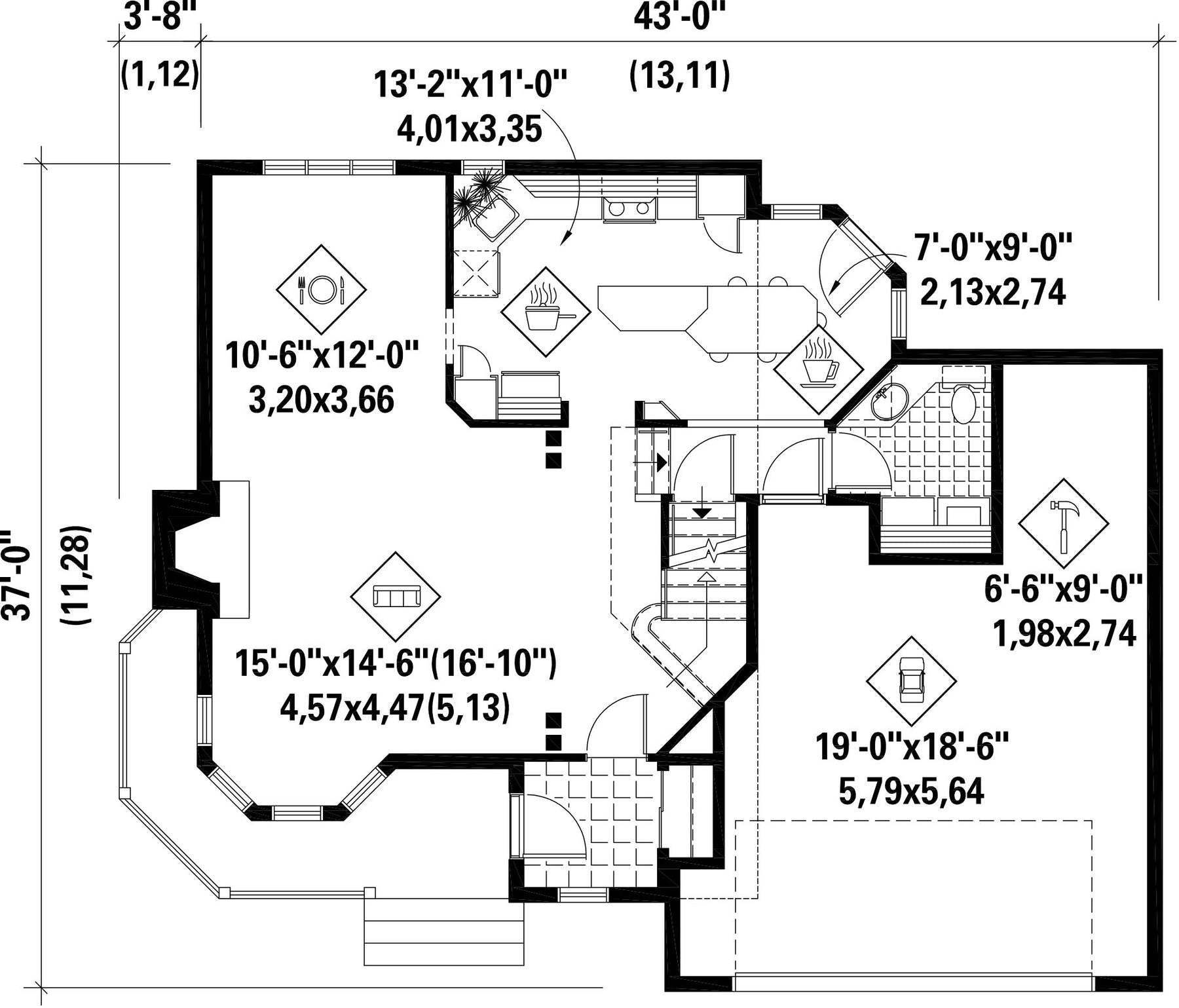
Avec 868 pieds carrés de surface habitable, le rez-de-chaussée compte un vestibule fermé, une salle d’eau avec espace pour la laveuse et sécheuse, un salon et une salle à manger à aire ouverte, et une grande cuisine avec îlot et comptoir repas. Un garage de 455 pieds carrés, comprenant un espace qui peut servir d’atelier ou de rangement, peut loger deux voitures.
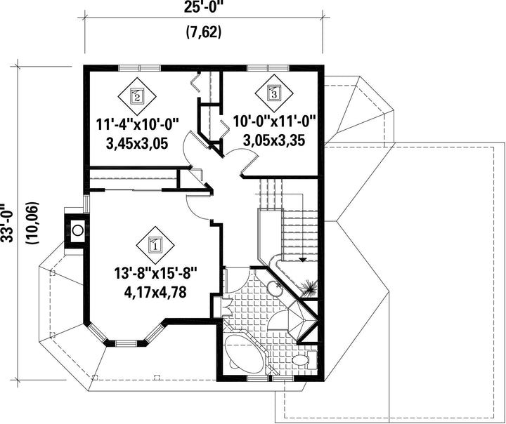
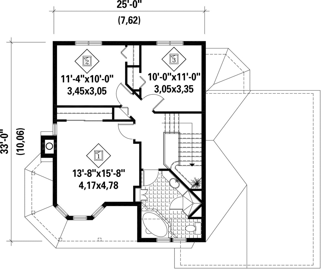
L’étage de 756 pieds carrés comprend une salle de bains, trois chambres, dont celle des maîtres avec coin lecture situé dans la tourelle.
Avec 868 pieds carrés de surface habitable, le rez-de-chaussée compte un vestibule fermé, une salle d’eau avec espace pour la laveuse et sécheuse, un salon et une salle à manger à aire ouverte, et une grande cuisine avec îlot et comptoir repas. Un garage de 455 pieds carrés, comprenant un espace qui peut servir d’atelier ou de rangement, peut loger deux voitures.
L’étage de 756 pieds carrés comprend une salle de bains, trois chambres, dont celle des maîtres avec coin lecture situé dans la tourelle.
Caractéristiques
Mesures : Impérial| Style d'architecture | Victorien |
Coût de construction
Montant approximatif équivalent à celui d'un entrepreneur général (région de la Rive-Sud de Montréal) pour une construction clé en main sans terrain ni infrastructures.
|
352064 $ |
|---|---|---|---|
| Façade | 43 pi | Surface habitable totale | 1624 pi² |
| Profondeur | 37 pi | Nombre de salles de bain | 1 |
| Hauteur | 31 pi 3 po | Nombre de chambres | 3 |
| Chambre des maîtres - commentaires | Chambre des maîtres de bonnes dimensions avec tourelle | ||
| Surface rez-de-chaussée | 868 pi² | Finition extérieure | Agrégats + Aluminium |
| Surface étage | 756 pi² | Type de cuisine | Coin repas + Comptoir repas + Salle à manger + Îlot |
| Surface garage | 455 pi² | Garage | 2 |
| Mur garage | 8 pi | Mur rez-de-chaussée | 8 pi |
| Mur étage | 8 pi | Inclinaison toit avant/arrière | 9/12 |
| Inclinaison toit gauche/droite | 9/12 |
| Style d'architecture | Victorien |
|---|---|
|
Coût de construction
Montant approximatif équivalent à celui d'un entrepreneur général (région de la Rive-Sud de Montréal) pour une construction clé en main sans terrain ni infrastructures.
|
352064 $ |
| Façade | 43 pi |
| Surface habitable totale | 1624 pi² |
| Profondeur | 37 pi |
| Nombre de salles de bain | 1 |
| Hauteur | 31 pi 3 po |
| Nombre de chambres | 3 |
| Chambre des maîtres - commentaires | Chambre des maîtres de bonnes dimensions avec tourelle |
| Surface rez-de-chaussée | 868 pi² |
| Finition extérieure | Agrégats + Aluminium |
| Surface étage | 756 pi² |
| Type de cuisine | Coin repas + Comptoir repas + Salle à manger + Îlot |
| Surface garage | 455 pi² |
| Garage | 2 |
| Mur garage | 8 pi |
| Mur rez-de-chaussée | 8 pi |
| Mur étage | 8 pi |
| Inclinaison toit avant/arrière | 9/12 |
| Inclinaison toit gauche/droite | 9/12 |