07955
07955
07955
07955
07955
07955

Jeux de plans - Sets of plans
Prix régulier$1,089.00
/

Ce site est protégé par hCaptcha, et la Politique de confidentialité et les Conditions de service de hCaptcha s’appliquent.

Description

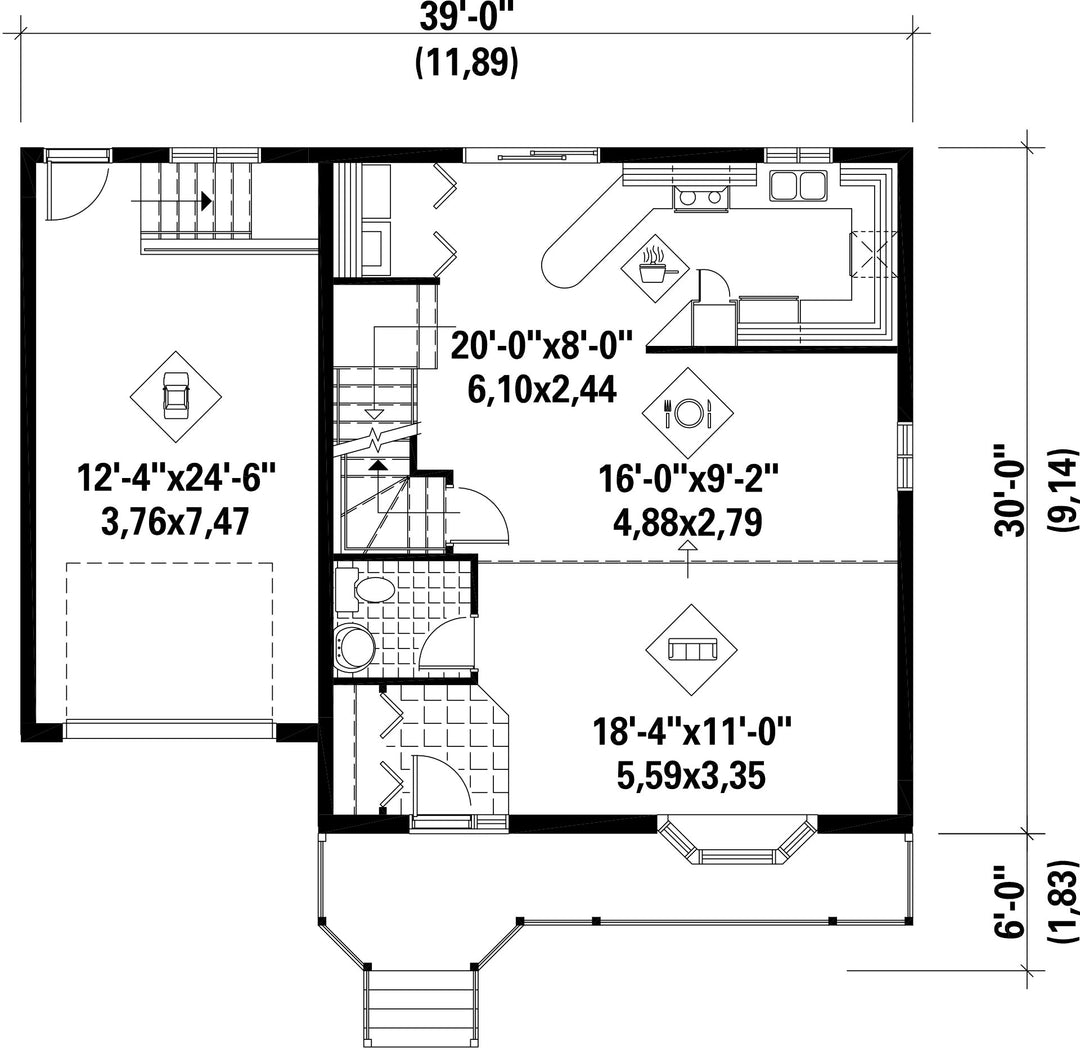
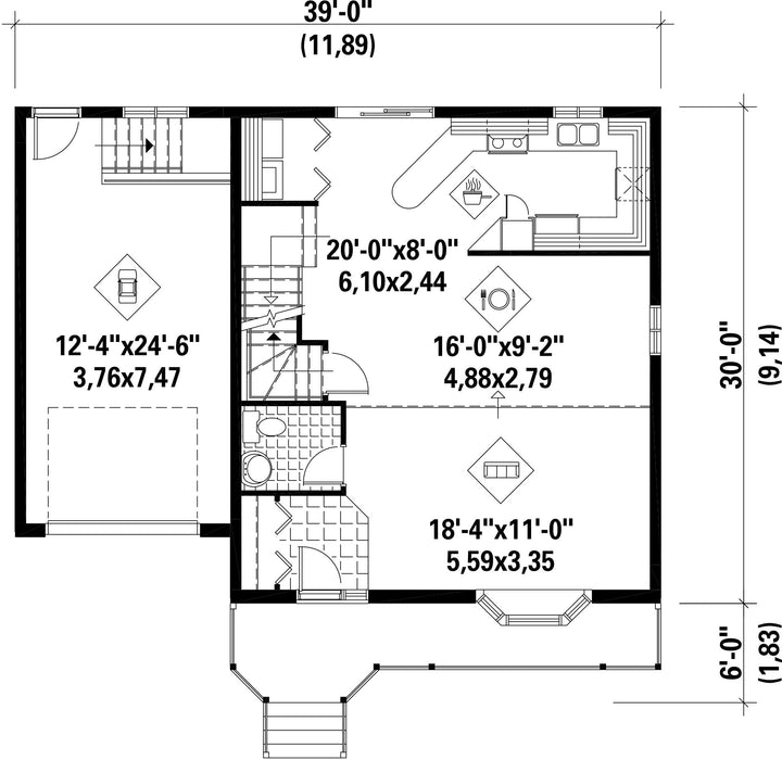
Entrée à aire ouverte

Caractéristiques

Mesures : Impérial

Style d'architecture Victorien Coût de construction 
Montant approximatif équivalent à celui d'un entrepreneur général (région de la Rive-Sud de Montréal) pour une construction clé en main sans terrain ni infrastructures.
320093 $
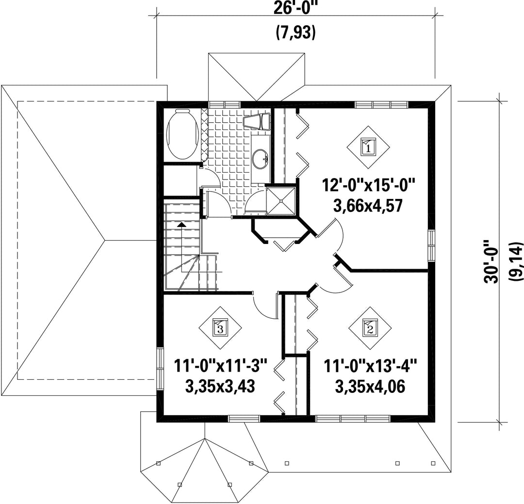
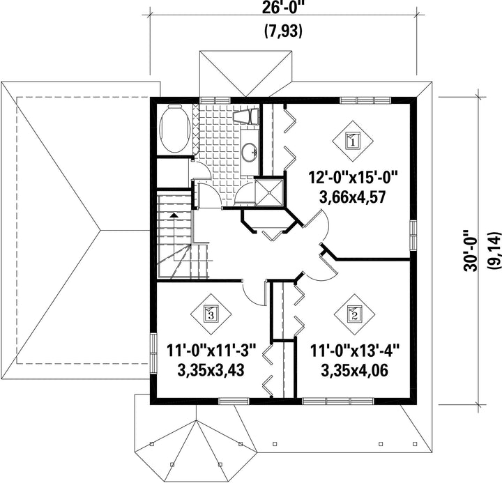
Façade 39 pi Surface habitable totale 1560 pi²
Profondeur 30 piNombre de salles de bain 1
Hauteur 34 pi 3 poNombre de chambres 3
Chambre des maîtres - commentaires 2 fenêtres
Surface rez-de-chaussée 780 pi² Finition extérieure Aluminium + Brique
Surface étage 780 pi² Type de cuisine Forme en U
Surface garage 338 pi² Garage 1
Mur garage 8 piMur rez-de-chaussée 8 pi
Mur étage 8 piInclinaison toit avant/arrière 9/12
Style d'architecture Victorien
Coût de construction 
Montant approximatif équivalent à celui d'un entrepreneur général (région de la Rive-Sud de Montréal) pour une construction clé en main sans terrain ni infrastructures.
320093 $
Façade 39 pi
Surface habitable totale 1560 pi²
Profondeur 30 pi
Nombre de salles de bain 1
Hauteur 34 pi 3 po
Nombre de chambres 3
Chambre des maîtres - commentaires 2 fenêtres
Surface rez-de-chaussée 780 pi²
Finition extérieure Aluminium + Brique
Surface étage 780 pi²
Type de cuisine Forme en U
Surface garage 338 pi²
Garage 1
Mur garage 8 pi
Mur rez-de-chaussée 8 pi
Mur étage 8 pi
Inclinaison toit avant/arrière 9/12

Ces plans de maison pourraient également vous intéresser


Vu récemment