07746
07746
07746
07746
07746
07746

Jeux de plans - Sets of plans
Prix régulier$1,035.00
/

Ce site est protégé par hCaptcha, et la Politique de confidentialité et les Conditions de service de hCaptcha s’appliquent.

Description

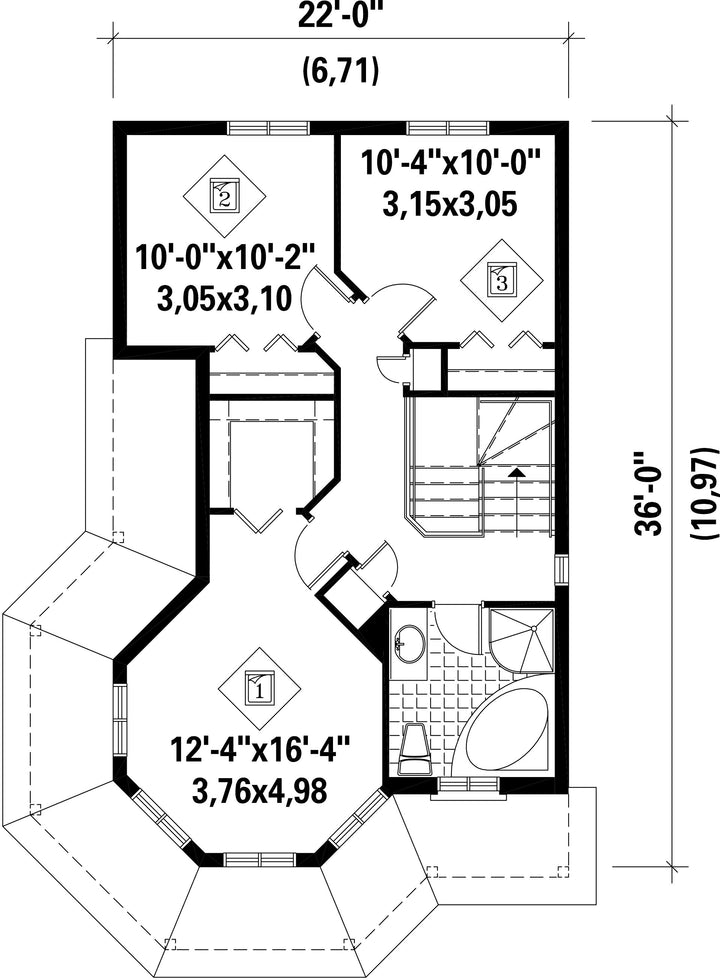
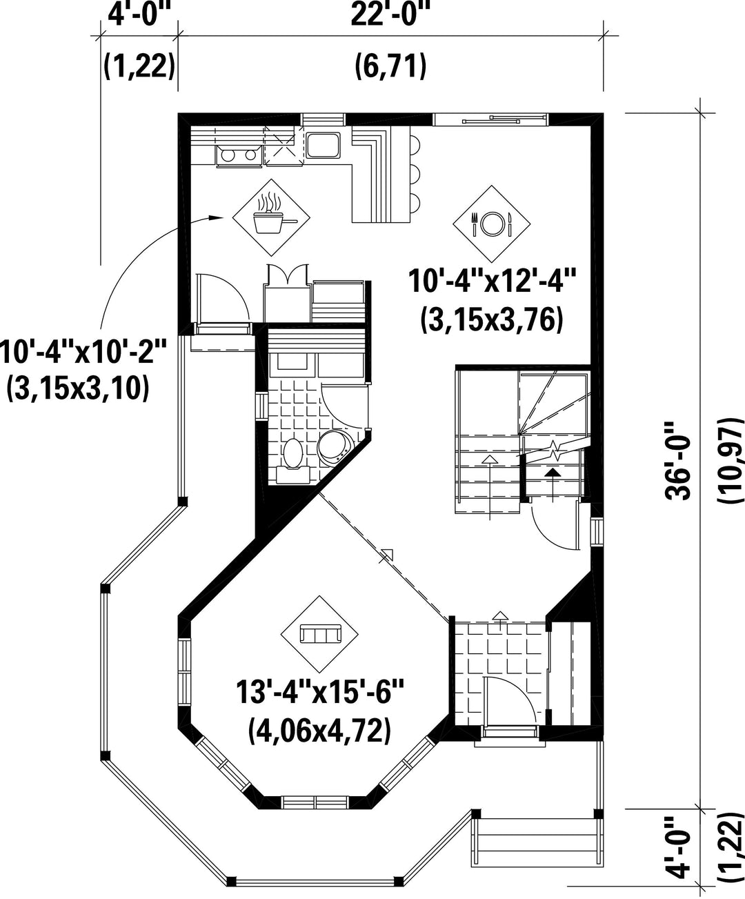
C'est surtout son salon de forme octogonale qui caractérise cette maison. La cuisine et la salle à manger occupent l'arrière de la maison. À l'étage, trois chambres dont une, réplique du salon pour achever l'effet de tour, se démarque, lumineuse, par ses quatre fenêtres.

Caractéristiques

Mesures : Impérial

Style d'architecture Victorien Coût de construction 
Montant approximatif équivalent à celui d'un entrepreneur général (région de la Rive-Sud de Montréal) pour une construction clé en main sans terrain ni infrastructures.
270813 $
Façade 22 pi Surface habitable totale 1396 pi²
Profondeur 36 piNombre de salles de bain 1
Hauteur 37 pi 5 poNombre de chambres 3
Chambre des maîtres Penderie
Surface rez-de-chaussée 698 pi² Finition extérieure Aluminium + Brique
Surface étage 698 pi² Type de cuisine Comptoir repas + Forme en L + Salle à manger
Garage 0
Mur rez-de-chaussée 8 pi
Mur étage 8 piInclinaison toit avant/arrière 12/12
Inclinaison toit gauche/droite 12/12
Style d'architecture Victorien
Coût de construction 
Montant approximatif équivalent à celui d'un entrepreneur général (région de la Rive-Sud de Montréal) pour une construction clé en main sans terrain ni infrastructures.
270813 $
Façade 22 pi
Surface habitable totale 1396 pi²
Profondeur 36 pi
Nombre de salles de bain 1
Hauteur 37 pi 5 po
Nombre de chambres 3
Chambre des maîtres Penderie
Surface rez-de-chaussée 698 pi²
Finition extérieure Aluminium + Brique
Surface étage 698 pi²
Type de cuisine Comptoir repas + Forme en L + Salle à manger
Garage 0
Mur rez-de-chaussée 8 pi
Mur étage 8 pi
Inclinaison toit avant/arrière 12/12
Inclinaison toit gauche/droite 12/12

Ces plans de maison pourraient également vous intéresser


Vu récemment