07245
07245
07245
07245
07245
07245

Jeux de plans - Sets of plans
Prix régulier$1,089.00
/

Ce site est protégé par hCaptcha, et la Politique de confidentialité et les Conditions de service de hCaptcha s’appliquent.

Description

Salle familiale

Caractéristiques

Mesures : Impérial

Style d'architecture Victorien Coût de construction 
Montant approximatif équivalent à celui d'un entrepreneur général (région de la Rive-Sud de Montréal) pour une construction clé en main sans terrain ni infrastructures.
324342 $
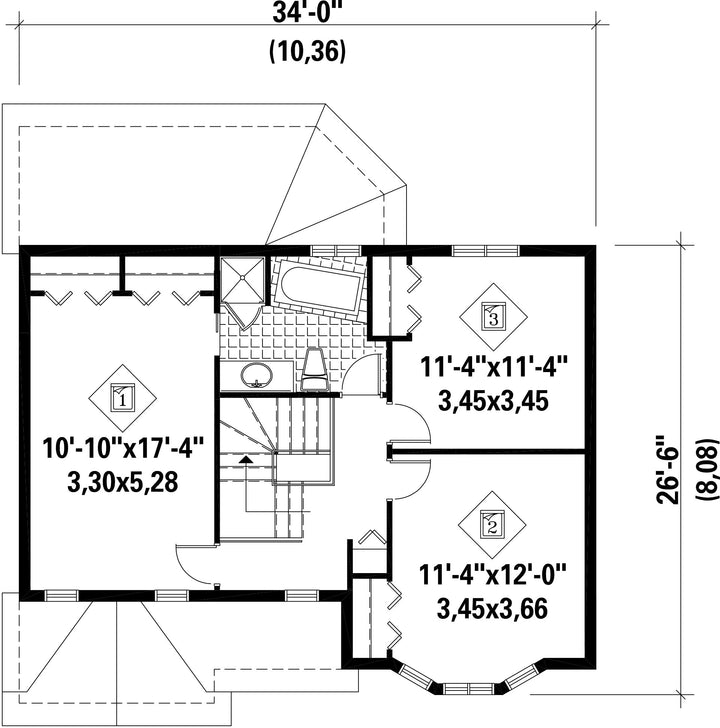
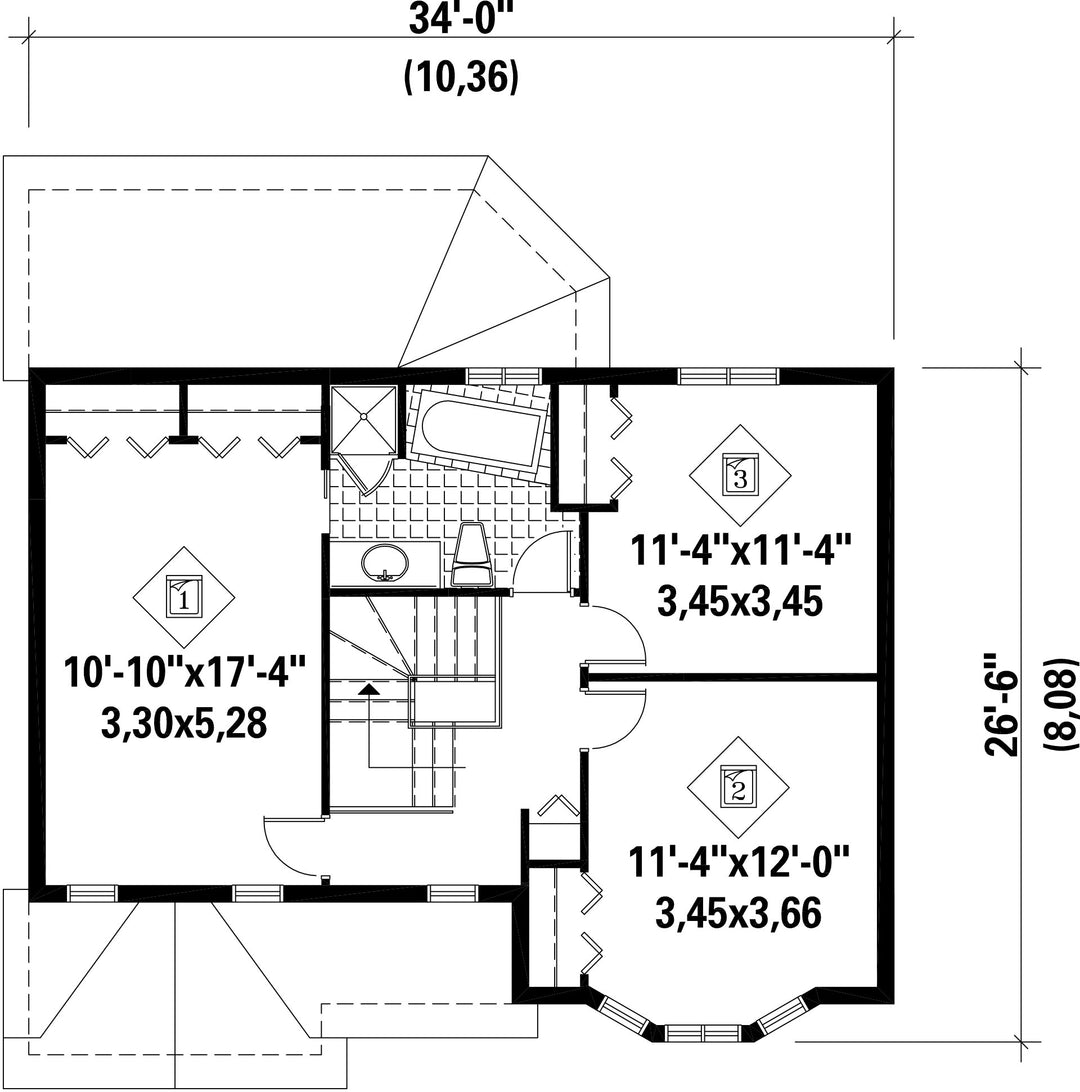
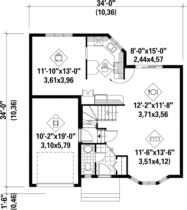
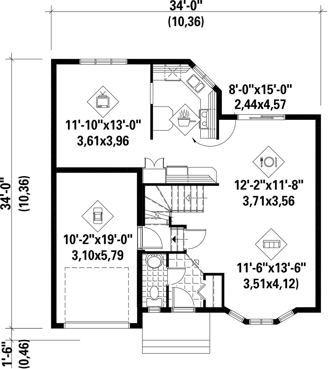
Façade 34 pi Surface habitable totale 1596 pi²
Profondeur 34 piNombre de salles de bain 1
Hauteur 28 pi 5 poNombre de chambres 3
Chambre des maîtres - commentaires 2 garde-robes
Surface rez-de-chaussée 812 pi² Finition extérieure Agrégats + Aluminium
Surface étage 784 pi² Type de cuisine Comptoir repas + Forme en U + Salle à manger
Surface garage 215 pi² Garage 1
Mur garage 8 piMur rez-de-chaussée 8 pi
Mur étage 8 piInclinaison toit avant/arrière 8/12
Inclinaison toit gauche/droite 11/12
Style d'architecture Victorien
Coût de construction 
Montant approximatif équivalent à celui d'un entrepreneur général (région de la Rive-Sud de Montréal) pour une construction clé en main sans terrain ni infrastructures.
324342 $
Façade 34 pi
Surface habitable totale 1596 pi²
Profondeur 34 pi
Nombre de salles de bain 1
Hauteur 28 pi 5 po
Nombre de chambres 3
Chambre des maîtres - commentaires 2 garde-robes
Surface rez-de-chaussée 812 pi²
Finition extérieure Agrégats + Aluminium
Surface étage 784 pi²
Type de cuisine Comptoir repas + Forme en U + Salle à manger
Surface garage 215 pi²
Garage 1
Mur garage 8 pi
Mur rez-de-chaussée 8 pi
Mur étage 8 pi
Inclinaison toit avant/arrière 8/12
Inclinaison toit gauche/droite 11/12

Ces plans de maison pourraient également vous intéresser


Vu récemment