06325
06325
06325
06325
06325
06325

Jeux de plans - Sets of plans
Prix régulier$1,089.00
/

Ce site est protégé par hCaptcha, et la Politique de confidentialité et les Conditions de service de hCaptcha s’appliquent.

Description

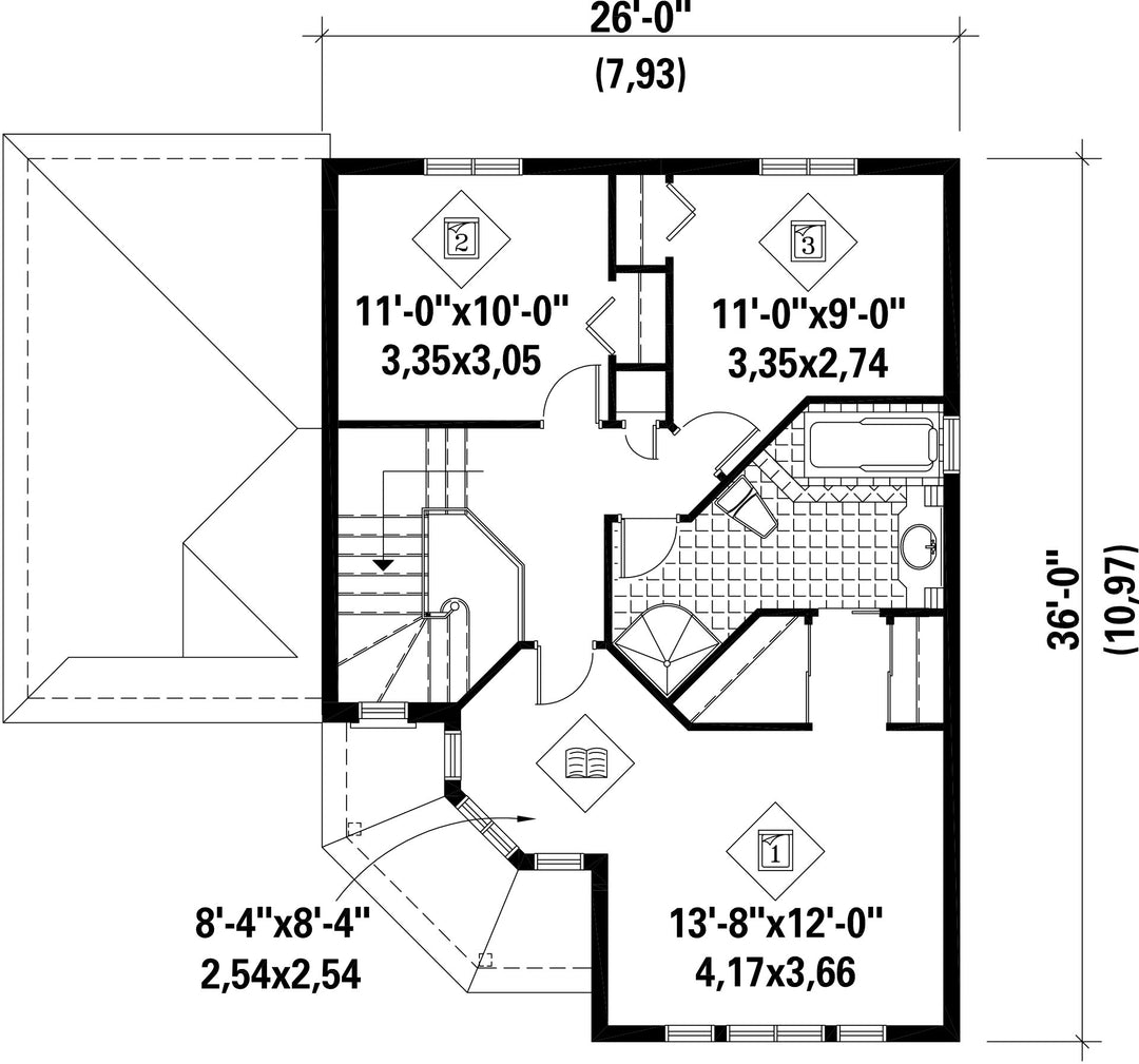
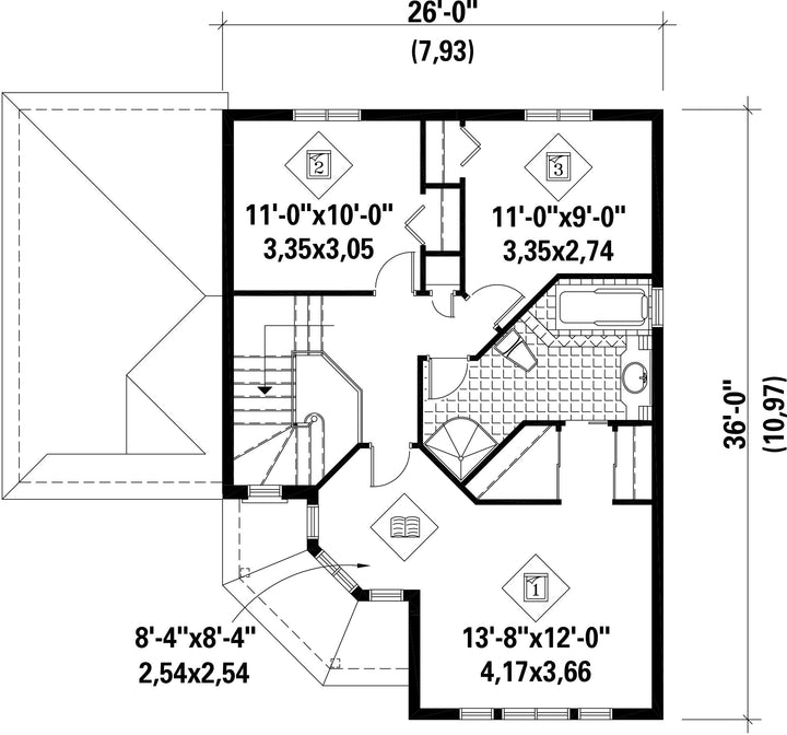
Salle de lecture dans la chambre principale

Caractéristiques

Mesures : Impérial

Style d'architecture Victorien Coût de construction 
Montant approximatif équivalent à celui d'un entrepreneur général (région de la Rive-Sud de Montréal) pour une construction clé en main sans terrain ni infrastructures.
322868 $
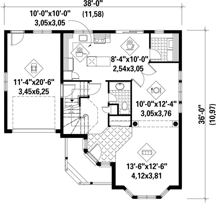
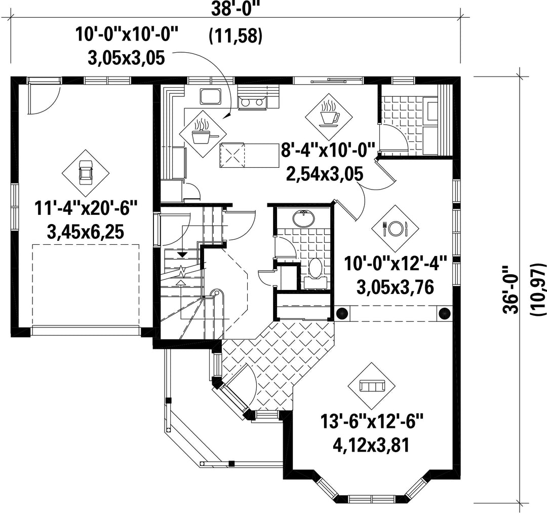
Façade 38 pi Surface habitable totale 1636 pi²
Profondeur 36 piNombre de salles de bain 1
Hauteur 28 pi 6 poNombre de chambres 3
Chambre des maîtres Penderie Chambre des maîtres - commentaires Accès à la salle de bain
Surface rez-de-chaussée 811 pi² Finition extérieure Aluminium + Brique
Surface étage 825 pi² Type de cuisine Coin repas + Forme en L + Salle à manger + Îlot
Surface garage 264 pi² Garage 1
Mur garage 8 piMur rez-de-chaussée 8 pi
Mur étage 8 piInclinaison toit avant/arrière 8/12
Inclinaison toit gauche/droite 8/12
Style d'architecture Victorien
Coût de construction 
Montant approximatif équivalent à celui d'un entrepreneur général (région de la Rive-Sud de Montréal) pour une construction clé en main sans terrain ni infrastructures.
322868 $
Façade 38 pi
Surface habitable totale 1636 pi²
Profondeur 36 pi
Nombre de salles de bain 1
Hauteur 28 pi 6 po
Nombre de chambres 3
Chambre des maîtres Penderie
Chambre des maîtres - commentaires Accès à la salle de bain
Surface rez-de-chaussée 811 pi²
Finition extérieure Aluminium + Brique
Surface étage 825 pi²
Type de cuisine Coin repas + Forme en L + Salle à manger + Îlot
Surface garage 264 pi²
Garage 1
Mur garage 8 pi
Mur rez-de-chaussée 8 pi
Mur étage 8 pi
Inclinaison toit avant/arrière 8/12
Inclinaison toit gauche/droite 8/12

Ces plans de maison pourraient également vous intéresser


Vu récemment