Description
L’apparence de ces ravissantes maisons à étage jumelées est rehaussée par un revêtement de briques, de pierres et d’aluminium, une tourelle, un œil-de-bœuf en façade et des moulures décoratives. Elles ont chacune une superficie habitable totale de 1 411 pieds carrés.
La disposition des pièces est légèrement différente dans les deux unités, mais la superficie des étages est identique, soit de 705 pieds carrés pour le rez-de-chaussée et également pour l’étage.
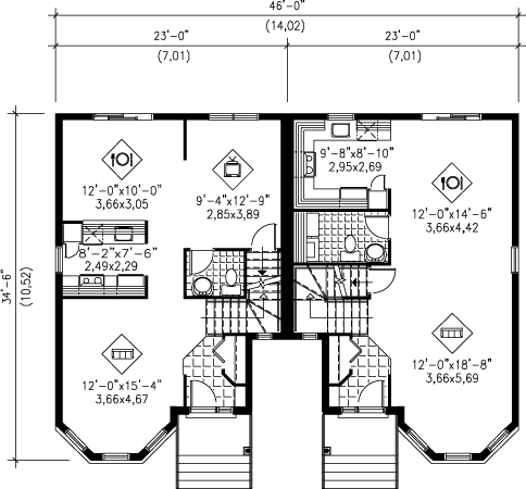
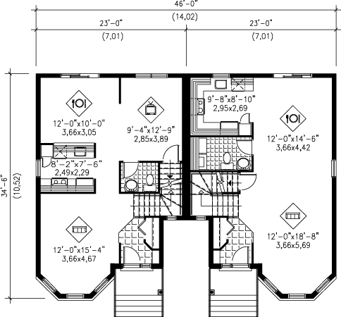
Le rez-de-chaussée de la maison de droite comprend un hall ouvert avec placard, une salle d’eau avec espace pour la laveuse et la sécheuse, un vaste salon, une cuisine en U et une salle à manger à aire ouverte.
Le rez-de-chaussée de la maison de gauche comprend un hall ouvert avec placard, une salle d’eau, un salon, une cuisine, une salle à manger à aire ouverte et une salle familiale.
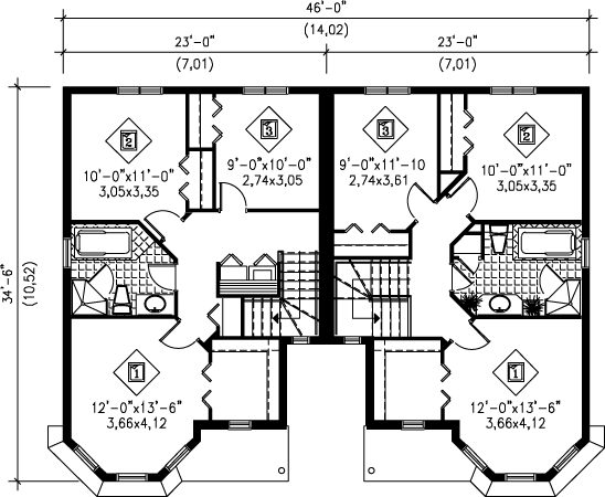
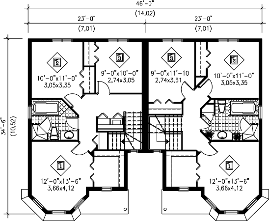
L’étage de la maison de droite est composé d’une salle de bains et de trois chambres, dont une chambre des maîtres disposant d’une grande penderie.
L’étage de la maison de gauche est composé d’une salle de bains, d’un grand placard pour la laveuse et la sécheuse, et de trois chambres, dont une chambre des maîtres disposant d’une grande penderie.
La disposition des pièces est légèrement différente dans les deux unités, mais la superficie des étages est identique, soit de 705 pieds carrés pour le rez-de-chaussée et également pour l’étage.
Le rez-de-chaussée de la maison de droite comprend un hall ouvert avec placard, une salle d’eau avec espace pour la laveuse et la sécheuse, un vaste salon, une cuisine en U et une salle à manger à aire ouverte.
Le rez-de-chaussée de la maison de gauche comprend un hall ouvert avec placard, une salle d’eau, un salon, une cuisine, une salle à manger à aire ouverte et une salle familiale.
L’étage de la maison de droite est composé d’une salle de bains et de trois chambres, dont une chambre des maîtres disposant d’une grande penderie.
L’étage de la maison de gauche est composé d’une salle de bains, d’un grand placard pour la laveuse et la sécheuse, et de trois chambres, dont une chambre des maîtres disposant d’une grande penderie.
Caractéristiques
Mesures : Impérial| Style d'architecture | Victorien |
Coût de construction
Montant approximatif équivalent à celui d'un entrepreneur général (région de la Rive-Sud de Montréal) pour une construction clé en main sans terrain ni infrastructures.
|
529872 $ |
|---|---|---|---|
| Façade | 46 pi | Surface habitable totale | 2822 pi² |
| Profondeur | 34 pi 6 po | Nombre de salles de bain | 2 |
| Hauteur | 31 pi 6 po | Nombre de chambres | 6 |
| Chambre des maîtres - commentaires | Bulle en façade | ||
| Surface rez-de-chaussée | 1411 pi² | Finition extérieure | Aluminium + Brique + Pierre |
| Surface étage | 1411 pi² | ||
| Garage | 0 | ||
| Mur rez-de-chaussée | 8 pi | ||
| Mur étage | 8 pi | Inclinaison toit avant/arrière | 6/12 |
| Inclinaison toit gauche/droite | 12/12 |
| Style d'architecture | Victorien |
|---|---|
|
Coût de construction
Montant approximatif équivalent à celui d'un entrepreneur général (région de la Rive-Sud de Montréal) pour une construction clé en main sans terrain ni infrastructures.
|
529872 $ |
| Façade | 46 pi |
| Surface habitable totale | 2822 pi² |
| Profondeur | 34 pi 6 po |
| Nombre de salles de bain | 2 |
| Hauteur | 31 pi 6 po |
| Nombre de chambres | 6 |
| Chambre des maîtres - commentaires | Bulle en façade |
| Surface rez-de-chaussée | 1411 pi² |
| Finition extérieure | Aluminium + Brique + Pierre |
| Surface étage | 1411 pi² |
| Garage | 0 |
| Mur rez-de-chaussée | 8 pi |
| Mur étage | 8 pi |
| Inclinaison toit avant/arrière | 6/12 |
| Inclinaison toit gauche/droite | 12/12 |