02996
02996
02996
02996
02996
02996

Jeux de plans - Sets of plans
Prix régulier$1,035.00
/

Ce site est protégé par hCaptcha, et la Politique de confidentialité et les Conditions de service de hCaptcha s’appliquent.

Description

Grandes pièces

Caractéristiques

Mesures : Impérial

Style d'architecture Victorien Coût de construction 
Montant approximatif équivalent à celui d'un entrepreneur général (région de la Rive-Sud de Montréal) pour une construction clé en main sans terrain ni infrastructures.
279470 $
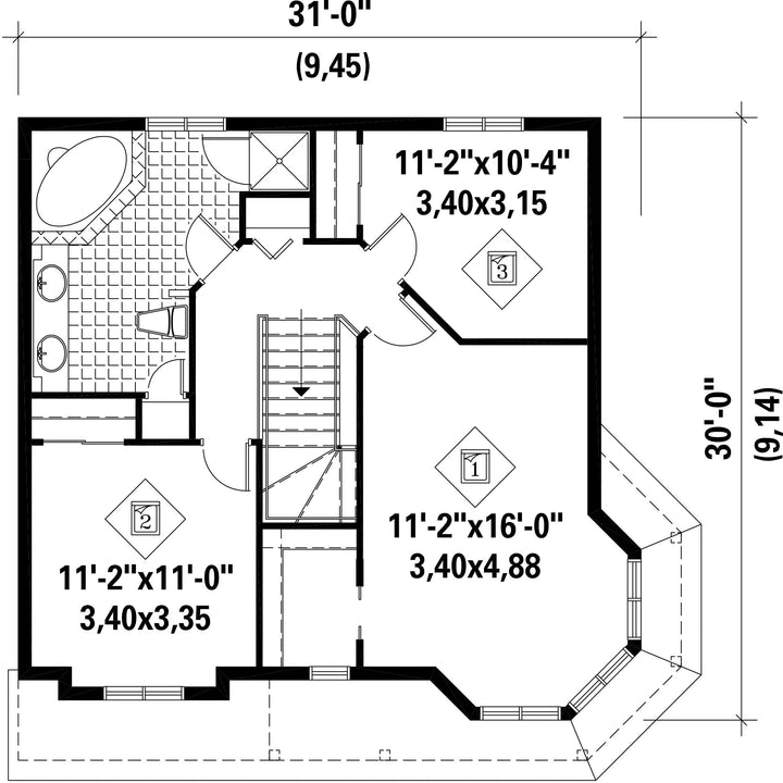
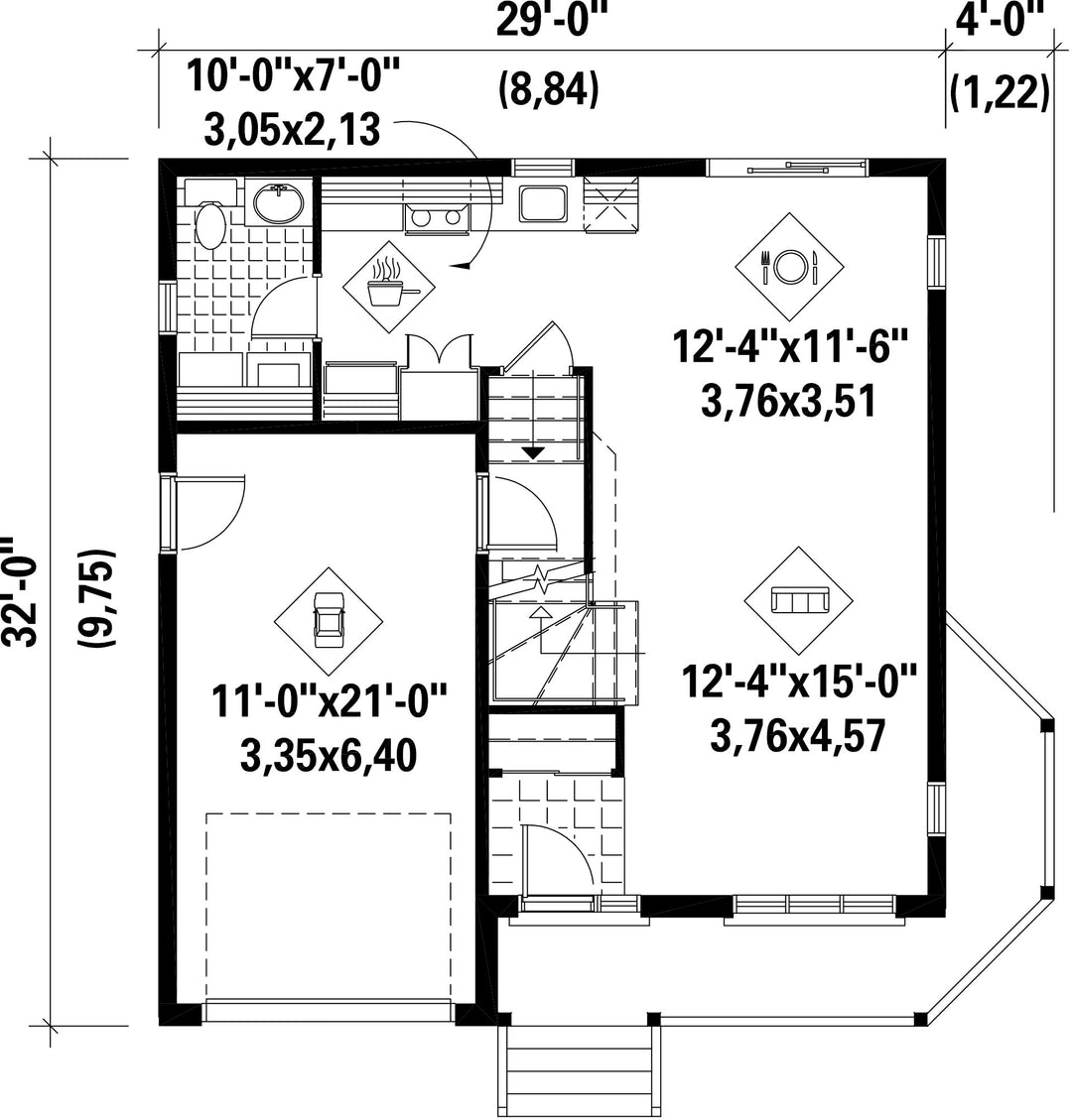
Façade 29 pi Surface habitable totale 1452 pi²
Profondeur 32 piNombre de salles de bain 1
Hauteur 33 pi 6 poNombre de chambres 3
Chambre des maîtres Penderie Chambre des maîtres - commentaires Tourelle avec fenêtre
Surface rez-de-chaussée 604 pi² Finition extérieure Aluminium + Brique
Surface étage 848 pi² Type de cuisine Laboratoire
Surface garage 258 pi² Garage 1
Mur garage 8 piMur rez-de-chaussée 8 pi
Mur étage 8 piInclinaison toit avant/arrière 7/12
Inclinaison toit gauche/droite 12/12
Style d'architecture Victorien
Coût de construction 
Montant approximatif équivalent à celui d'un entrepreneur général (région de la Rive-Sud de Montréal) pour une construction clé en main sans terrain ni infrastructures.
279470 $
Façade 29 pi
Surface habitable totale 1452 pi²
Profondeur 32 pi
Nombre de salles de bain 1
Hauteur 33 pi 6 po
Nombre de chambres 3
Chambre des maîtres Penderie
Chambre des maîtres - commentaires Tourelle avec fenêtre
Surface rez-de-chaussée 604 pi²
Finition extérieure Aluminium + Brique
Surface étage 848 pi²
Type de cuisine Laboratoire
Surface garage 258 pi²
Garage 1
Mur garage 8 pi
Mur rez-de-chaussée 8 pi
Mur étage 8 pi
Inclinaison toit avant/arrière 7/12
Inclinaison toit gauche/droite 12/12

Ces plans de maison pourraient également vous intéresser


Vu récemment