02045
02045
02045
02045
02045
02045

Jeux de plans - Sets of plans
Prix régulier$1,089.00
/

Ce site est protégé par hCaptcha, et la Politique de confidentialité et les Conditions de service de hCaptcha s’appliquent.

Description

Maison à aire ouverte

Caractéristiques

Mesures : Impérial

Style d'architecture Victorien Coût de construction 
Montant approximatif équivalent à celui d'un entrepreneur général (région de la Rive-Sud de Montréal) pour une construction clé en main sans terrain ni infrastructures.
323637 $
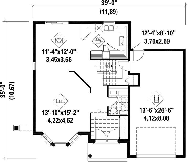
Façade 39 pi Surface habitable totale 1539 pi²
Profondeur 35 piNombre de salles de bain 1
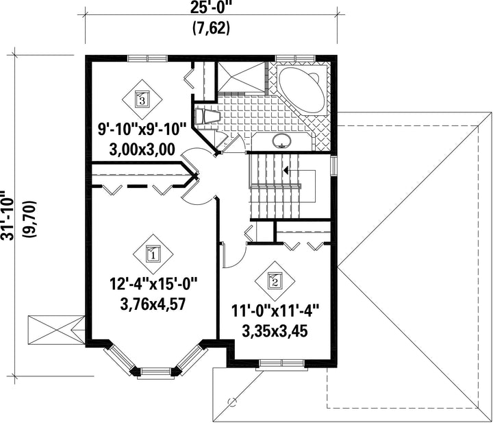
Hauteur 29 pi 4 poNombre de chambres 3
Chambre des maîtres - commentaires garde-robe
Surface rez-de-chaussée 772 pi² Finition extérieure Aluminium + Brique
Surface étage 767 pi² Type de cuisine Forme en U + Salle à manger
Surface garage 391 pi² Garage 1
Mur garage 8 piMur rez-de-chaussée 8 pi
Mur étage 8 piInclinaison toit avant/arrière 7/12
Inclinaison toit gauche/droite 7/12
Style d'architecture Victorien
Coût de construction 
Montant approximatif équivalent à celui d'un entrepreneur général (région de la Rive-Sud de Montréal) pour une construction clé en main sans terrain ni infrastructures.
323637 $
Façade 39 pi
Surface habitable totale 1539 pi²
Profondeur 35 pi
Nombre de salles de bain 1
Hauteur 29 pi 4 po
Nombre de chambres 3
Chambre des maîtres - commentaires garde-robe
Surface rez-de-chaussée 772 pi²
Finition extérieure Aluminium + Brique
Surface étage 767 pi²
Type de cuisine Forme en U + Salle à manger
Surface garage 391 pi²
Garage 1
Mur garage 8 pi
Mur rez-de-chaussée 8 pi
Mur étage 8 pi
Inclinaison toit avant/arrière 7/12
Inclinaison toit gauche/droite 7/12

Ces plans de maison pourraient également vous intéresser


Vu récemment