69806
69806
69806
69806

69806


Jeux de plans - Sets of plans
Prix régulier$864.00
/

Ce site est protégé par hCaptcha, et la Politique de confidentialité et les Conditions de service de hCaptcha s’appliquent.

Description

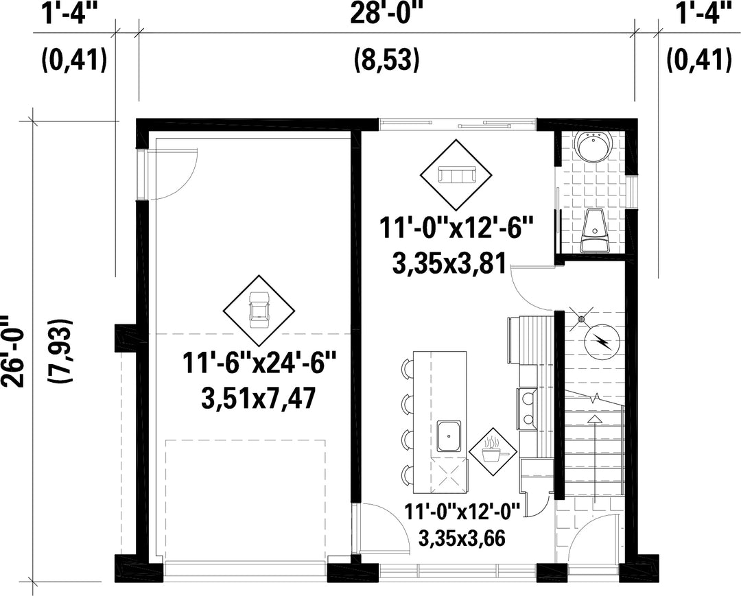
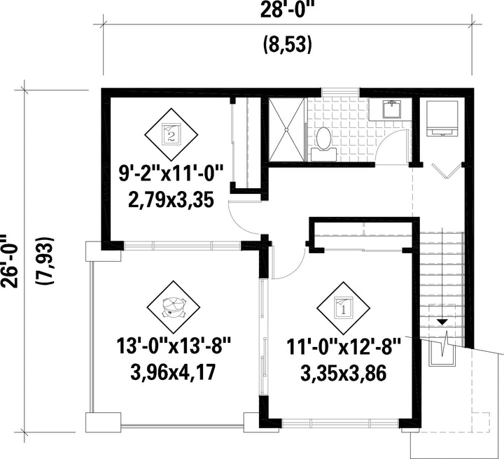
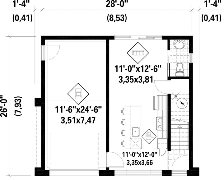
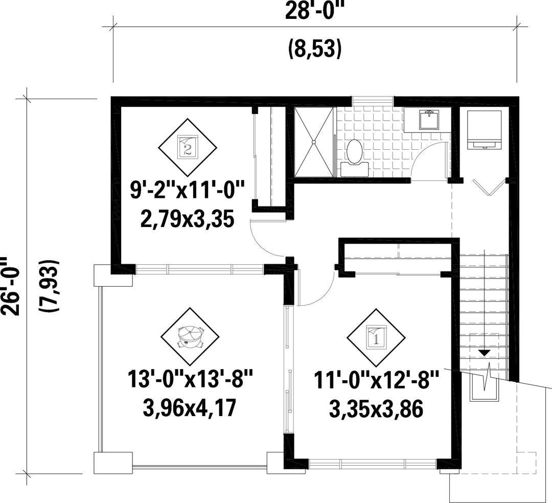
Ce joli garage loft peut servir de maison pour un couple à la retraite qui désire une habitation plus petite pour s’installer sur le bord d’un lac, par exemple, ou pour un jeune couple qui débute dans la vie. Le bâtiment comprend trois portes – une porte de garage pour la voiture, une porte de service sur le côté, et une porte d’entrée à l’avant. Comme la dalle du rez-de-chaussée est construite directement sur le sol, il n’y a pas de sous-sol. On y retrouve une salle d’eau, un espace à aire ouverte comprenant un salon avec une porte-fenêtre triple et une cuisine avec un îlot pouvant accueillir quatre personnes. À l’étage, toutes les pièces profitent d’un plafond cathédrale. Le loft comprend une salle de bains avec douche, un placard suffisamment grand pour une laveuse et une sécheuse superposées, deux chambres à la fenestration abondante, dont une chambre principale avec une terrasse accessible par une porte-fenêtre triple.

Caractéristiques

Mesures : Impérial

Style d'architecture Urbain Coût de construction 
Montant approximatif équivalent à celui d'un entrepreneur général (région de la Rive-Sud de Montréal) pour une construction clé en main sans terrain ni infrastructures.
234229 $
Façade 28 pi Surface habitable totale 910 pi²
Profondeur 26 piNombre de salles de bain 2
Hauteur 24 pi 1 poNombre de chambres 2
Surface rez-de-chaussée 416 pi² Finition extérieure Bois + Pierre
Surface étage 494 pi² Type de cuisine Laboratoire + Îlot
Surface garage 312 pi² Garage 1
Mur garage 8 piMur rez-de-chaussée 8 pi
Mur étage 10 piInclinaison toit avant/arrière 7/12
Inclinaison toit gauche/droite 4/12
Style d'architecture Urbain
Coût de construction 
Montant approximatif équivalent à celui d'un entrepreneur général (région de la Rive-Sud de Montréal) pour une construction clé en main sans terrain ni infrastructures.
234229 $
Façade 28 pi
Surface habitable totale 910 pi²
Profondeur 26 pi
Nombre de salles de bain 2
Hauteur 24 pi 1 po
Nombre de chambres 2
Surface rez-de-chaussée 416 pi²
Finition extérieure Bois + Pierre
Surface étage 494 pi²
Type de cuisine Laboratoire + Îlot
Surface garage 312 pi²
Garage 1
Mur garage 8 pi
Mur rez-de-chaussée 8 pi
Mur étage 10 pi
Inclinaison toit avant/arrière 7/12
Inclinaison toit gauche/droite 4/12

Ces plans de maison pourraient également vous intéresser


Vu récemment