09004
09004
09004

Ce plan est offert en plusieurs variations. Vous pouvez consulter les variations en choissant un numéro de plan dans le menu ci-dessous. Les plans techniques dans les images ainsi que le tableau des caractéristiques et dimensions se mettront automatiquement à jour.


Jeux de plans - Sets of plans
Prix régulier$864.00
/

Ce site est protégé par hCaptcha, et la Politique de confidentialité et les Conditions de service de hCaptcha s’appliquent.

Description

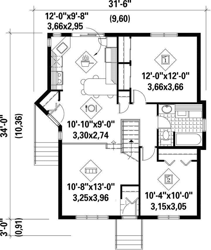
"Salon abaissé Entrée de service sur le côté"

Caractéristiques

Mesures : Impérial

Style d'architecture Champêtre Coût de construction 
Montant approximatif équivalent à celui d'un entrepreneur général (région de la Rive-Sud de Montréal) pour une construction clé en main sans terrain ni infrastructures.
221816 $
Façade 31 pi 6 po Surface habitable totale 932 pi²
Profondeur 34 piNombre de salles de bain 1
Hauteur 21 pi 9 poNombre de chambres 2
Chambre des maîtres - commentaires Grande chambre
Surface rez-de-chaussée 932 pi² Finition extérieure Aluminium
Type de cuisine Comptoir repas + Laboratoire
Garage 0
Mur rez-de-chaussée 8 pi
Inclinaison toit avant/arrière 4/12
Style d'architecture Champêtre
Coût de construction 
Montant approximatif équivalent à celui d'un entrepreneur général (région de la Rive-Sud de Montréal) pour une construction clé en main sans terrain ni infrastructures.
221816 $
Façade 31 pi 6 po
Surface habitable totale 932 pi²
Profondeur 34 pi
Nombre de salles de bain 1
Hauteur 21 pi 9 po
Nombre de chambres 2
Chambre des maîtres - commentaires Grande chambre
Surface rez-de-chaussée 932 pi²
Finition extérieure Aluminium
Type de cuisine Comptoir repas + Laboratoire
Garage 0
Mur rez-de-chaussée 8 pi
Inclinaison toit avant/arrière 4/12

Ces plans de maison pourraient également vous intéresser


Vu récemment