Description
Cette jolie maison à paliers avec façade de briques est très lumineuse grâce à une fenestration abondante. La demeure mesure 32 pieds de largeur sur 34 pieds de profondeur et sa surface habitable est de 1 130 pieds carrés.
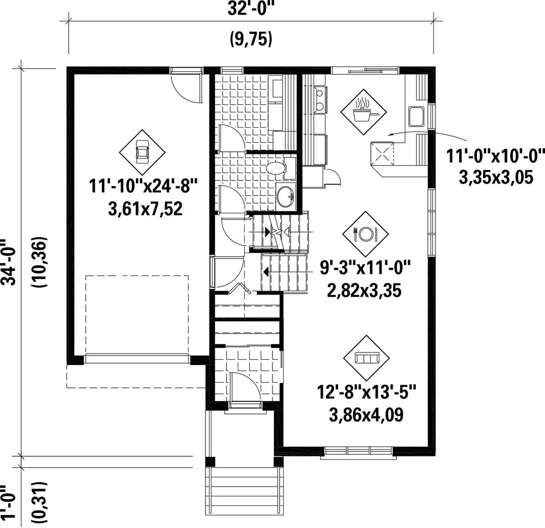
Le rez-de-chaussée de 648 pieds carrés comprend un vestibule fermé, un salon et une salle à manger à aire ouverte, une cuisine en U avec comptoir repas, une salle d’eau avec salle de lavage adjacente, ainsi qu’un garage simple de 320 pieds carrés.
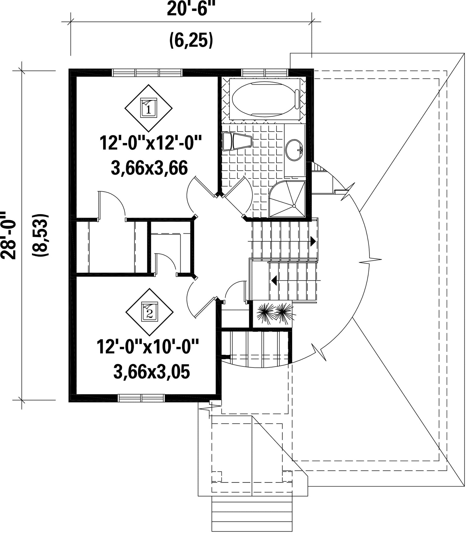
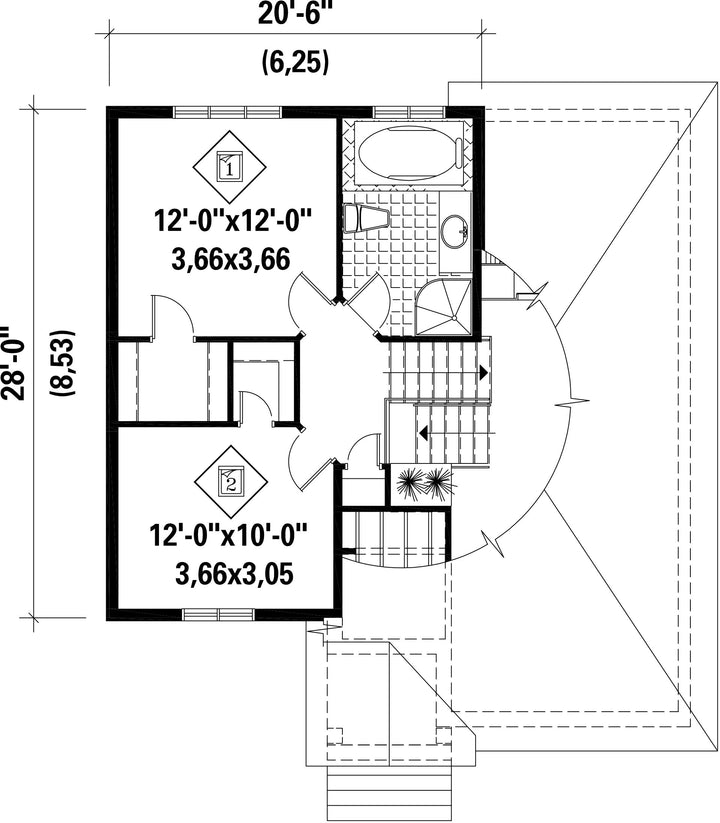
L’étage dispose d’une surface habitable de 482 pieds carrés et compte deux chambres et une salle de bains.
Le rez-de-chaussée de 648 pieds carrés comprend un vestibule fermé, un salon et une salle à manger à aire ouverte, une cuisine en U avec comptoir repas, une salle d’eau avec salle de lavage adjacente, ainsi qu’un garage simple de 320 pieds carrés.
L’étage dispose d’une surface habitable de 482 pieds carrés et compte deux chambres et une salle de bains.
Caractéristiques
Mesures : ImpérialStyle d'architecture | Champêtre |
Coût de construction
Montant approximatif équivalent à celui d'un entrepreneur général (région de la Rive-Sud de Montréal) pour une construction clé en main sans terrain ni infrastructures.
|
246174 $ |
---|---|---|---|
Façade | 32 pi | Surface habitable totale | 1130 pi² |
Profondeur | 34 pi | Nombre de salles de bain | 1 |
Hauteur | 28 pi 2 po | Nombre de chambres | 2 |
Chambre des maîtres | Penderie | Chambre des maîtres - commentaires | --- |
Surface rez-de-chaussée | 648 pi² | Finition extérieure | Aluminium + Brique |
Surface étage | 482 pi² | Type de cuisine | Comptoir repas + Forme en U + Salle à manger |
Surface garage | 320 pi² | Garage | 1 |
Mur garage | 8 pi | Mur rez-de-chaussée | 8 pi |
Mur étage | 8 pi | Inclinaison toit avant/arrière | 8/12 |
Inclinaison toit gauche/droite | 12/12 |
Style d'architecture | Champêtre |
---|---|
Coût de construction
Montant approximatif équivalent à celui d'un entrepreneur général (région de la Rive-Sud de Montréal) pour une construction clé en main sans terrain ni infrastructures.
|
246174 $ |
Façade | 32 pi |
Surface habitable totale | 1130 pi² |
Profondeur | 34 pi |
Nombre de salles de bain | 1 |
Hauteur | 28 pi 2 po |
Nombre de chambres | 2 |
Chambre des maîtres | Penderie |
Chambre des maîtres - commentaires | --- |
Surface rez-de-chaussée | 648 pi² |
Finition extérieure | Aluminium + Brique |
Surface étage | 482 pi² |
Type de cuisine | Comptoir repas + Forme en U + Salle à manger |
Surface garage | 320 pi² |
Garage | 1 |
Mur garage | 8 pi |
Mur rez-de-chaussée | 8 pi |
Mur étage | 8 pi |
Inclinaison toit avant/arrière | 8/12 |
Inclinaison toit gauche/droite | 12/12 |