01048
01048
01048
01048

Jeux de plans - Sets of plans
Prix régulier$1,940.00
/

Ce site est protégé par hCaptcha, et la Politique de confidentialité et les Conditions de service de hCaptcha s’appliquent.

Description

Grandes pièces

Caractéristiques

Mesures : Impérial

Style d'architecture Européen Coût de construction 
Montant approximatif équivalent à celui d'un entrepreneur général (région de la Rive-Sud de Montréal) pour une construction clé en main sans terrain ni infrastructures.
504776 $
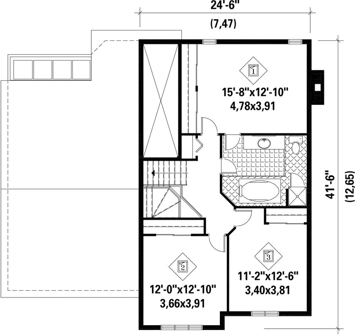
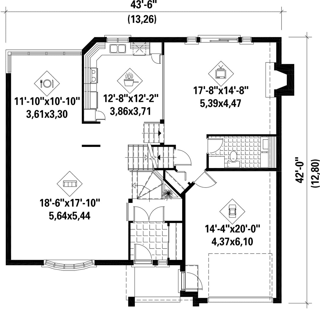
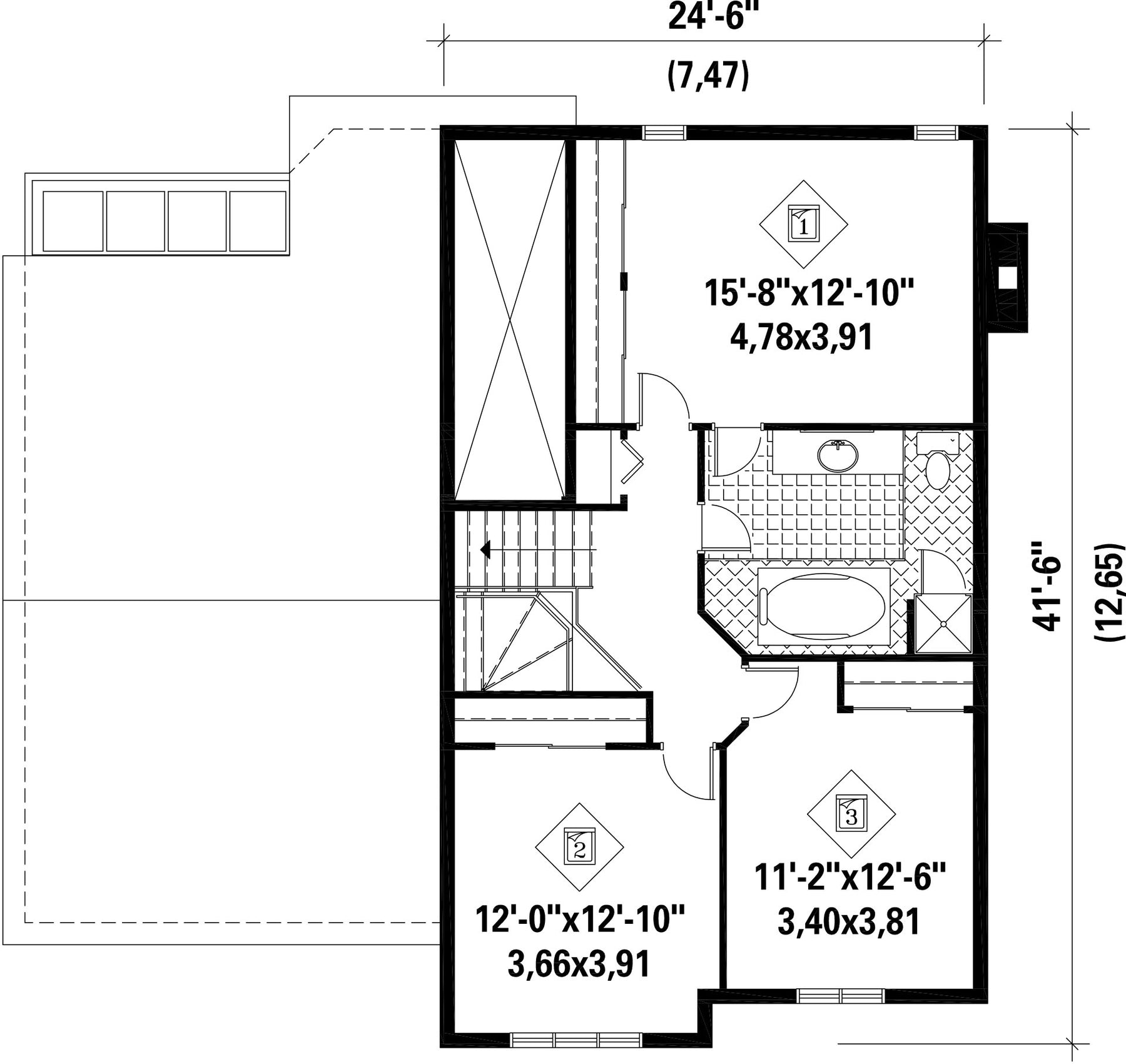
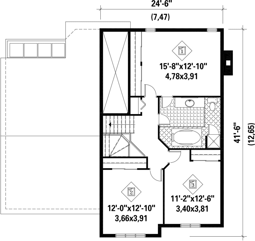
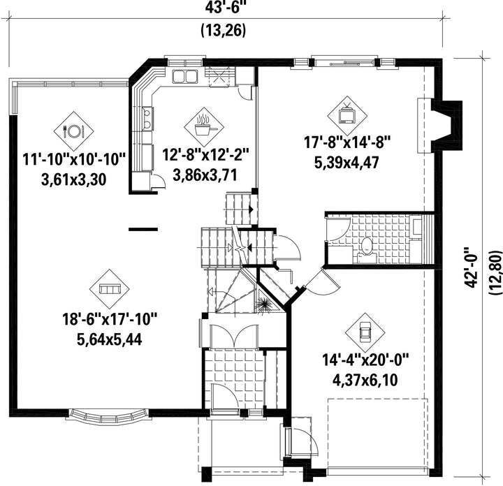
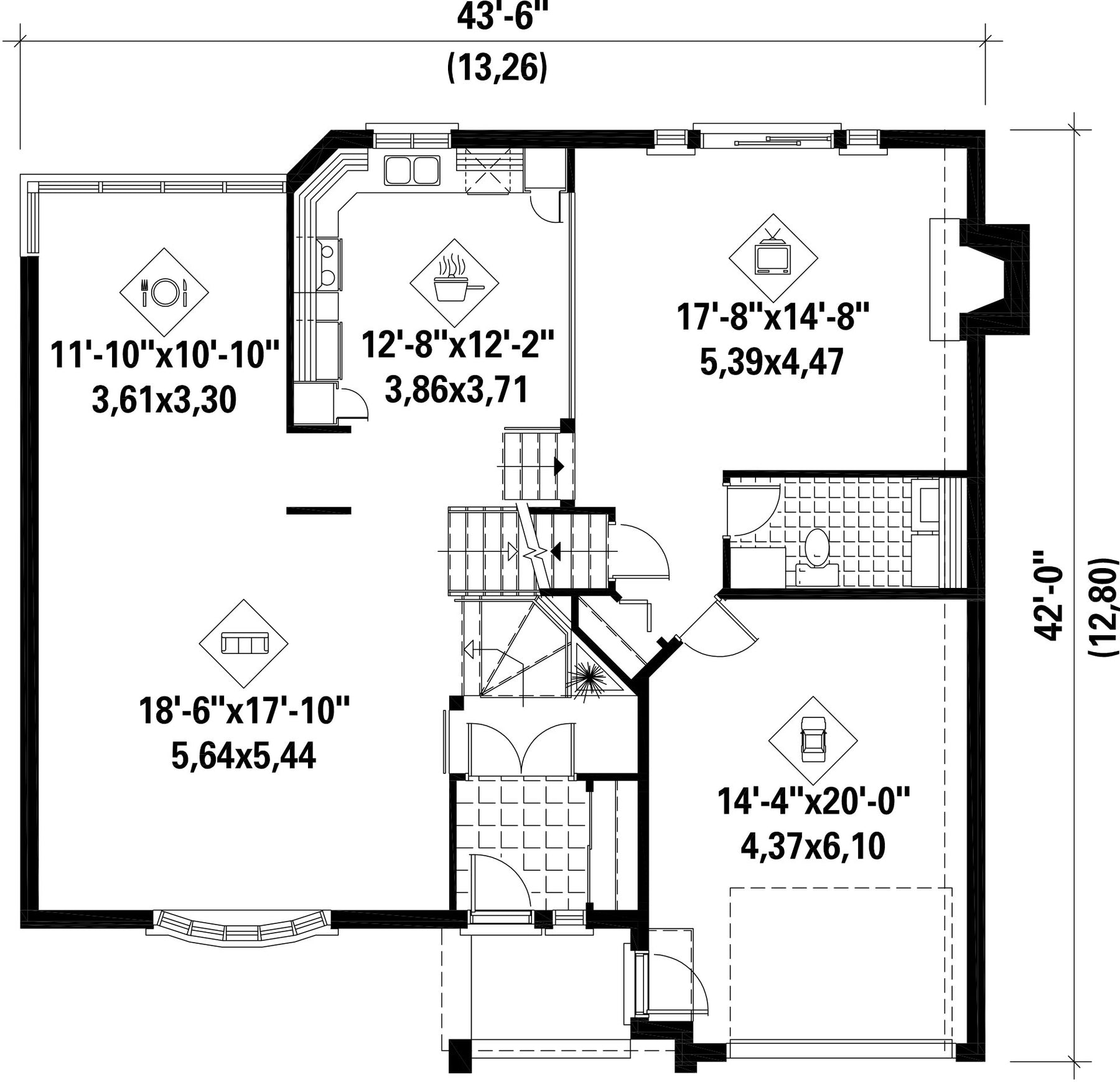
Façade 43 pi 6 po Surface habitable totale 2313 pi²
Profondeur 42 piNombre de salles de bain 2
Hauteur 30 piNombre de chambres 3
Chambre des maîtres - commentaires ACCÈS À LA SALLE DE BAIN
Surface rez-de-chaussée 1321 pi² Finition extérieure Aluminium + Brique
Surface étage 992 pi² Type de cuisine Forme en L
Surface garage 313 pi² Garage 1
Mur garage 8 piMur rez-de-chaussée 8 pi
Mur étage 8 piInclinaison toit avant/arrière 6/12
Inclinaison toit gauche/droite 6/12
Style d'architecture Européen
Coût de construction 
Montant approximatif équivalent à celui d'un entrepreneur général (région de la Rive-Sud de Montréal) pour une construction clé en main sans terrain ni infrastructures.
504776 $
Façade 43 pi 6 po
Surface habitable totale 2313 pi²
Profondeur 42 pi
Nombre de salles de bain 2
Hauteur 30 pi
Nombre de chambres 3
Chambre des maîtres - commentaires ACCÈS À LA SALLE DE BAIN
Surface rez-de-chaussée 1321 pi²
Finition extérieure Aluminium + Brique
Surface étage 992 pi²
Type de cuisine Forme en L
Surface garage 313 pi²
Garage 1
Mur garage 8 pi
Mur rez-de-chaussée 8 pi
Mur étage 8 pi
Inclinaison toit avant/arrière 6/12
Inclinaison toit gauche/droite 6/12

Ces plans de maison pourraient également vous intéresser


Vu récemment