Description
De style champêtre, cette prestigieuse maison à étage a tout pour plaire avec son revêtement de pierres, de briques et de bardeaux de cèdre, sa grande véranda à l'avant, et ses fenêtres agrémentées de volets. Cette demeure mesure 66 pieds de largeur sur 51 pieds de profondeur et offre une surface habitable de 3 066 pieds carrés. Le garage double de 878 pieds carrés dispose d'un accès au sous-sol.
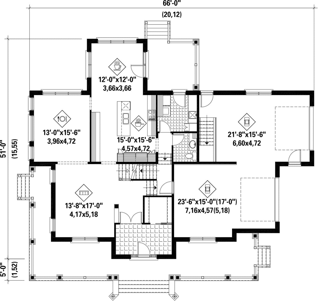
Le vaste rez-de-chaussée de 1 413 pieds carrés compte un grand vestibule avec placard, un salon, une salle à manger avec une fenestration abondante, une grande cuisine avec îlot et coin-repas donnant sur la terrasse, une salle d'eau et une salle de lavage également avec accès à la terrasse. Toutes les pièces du rez-de-chaussée ont des plafonds de 9 pieds de hauteur.
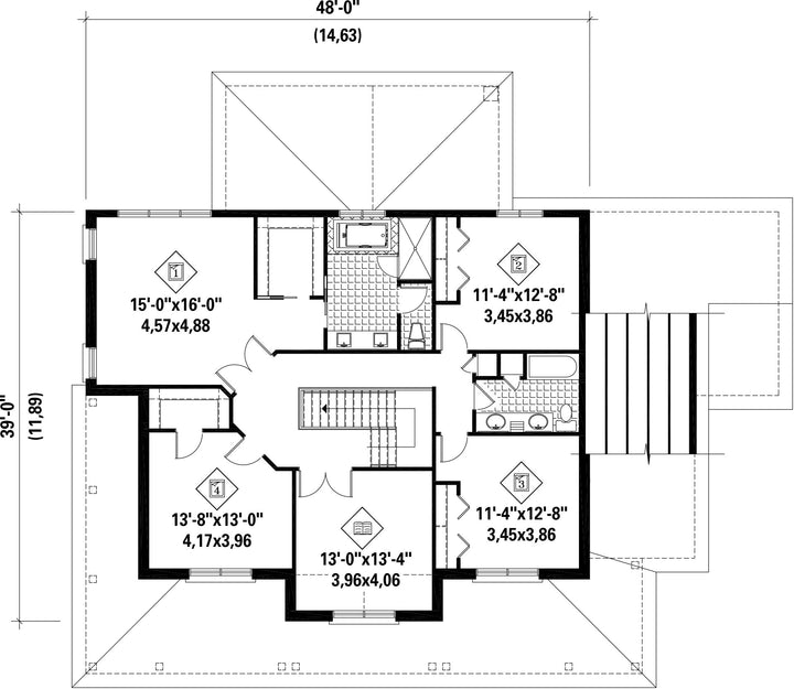
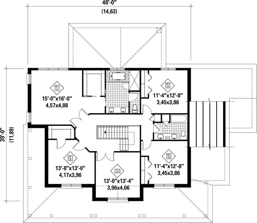
L'étage de 1 653 pieds carrés compte quatre chambres, une salle de bains familiale, ainsi qu'une salle de lecture. La chambre des maîtres dispose d’une grande penderie et d’une salle de bains privée.
Le vaste rez-de-chaussée de 1 413 pieds carrés compte un grand vestibule avec placard, un salon, une salle à manger avec une fenestration abondante, une grande cuisine avec îlot et coin-repas donnant sur la terrasse, une salle d'eau et une salle de lavage également avec accès à la terrasse. Toutes les pièces du rez-de-chaussée ont des plafonds de 9 pieds de hauteur.
L'étage de 1 653 pieds carrés compte quatre chambres, une salle de bains familiale, ainsi qu'une salle de lecture. La chambre des maîtres dispose d’une grande penderie et d’une salle de bains privée.
Caractéristiques
Mesures : Impérial| Style d'architecture | Européen |
Coût de construction
Montant approximatif équivalent à celui d'un entrepreneur général (région de la Rive-Sud de Montréal) pour une construction clé en main sans terrain ni infrastructures.
|
792967 $ |
|---|---|---|---|
| Façade | 66 pi | Surface habitable totale | 3066 pi² |
| Profondeur | 51 pi | Nombre de salles de bain | 2 |
| Hauteur | 38 pi 1 po | Nombre de chambres | 4 |
| Chambre des maîtres | Bain podium + Douche + Lavabo double + Penderie + Portes doubles + Toilettes | Chambre des maîtres - commentaires | Très grande chambre des mâitres |
| Surface rez-de-chaussée | 1413 pi² | Finition extérieure | Aluminium + Bardeau de cèdre + Brique + Pierre |
| Surface étage | 1653 pi² | Type de cuisine | Coin repas + Comptoir repas + Salle à manger + Îlot |
| Surface garage | 878 pi² | Garage | 2 |
| Mur garage | 8 pi | Mur rez-de-chaussée | 9 pi |
| Mur étage | 8 pi | Inclinaison toit avant/arrière | 10/12 |
| Inclinaison toit gauche/droite | 12/12 |
| Style d'architecture | Européen |
|---|---|
|
Coût de construction
Montant approximatif équivalent à celui d'un entrepreneur général (région de la Rive-Sud de Montréal) pour une construction clé en main sans terrain ni infrastructures.
|
792967 $ |
| Façade | 66 pi |
| Surface habitable totale | 3066 pi² |
| Profondeur | 51 pi |
| Nombre de salles de bain | 2 |
| Hauteur | 38 pi 1 po |
| Nombre de chambres | 4 |
| Chambre des maîtres | Bain podium + Douche + Lavabo double + Penderie + Portes doubles + Toilettes |
| Chambre des maîtres - commentaires | Très grande chambre des mâitres |
| Surface rez-de-chaussée | 1413 pi² |
| Finition extérieure | Aluminium + Bardeau de cèdre + Brique + Pierre |
| Surface étage | 1653 pi² |
| Type de cuisine | Coin repas + Comptoir repas + Salle à manger + Îlot |
| Surface garage | 878 pi² |
| Garage | 2 |
| Mur garage | 8 pi |
| Mur rez-de-chaussée | 9 pi |
| Mur étage | 8 pi |
| Inclinaison toit avant/arrière | 10/12 |
| Inclinaison toit gauche/droite | 12/12 |