BT-1057
BT-1057
BT-1057
BT-1057

BT-1057


Fichier - File
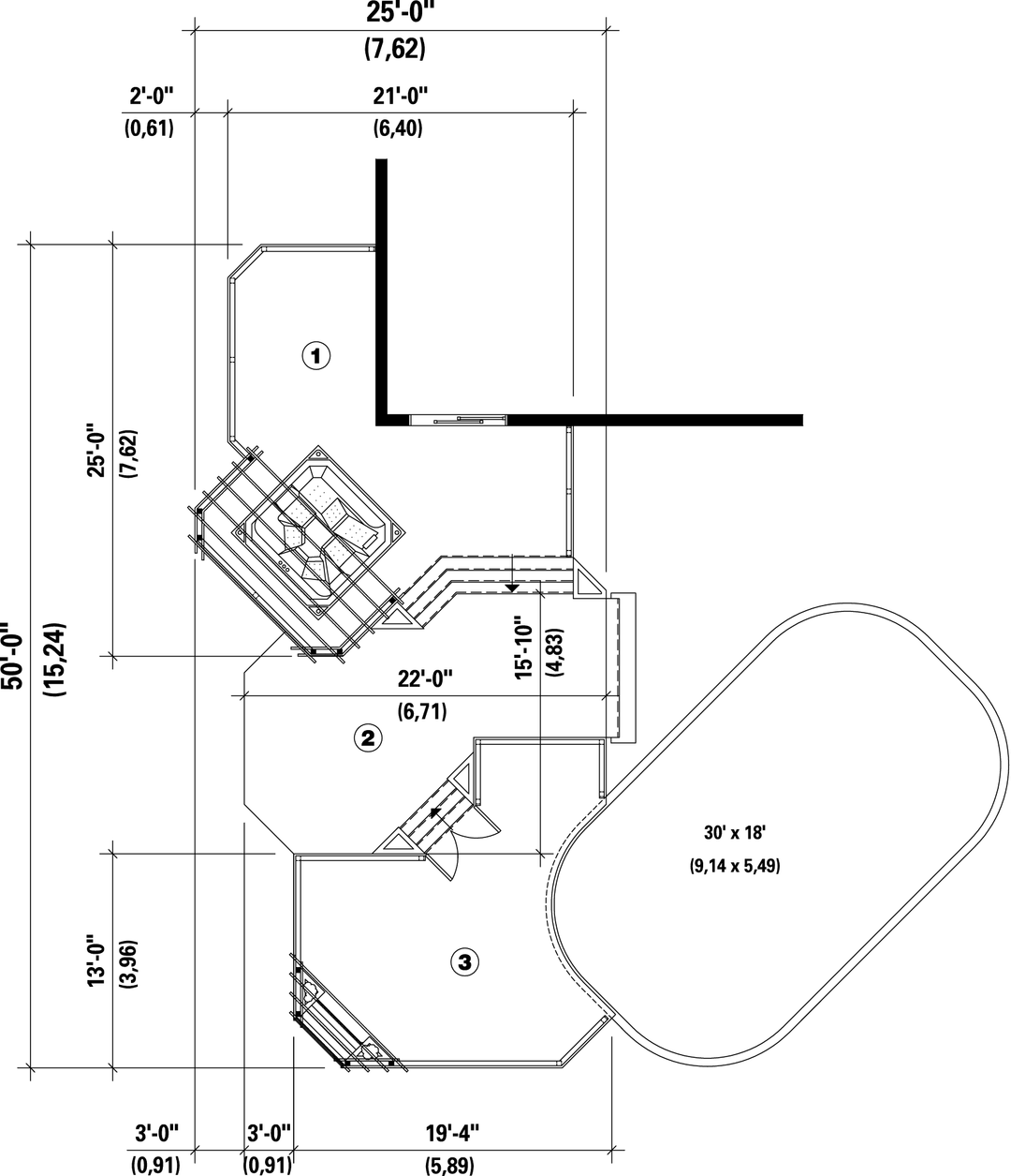
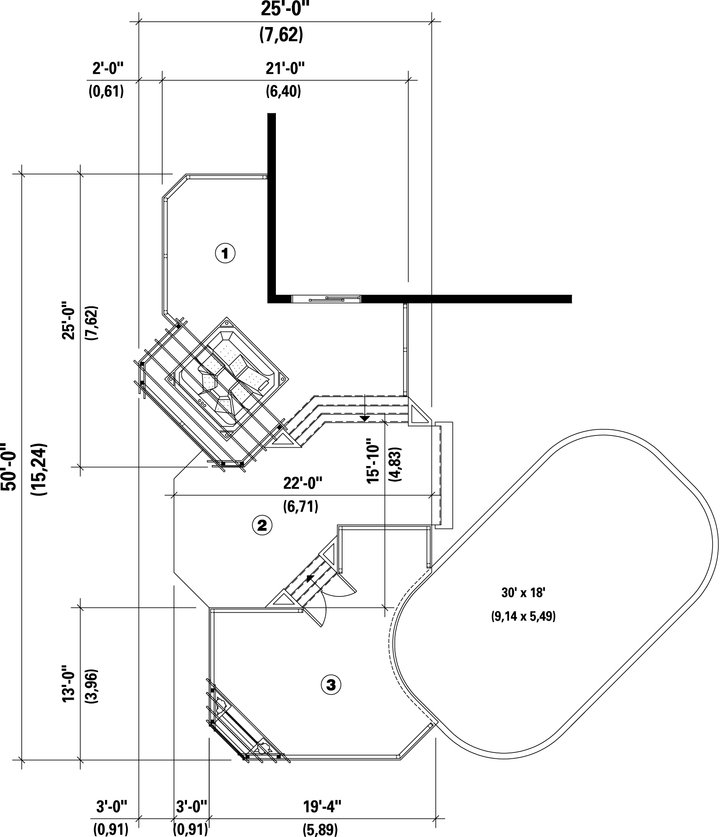
Dimensions
Liste des matériaux - List of materials
Prix régulier$44.95
/

Ce site est protégé par hCaptcha, et la Politique de confidentialité et les Conditions de service de hCaptcha s’appliquent.

Description

Cet été, offrez-vous cette immense terrasse en bois surélevée à plusieurs niveaux. Le premier niveau, qui fait le coin de la maison, est surplombé d’une pergola et peut accueillir un spa. Le troisième niveau entoure une piscine hors terre et comprend une autre pergola ainsi que plusieurs boites à fleurs.

Caractéristiques

Mesures : Impérial

Nombre de salles de bain 0
Nombre de chambres 0
Garage 0
Mur rez-de-chaussée 8 pi
Nombre de salles de bain 0
Nombre de chambres 0
Garage 0
Mur rez-de-chaussée 8 pi

Ces plans de maison pourraient également vous intéresser


Vu récemment