BT-1044
BT-1044
BT-1044
BT-1044

BT-1044


Fichier - File
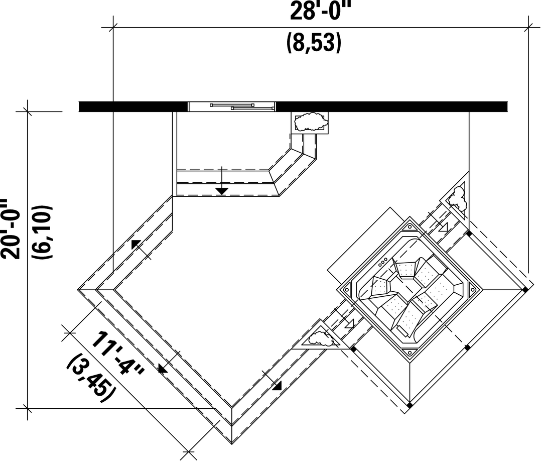
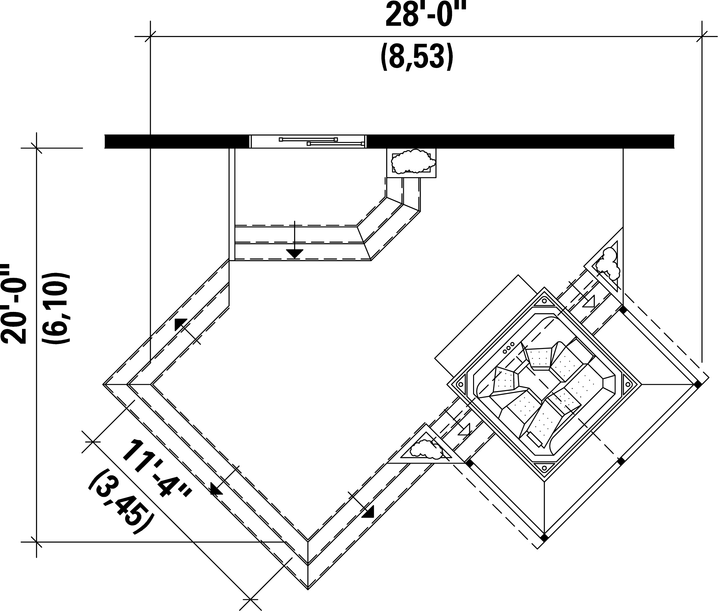
Dimensions
Liste des matériaux - List of materials
Prix régulier$44.95
/

Ce site est protégé par hCaptcha, et la Politique de confidentialité et les Conditions de service de hCaptcha s’appliquent.

Description

Cet été, profitez d’une immense terrasse en bois à plusieurs niveaux. Attenante à la maison, elle vous permet de relaxer en toute tranquillité, et vous pouvez vous ressourcer dans le spa partiellement couvert aménagé à ses côtés, avec petit comptoir-lunch.

Caractéristiques

Mesures : Impérial

Nombre de salles de bain 0
Nombre de chambres 0
Garage 0
Mur rez-de-chaussée 8 pi
Nombre de salles de bain 0
Nombre de chambres 0
Garage 0
Mur rez-de-chaussée 8 pi

Ces plans de maison pourraient également vous intéresser


Vu récemment