Description
Cet élégant garage loft pouvant loger une voiture saura vous séduire. Il comprend une grande porte et des fenêtres à l’avant, et une porte d’entrée avec un petit porche sur le côté droit.
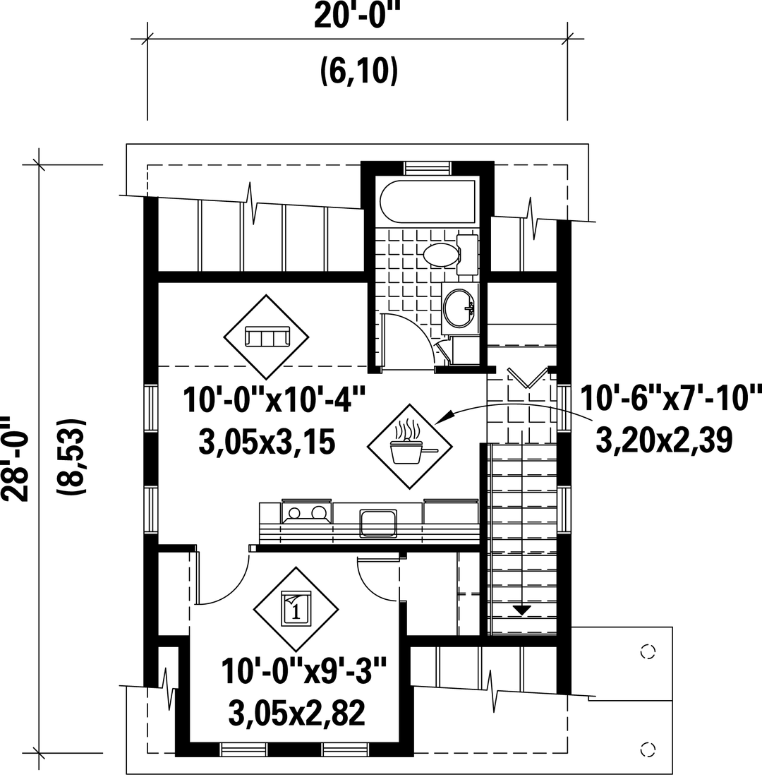
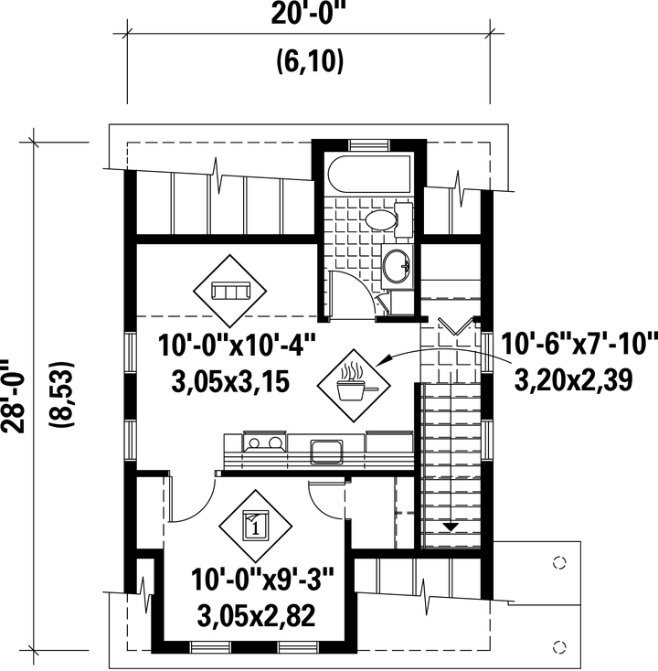
Le loft comporte une salle de bains, une chambre avec une penderie, ainsi qu’un salon et une cuisine à aire ouverte.
Le loft comporte une salle de bains, une chambre avec une penderie, ainsi qu’un salon et une cuisine à aire ouverte.
Caractéristiques
Mesures : Impérial| Style d'architecture | Champêtre |
Coût de construction
Montant approximatif équivalent à celui d'un entrepreneur général (région de la Rive-Sud de Montréal) pour une construction clé en main sans terrain ni infrastructures.
|
120191 $ |
|---|---|---|---|
| Façade | 20 pi | Surface habitable totale | 432 pi² |
| Profondeur | 28 pi | Nombre de salles de bain | 1 |
| Hauteur | 24 pi 2 po | Nombre de chambres | 1 |
| Chambre des maîtres | Penderie | ||
| Finition extérieure | Bardeau de cèdre + Bois | ||
| Surface étage | 432 pi² | Type de cuisine | Laboratoire |
| Surface garage | 560 pi² | Garage | 1 |
| Mur garage | 8 pi | Mur rez-de-chaussée | 8 pi |
| Mur étage | 8 pi | Inclinaison toit avant/arrière | 12/12 |
| Inclinaison toit gauche/droite | NA |
| Style d'architecture | Champêtre |
|---|---|
|
Coût de construction
Montant approximatif équivalent à celui d'un entrepreneur général (région de la Rive-Sud de Montréal) pour une construction clé en main sans terrain ni infrastructures.
|
120191 $ |
| Façade | 20 pi |
| Surface habitable totale | 432 pi² |
| Profondeur | 28 pi |
| Nombre de salles de bain | 1 |
| Hauteur | 24 pi 2 po |
| Nombre de chambres | 1 |
| Chambre des maîtres | Penderie |
| Finition extérieure | Bardeau de cèdre + Bois |
| Surface étage | 432 pi² |
| Type de cuisine | Laboratoire |
| Surface garage | 560 pi² |
| Garage | 1 |
| Mur garage | 8 pi |
| Mur rez-de-chaussée | 8 pi |
| Mur étage | 8 pi |
| Inclinaison toit avant/arrière | 12/12 |
| Inclinaison toit gauche/droite | NA |