Description
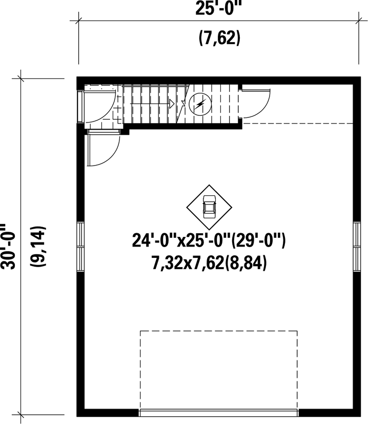
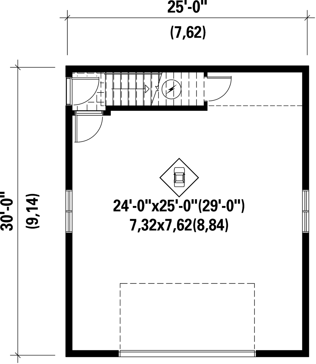
Avec sa grande fenêtre centrale et ses lucarnes en pignon de chaque côté, ce garage loft aura fière allure sur votre propriété. Le garage comprend une grande porte à l’avant, une fenêtre de chaque côté ainsi qu’une porte de service.
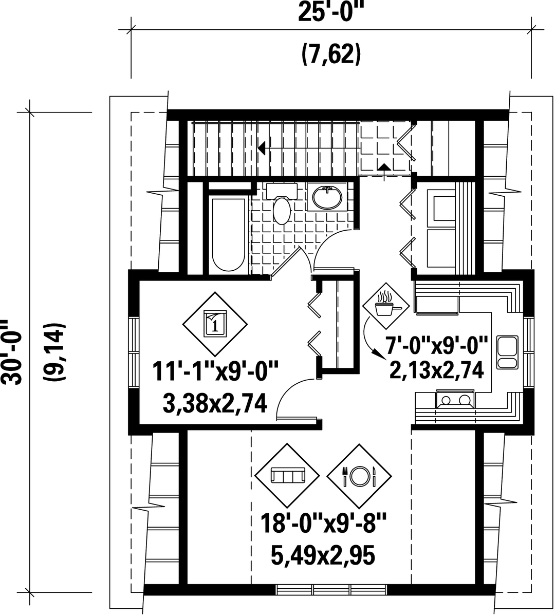
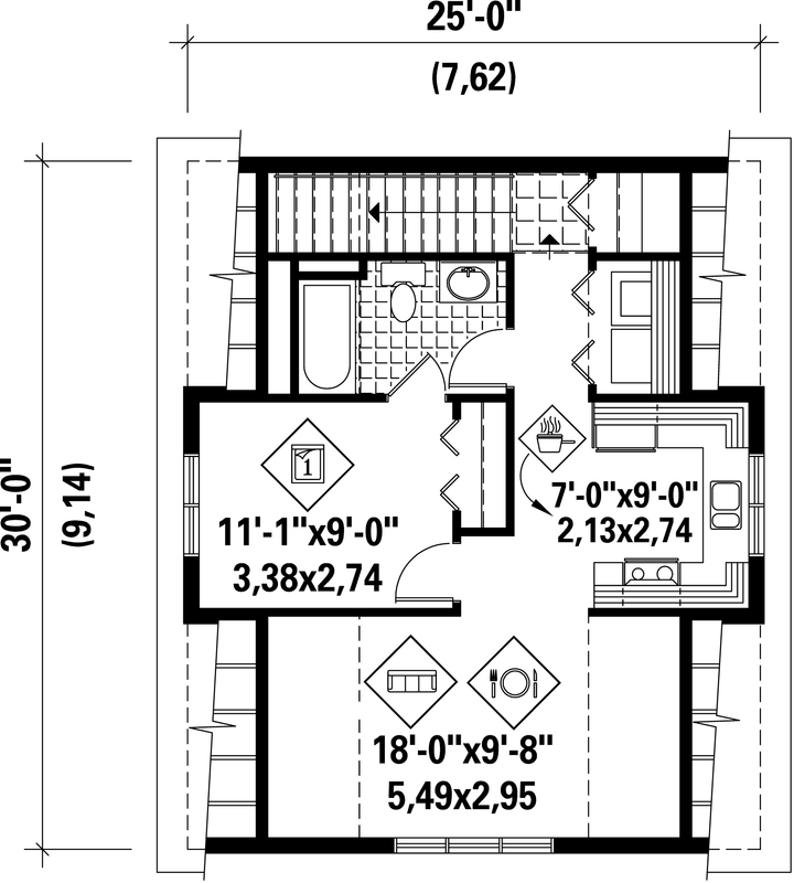
À l’étage, le loft comporte un espace pour la laveuse et la sécheuse, une cuisine, un salon et une salle à manger à aire ouverte, ainsi qu’une chambre avec un vaste placard et un accès direct à la salle de bains.
À l’étage, le loft comporte un espace pour la laveuse et la sécheuse, une cuisine, un salon et une salle à manger à aire ouverte, ainsi qu’une chambre avec un vaste placard et un accès direct à la salle de bains.
Caractéristiques
Mesures : Impérial| Style d'architecture | Champêtre |
Coût de construction
Montant approximatif équivalent à celui d'un entrepreneur général (région de la Rive-Sud de Montréal) pour une construction clé en main sans terrain ni infrastructures.
|
164554 $ |
|---|---|---|---|
| Façade | 25 pi | Surface habitable totale | 610 pi² |
| Profondeur | 30 pi | Nombre de salles de bain | 1 |
| Hauteur | 25 pi 4 po | Nombre de chambres | 1 |
| Finition extérieure | Bardeau de cèdre + Bois | ||
| Surface étage | 610 pi² | Type de cuisine | Forme en U |
| Surface garage | 750 pi² | Garage | 2 |
| Mur garage | 8 pi | Mur rez-de-chaussée | 8 pi |
| Mur étage | 8 pi | Inclinaison toit avant/arrière | 12/12 |
| Inclinaison toit gauche/droite | 12/12 |
| Style d'architecture | Champêtre |
|---|---|
|
Coût de construction
Montant approximatif équivalent à celui d'un entrepreneur général (région de la Rive-Sud de Montréal) pour une construction clé en main sans terrain ni infrastructures.
|
164554 $ |
| Façade | 25 pi |
| Surface habitable totale | 610 pi² |
| Profondeur | 30 pi |
| Nombre de salles de bain | 1 |
| Hauteur | 25 pi 4 po |
| Nombre de chambres | 1 |
| Finition extérieure | Bardeau de cèdre + Bois |
| Surface étage | 610 pi² |
| Type de cuisine | Forme en U |
| Surface garage | 750 pi² |
| Garage | 2 |
| Mur garage | 8 pi |
| Mur rez-de-chaussée | 8 pi |
| Mur étage | 8 pi |
| Inclinaison toit avant/arrière | 12/12 |
| Inclinaison toit gauche/droite | 12/12 |