Description
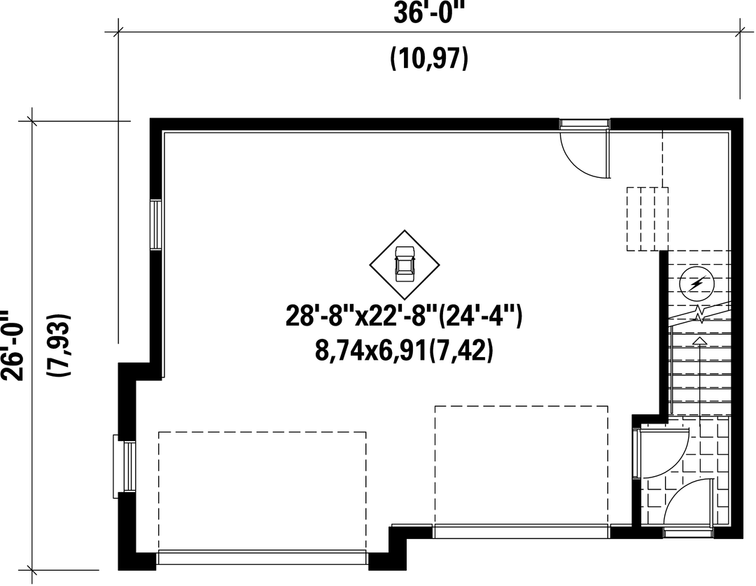
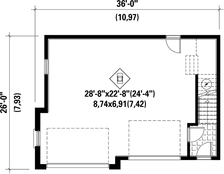
Les jolies lucarnes et le revêtement de pierres et de bois rehaussent le style champêtre de ce garage loft. Assez vaste pour loger deux voitures, le garage comprend deux grandes portes et une porte d'entrée à l’avant, deux fenêtres sur le côté gauche, et une porte de service à l'arrière.
Le loft à l’étage comprend une chambre avec deux placards, une salle de bains, un espace pour une laveuse et une sécheuse, ainsi qu’une aire ouverte dans laquelle se trouve une cuisine avec îlot, une salle à manger et un salon.
Le loft à l’étage comprend une chambre avec deux placards, une salle de bains, un espace pour une laveuse et une sécheuse, ainsi qu’une aire ouverte dans laquelle se trouve une cuisine avec îlot, une salle à manger et un salon.
Caractéristiques
Mesures : Impérial| Style d'architecture | Champêtre |
Coût de construction
Montant approximatif équivalent à celui d'un entrepreneur général (région de la Rive-Sud de Montréal) pour une construction clé en main sans terrain ni infrastructures.
|
193085 $ |
|---|---|---|---|
| Façade | 36 pi | Surface habitable totale | 670 pi² |
| Profondeur | 26 pi | Nombre de salles de bain | 1 |
| Hauteur | 24 pi 10 po | Nombre de chambres | 1 |
| Finition extérieure | Aluminium + Pierre | ||
| Surface étage | 670 pi² | Type de cuisine | Forme en L + Îlot |
| Surface garage | 870 pi² | Garage | 2 |
| Mur garage | 8 pi | Mur rez-de-chaussée | 8 pi |
| Mur étage | 8 pi | Inclinaison toit avant/arrière | 12/12 |
| Inclinaison toit gauche/droite | 12/12 |
| Style d'architecture | Champêtre |
|---|---|
|
Coût de construction
Montant approximatif équivalent à celui d'un entrepreneur général (région de la Rive-Sud de Montréal) pour une construction clé en main sans terrain ni infrastructures.
|
193085 $ |
| Façade | 36 pi |
| Surface habitable totale | 670 pi² |
| Profondeur | 26 pi |
| Nombre de salles de bain | 1 |
| Hauteur | 24 pi 10 po |
| Nombre de chambres | 1 |
| Finition extérieure | Aluminium + Pierre |
| Surface étage | 670 pi² |
| Type de cuisine | Forme en L + Îlot |
| Surface garage | 870 pi² |
| Garage | 2 |
| Mur garage | 8 pi |
| Mur rez-de-chaussée | 8 pi |
| Mur étage | 8 pi |
| Inclinaison toit avant/arrière | 12/12 |
| Inclinaison toit gauche/droite | 12/12 |