Description
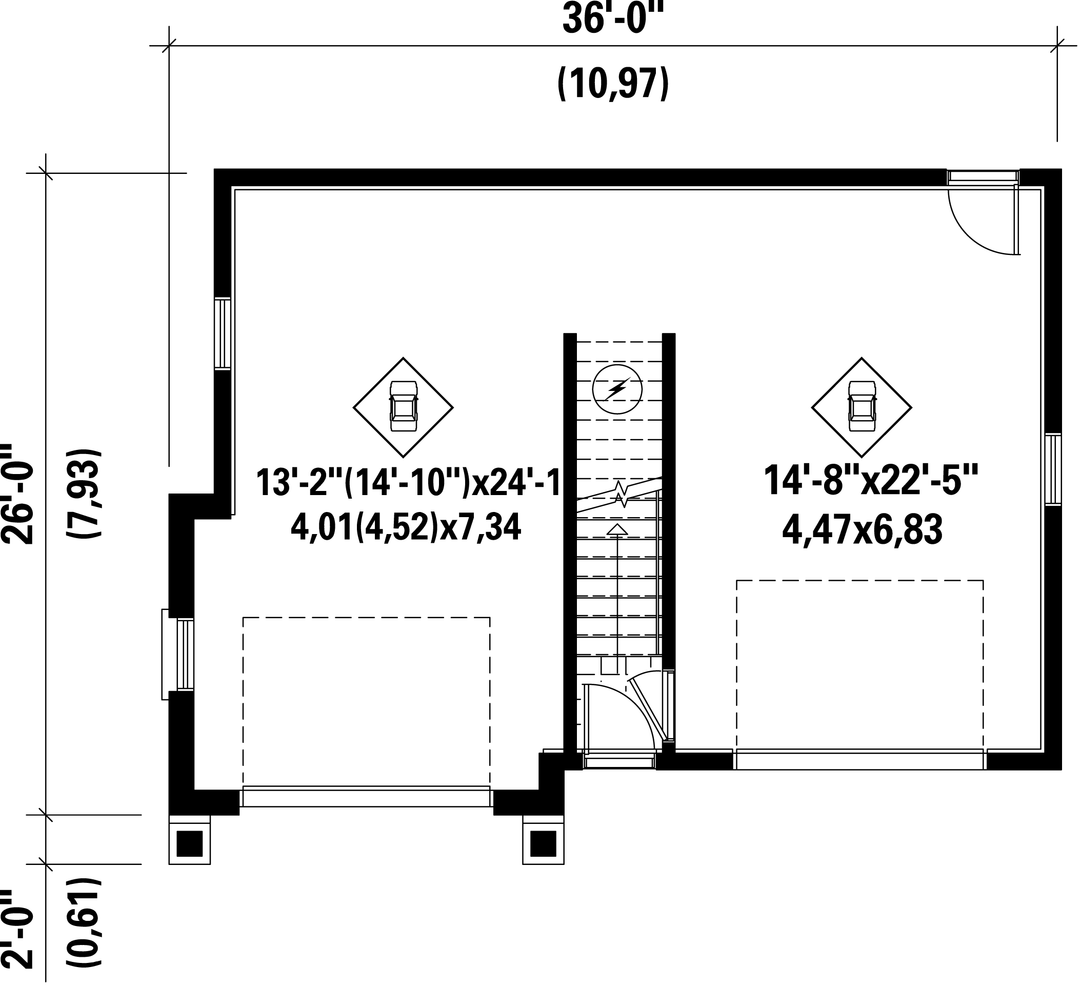
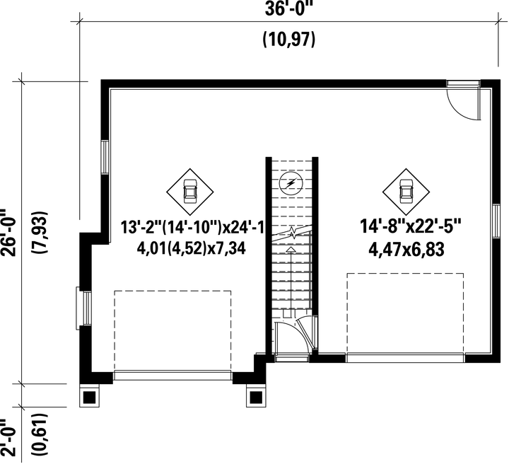
D'un style chaleureux et invitant avec sa jardinière sous une fenêtre, ce garage double avec loft vous ravira. Il compte deux grandes portes pour les voitures et une porte de service au centre ainsi qu'une seconde porte à l'arrière. Deux fenêtres situées de chaque côté du garage éclairent la pièce.
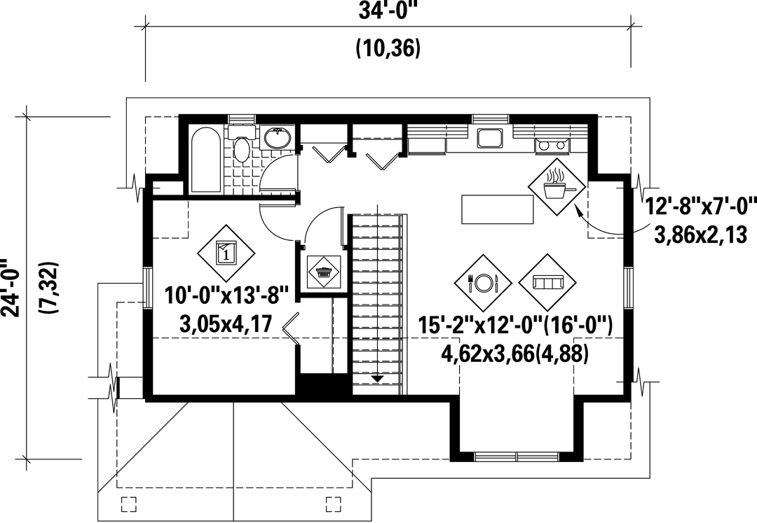
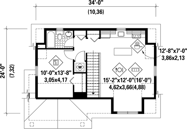
Le loft à l'étage est bien aménagé avec une chambre, une salle de bains, un espace pour une laveuse et une sécheuse, ainsi qu'une aire commune regroupant la cuisine, la salle à manger et le salon.
Le loft à l'étage est bien aménagé avec une chambre, une salle de bains, un espace pour une laveuse et une sécheuse, ainsi qu'une aire commune regroupant la cuisine, la salle à manger et le salon.
Caractéristiques
Mesures : Impérial| Style d'architecture | Champêtre |
Coût de construction
Montant approximatif équivalent à celui d'un entrepreneur général (région de la Rive-Sud de Montréal) pour une construction clé en main sans terrain ni infrastructures.
|
204461 $ |
|---|---|---|---|
| Façade | 36 pi | Surface habitable totale | 683 pi² |
| Profondeur | 26 pi | Nombre de salles de bain | 1 |
| Hauteur | 24 pi 10 po | Nombre de chambres | 1 |
| Finition extérieure | Aluminium + Pierre | ||
| Surface étage | 683 pi² | ||
| Surface garage | 870 pi² | Garage | 2 |
| Mur garage | 8 pi | Mur rez-de-chaussée | 9 pi |
| Mur étage | 8 pi | Inclinaison toit avant/arrière | 12/12 |
| Inclinaison toit gauche/droite | 12/12 |
| Style d'architecture | Champêtre |
|---|---|
|
Coût de construction
Montant approximatif équivalent à celui d'un entrepreneur général (région de la Rive-Sud de Montréal) pour une construction clé en main sans terrain ni infrastructures.
|
204461 $ |
| Façade | 36 pi |
| Surface habitable totale | 683 pi² |
| Profondeur | 26 pi |
| Nombre de salles de bain | 1 |
| Hauteur | 24 pi 10 po |
| Nombre de chambres | 1 |
| Finition extérieure | Aluminium + Pierre |
| Surface étage | 683 pi² |
| Surface garage | 870 pi² |
| Garage | 2 |
| Mur garage | 8 pi |
| Mur rez-de-chaussée | 9 pi |
| Mur étage | 8 pi |
| Inclinaison toit avant/arrière | 12/12 |
| Inclinaison toit gauche/droite | 12/12 |