Description
Ces maisons à étage jumelées possèdent chacune une superficie habitable totale de 1 333 pieds carrés. La superficie des étages est identique dans les deux habitations, soit 660 pieds carrés pour le rez-de-chaussée, et 673 pieds carrés pour l’étage.
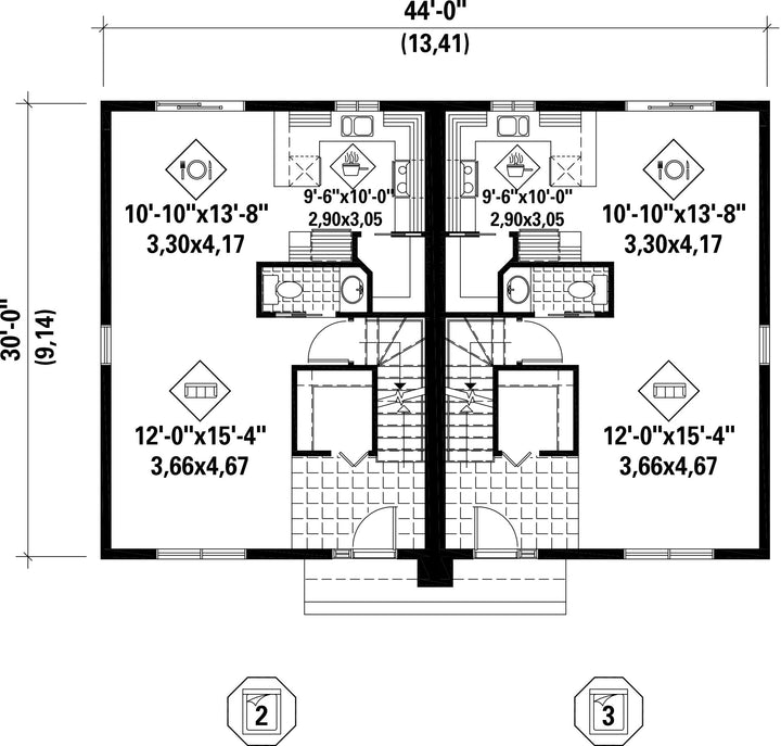
Le rez-de-chaussée de chaque maison comprend un hall ouvert avec placard, une salle d’eau, un salon, ainsi qu’une salle à manger et une cuisine à aire ouverte. L’étage de la maison de gauche est composé d’une salle de bains et de deux chambres, ainsi que d’une petite salle de lavage.
L’étage de la maison de droite est composé d’une salle de bains, de trois chambres et d’un espace pour la laveuse et la sécheuse.
Le rez-de-chaussée de chaque maison comprend un hall ouvert avec placard, une salle d’eau, un salon, ainsi qu’une salle à manger et une cuisine à aire ouverte. L’étage de la maison de gauche est composé d’une salle de bains et de deux chambres, ainsi que d’une petite salle de lavage.
L’étage de la maison de droite est composé d’une salle de bains, de trois chambres et d’un espace pour la laveuse et la sécheuse.
Caractéristiques
Mesures : Impérial| Style d'architecture | Champêtre |
Coût de construction
Montant approximatif équivalent à celui d'un entrepreneur général (région de la Rive-Sud de Montréal) pour une construction clé en main sans terrain ni infrastructures.
|
536120 $ |
|---|---|---|---|
| Façade | 44 pi | Surface habitable totale | 2666 pi² |
| Profondeur | 30 pi | Nombre de salles de bain | 2 |
| Hauteur | 30 pi 7 po | Nombre de chambres | 5 |
| Chambre des maîtres | Penderie | Chambre des maîtres - commentaires | Chambre des maîtres avec penderie |
| Surface rez-de-chaussée | 1320 pi² | Finition extérieure | Aluminium |
| Surface étage | 1346 pi² | Type de cuisine | Forme en U + Salle à manger |
| Garage | 0 | ||
| Mur rez-de-chaussée | 8 pi | ||
| Mur étage | 8 pi | Inclinaison toit avant/arrière | 8/12 |
| Inclinaison toit gauche/droite | 8/12 |
| Style d'architecture | Champêtre |
|---|---|
|
Coût de construction
Montant approximatif équivalent à celui d'un entrepreneur général (région de la Rive-Sud de Montréal) pour une construction clé en main sans terrain ni infrastructures.
|
536120 $ |
| Façade | 44 pi |
| Surface habitable totale | 2666 pi² |
| Profondeur | 30 pi |
| Nombre de salles de bain | 2 |
| Hauteur | 30 pi 7 po |
| Nombre de chambres | 5 |
| Chambre des maîtres | Penderie |
| Chambre des maîtres - commentaires | Chambre des maîtres avec penderie |
| Surface rez-de-chaussée | 1320 pi² |
| Finition extérieure | Aluminium |
| Surface étage | 1346 pi² |
| Type de cuisine | Forme en U + Salle à manger |
| Garage | 0 |
| Mur rez-de-chaussée | 8 pi |
| Mur étage | 8 pi |
| Inclinaison toit avant/arrière | 8/12 |
| Inclinaison toit gauche/droite | 8/12 |