25221
25221
25221
25221

Ce plan est offert en plusieurs variations. Vous pouvez consulter les variations en choissant un numéro de plan dans le menu ci-dessous. Les plans techniques dans les images ainsi que le tableau des caractéristiques et dimensions se mettront automatiquement à jour.


Jeux de plans - Sets of plans
Prix régulier$945.00
/

Ce site est protégé par hCaptcha, et la Politique de confidentialité et les Conditions de service de hCaptcha s’appliquent.

Description

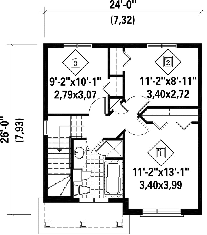
L’intérieur de cette coquette maison à étage, munie d’un joli porche à l’avant, offre de nombreuses possibilités (série Aménagements multiples).
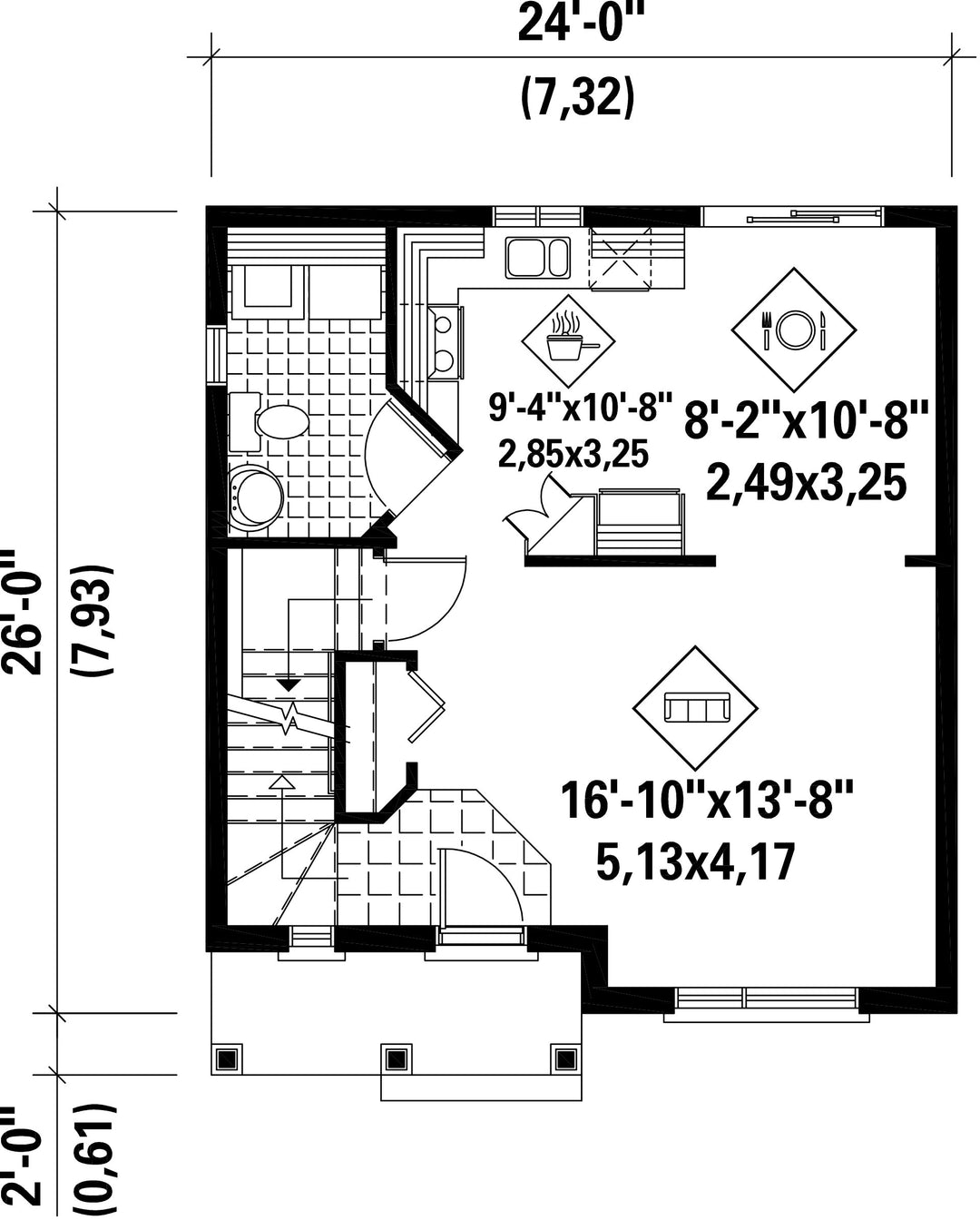
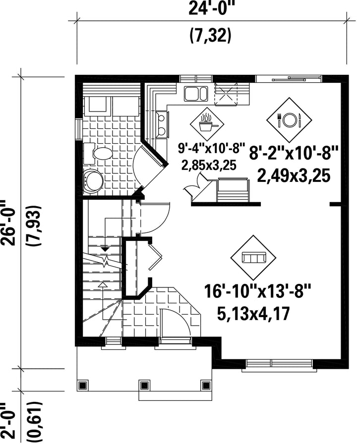
Le rez-de-chaussée comprend une cuisine, une salle à manger et un salon à aire ouverte, ainsi qu’une salle d’eau avec espace pour la laveuse et sécheuse.
L’étage comprend deux ou trois chambres, selon le modèle choisi, ainsi qu’une salle de bains. À vous de choisir le modèle qui vous convient le mieux !

Caractéristiques

Mesures : Impérial

Style d'architecture Urbain Coût de construction 
Montant approximatif équivalent à celui d'un entrepreneur général (région de la Rive-Sud de Montréal) pour une construction clé en main sans terrain ni infrastructures.
245664 $
Façade 24 pi Surface habitable totale 1200 pi²
Profondeur 26 piNombre de salles de bain 1
Hauteur 26 piNombre de chambres 3
Surface rez-de-chaussée 600 pi² Finition extérieure Aluminium + Brique + Pierre
Surface étage 600 pi² Type de cuisine Forme en L
Garage 0
Mur rez-de-chaussée 8 pi
Mur étage 8 piInclinaison toit avant/arrière 6/12
Inclinaison toit gauche/droite 8/12
Style d'architecture Urbain
Coût de construction 
Montant approximatif équivalent à celui d'un entrepreneur général (région de la Rive-Sud de Montréal) pour une construction clé en main sans terrain ni infrastructures.
245664 $
Façade 24 pi
Surface habitable totale 1200 pi²
Profondeur 26 pi
Nombre de salles de bain 1
Hauteur 26 pi
Nombre de chambres 3
Surface rez-de-chaussée 600 pi²
Finition extérieure Aluminium + Brique + Pierre
Surface étage 600 pi²
Type de cuisine Forme en L
Garage 0
Mur rez-de-chaussée 8 pi
Mur étage 8 pi
Inclinaison toit avant/arrière 6/12
Inclinaison toit gauche/droite 8/12

Ces plans de maison pourraient également vous intéresser


Vu récemment